功能区|30平小户型翻新改造,设计的真聪明,全屋收纳功能太棒了
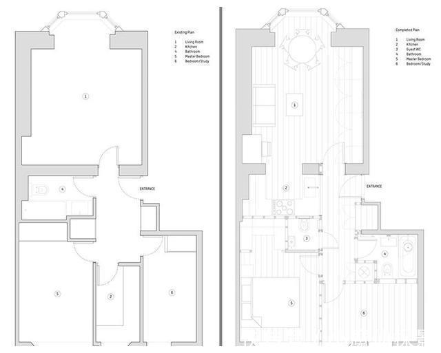
很多人都不相信这套房子总建筑面积只有30平米,却包含了客厅、卧室、厨房和卫生间等四大功能区。好的房子设计不在于面积大小而是功能区的设计,精致且小而美的小户型是很多年轻人喜欢的,就比如下面这套30平米的新家装修设计效果,今天带大家一起来参观一下吧!以下是前(左)和后(右)楼层平面图,其中显示了如何更改布局以充分利用空间布局一目了然。

这套两卧室的公寓主要的装修风格,以现代化装修为主白色为主色调,装修的理念就是尽可能最大化空间并使其感觉更大的空间。
为了实现开放式的起居室和厨房区域,设计师将厨房搬迁到之前的浴室,并在结构墙上打开了一个开口。除了浴室和卫生间外,整个地板都铺的是白色橡木地板,而所有的墙壁和细木工均漆成白色环保漆。通过选择简洁大线条的家具增加了颜色的层次感。
在厨房里,橱柜的设计充分利用了房间的高度,并增加了一扇窗户,可以看到走廊。
整个房子都添加了存储收纳橱柜,解决日常收纳整理方案,细做的木工用品也是尽善尽美了,包括起居室的浮动餐具柜,步入式衣柜,公用设施存储空间以及带顶灯的门,全部纯白的色调让光线进入房间后反射的作用下使整个空间更加的明亮通透了。
更新的浴室铺有白色大理石,而客用浴室(右下方照片)则采用简单的白色六边形马赛克完全铺设。
总的装修下来有苦有甜,装修的风格也是自己比较喜欢的一种风格简单明白。这套房的装修布置方法希望能给还在装修的小伙伴一些装修灵感。后期继续为大家提供更多优质的装修设计案例。谢谢大家!
推荐阅读
- 屋主|56㎡小户型老房改造,小而美的设计!
- 小户型|发现丈夫赠人房产 妻子怒讨买房款
- 卫生间|什么才叫好户型?来看看这5个标准,你家房子符不符合?
- 修建|精选10套三层户型图纸,占地面积均不足百平,尤其适合新农村修建
- 住房公积金|什么才叫好户型?来看看这5个标准,你家房子符不符合?
- 民营企业|小户型必看扩容6招,让家里每 1㎡ 都不浪费!
- 山东省|好住│金牛岭片区的刚需户型,两梯两户还配入户花园
- 公卫|回农村建房,展示一套“牛”户型,二楼稍微改动就完美了
- 户型|北漂夫妻买下24㎡婚房,柱子4米宽,窗台就占户型面积一半
- 建筑|小开间农村自建房,5款开间10米的农村别墅户型,好看又实用!
