隐藏功能|22㎡迷你户型,装得下「独立卧室+大浴缸+藏书阁」,快来抄作业!
导语:仅22㎡的空间,完美实现独立卧室和大面宽藏书柜,就连令小户型望而却步的大浴缸也装下了!让我们一起来看看她是怎么做到的吧!本期,甜茶为大家分享的家装案例,坐标台湾省。整个房子的面积只有22㎡,却被设计师将空间利用到了极致,从“蜗居”逆袭“精致生活”。
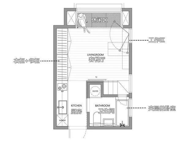
//设计亮点//①配色方案为「白橡木色 纯白色」,视觉感宽敞明亮;②入户玄关做厨房,提升空间利用率;③客餐厅合二为一,同时融入休闲区、工作区,提升功能性;④厨房和卫生间的上方做夹层,增加独立卧室,私密性更强。
▲装修平面图||玄关变厨房,并增加洗衣区,很实用入户玄关是一条狭窄的走道,设计师将这个区域做成了一个小厨房。虽然空间不大,但是配置相当齐全,洗菜区、切菜区、煮饭区、收纳区一应俱全,实用性满分。
▲厨房实拍图厨房的配色简单清爽,主要由三种颜色组成:①柜体为白橡木色,与屋内家具保持一致,整体性更强;②柜门和墙砖均为白色,可以提升视觉空间感;③橱柜台面和地面为浅灰色,耐脏耐磨。
▲厨房实拍图厨房除了正常的功能以外,还增加了“洗衣区”,设计师将洗烘一体式洗衣机嵌入到橱柜中,解决了室内无阳台的缺陷。因为平时屋主基本上不会下厨,即使做饭也是直接加热一些速食快餐,所以就不用担心厨房的油烟问题了。
▲厨房实拍图||客餐厅内功能丰富,宽敞通透客厅和餐厅做了二合一的设计,家具都摆放在了四周,取消了电视机、背景墙、茶几灯等设置,并把中间区域空出来,这样看起来会更加宽敞通透。设计师在靠窗的位置,做了一个嵌入式的沙发,作为室内的休闲区,两侧有隔板置物架和收纳柜,可以用来摆放手办和书籍。
▲客厅实拍图客厅内最吸引我的地方,当属这一面“衣柜 书柜”的组合墙。柜子的下方2/3的部分是衣柜,用来收纳屋主的衣物;上方1/3的部分做了开放式书柜,与夹层卧室无缝相连,里面摆放着屋主的藏书。
▲客厅实拍图为了减少层高上的压抑感,室内均采用无主灯设计,并用筒灯、射灯、壁灯代替,光源更加丰富。书柜的上方就做了一排三个的轨道射灯,灯头可以随意调整,平时找书籍也会比较方便。shugui
设计师在客厅组合柜的正对面,做了一个工作区,方便屋主日常居家办公实用。工作区的设计很简单,两张桌子 两张椅子 一个可旋转式壁灯,平时朋友来家里也可以一起使用。
▲客厅实拍图办公桌还有一个“隐藏功能”,将它们旋转90°重新拼接后,就变成了餐桌,便捷实用!
▲客厅实拍图||从旋转楼梯上去,可到达夹层卧室设计师利用卫生间和厨房的一部分层高,做了夹层卧室,从木质楼梯可以直接走上去。卧室的高度比较低,但作为睡觉的空间来说,也足够使用了。
推荐阅读
- 屋主|56㎡小户型老房改造,小而美的设计!
- 现代风|168㎡现代风,带着浓郁的归属感与愉悦感
- 深色|155㎡简约风,承载着三代人的生活,不花哨让家务少一半
- 混淆感|146㎡北欧经典白色三居室,诠释令人心醉的优雅
- 饱和度|173㎡轻奢新中式,古典和现代的碰撞,唯美浪漫!
- 背景墙|97㎡现代风,以时尚打造空间,以新颖突出特点
- 地板|160㎡四居室,玄关比我家卧室都大,这才是真正的低调奢华有内涵
- 棚户区改造|开盘预告|合肥又有6盘要加推,均价1.39-2.54万/㎡全都有
- 小房间|参观140㎡大婚房,朋友都夸餐边柜有档次,我却更喜欢主卧的飘窗
- |73㎡复古风两居室,年轻夫妻的高品质生活
