小空间|绝了!82㎡六口之家0杂物,还凭空多出两间房?!( 三 )
为了能让两个可爱女儿也能有自己的空间,讨论后决定把厨房改造成儿童房。因为是老房子,没有烟道,直接外排的,所以不存在管道问题。
听柯先生说还没搬进来住的时候两个宝贝就已经在讨论谁睡下铺的床位了。
儿童房没有做花里胡哨的设计,针对小空间,要做减法。
Before
After
双层床是木工师傅现场做的。
异形结构本来就很考验师傅的手工工艺,最关键的,这还是个「下面带储物抽屉+楼梯带储物空间+底层床尾还带超大储物空间」的异形结构床!
真真是做到了木工师傅一度想丢图纸的程度,估计隔空喊话:“这是哪个设计师设计的,出来!”
这是大女儿的学习区。柯先生说这个小圆窗的设计太巧妙了,每次经过都可以偷瞄一眼宝贝有没有认真写作业。
分体空调巧妙地安装在书柜上面,不会对着人吹。
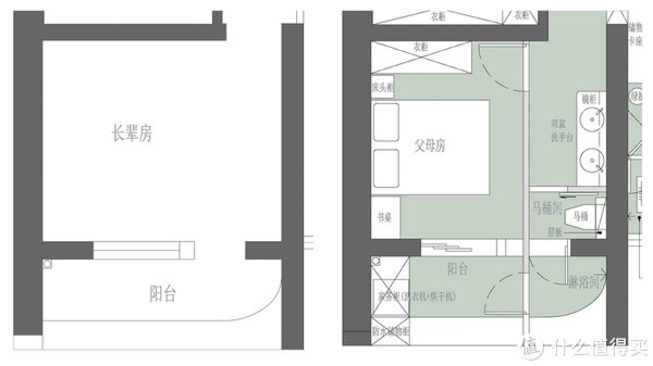
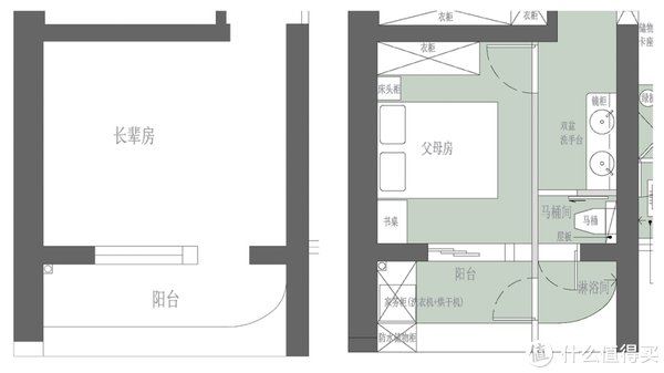
长辈房
设计师考虑到,长辈房的面积几乎可以媲美客厅了,是家中最大的房间。
所以用切蛋糕的设计手法,把长辈房分成两部分,三分之二给长辈房,三分之一做主卫。
室内是柔柔暖暖的调调,奶咖色墙漆配上4000K的中性暖白光。床头左边定制了书桌书柜,兼作床头柜。原来的窗台拆掉改成了去阳台的落地推拉门。
Before
After

主卫+阳台
就是这新划分出来的三个小空间,让一家人的生活质量有了火箭式的提升。
双盆洗手台、马桶间、淋浴间,一个干湿三分离的卫生间就这么通过改管技术凭空造出来了。
在保证安全的情况下,做了最薄的墙,用了最薄的门,争取利用上每一寸空间。
打开双推拉门,淋浴间每天都有太阳烘干多余的水渍,马桶间与洗漱区也很通风。
而且去阳台也不需要经过长辈房了,直接从淋浴房去阳台,不会打扰到父母休息。
干区浴室柜设计成悬空的,让这小过道也不会有压抑感。镜柜的四面镜子可以提升过道的通透性,视觉扩容。墙排水的双盆洗手台收纳空间也相当大。
马桶间用的壁挂式马桶,水箱隐藏在个性的曲线砖背后。
上面的置物搁板可以放些随手用的小物件,下面还藏着一条灯带。
淋浴间是用阳台的一部分改造出来的。
地面用的古堡灰大理石,临窗采光相当足,每天都沐浴在自然光里,干燥又通透。
阳台的另一侧是木工师傅现场用防腐木做的阳台柜,内嵌有双叠的洗衣机+烘干机,旁边的柜子用来放拖把等工具。
推荐阅读
- 屋主|56㎡小户型老房改造,小而美的设计!
- 美好生活|欧哲门窗副总经理周志军:「拓」不忘初心同心同德,成为美好生活空间首选品牌
- 小钱|游点好笑!收手机的新方式,一抓一个准!这老师怕是柯南看多了?
- 银行|请注意!今日起各地房贷利率普遍下降5个基点 业内预期:部分地区房贷利率或仍有下调空间
- 背景墙|97㎡现代风,以时尚打造空间,以新颖突出特点
- 购房置业|上海女子拍下对楼住户家无敌露台,超大空间网友酸了:买房送操场
- 公示|一处体育中心项目、一处小型口袋公园!市北两项目规划公示,配套升级
- 碧桂园|小城市的房住不炒,遇上返乡置业
- 小户型|发现丈夫赠人房产 妻子怒讨买房款
- 小房间|参观140㎡大婚房,朋友都夸餐边柜有档次,我却更喜欢主卧的飘窗
