别有洞天|就应贪图这个阁楼,起初不被家人看好,如今装修完却别有洞天!( 二 )

来到阁楼上的主浴室,被隐藏在滑动门后。木质梳妆台上放着白色的台面和大镜子,底下的洗手柜的收纳功能非常的强大。洗手盆的侧面是淋浴,日式的木浴缸(泡浴缸)可俯瞰湖泊的自然美景。
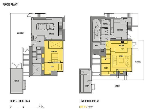
下面是这套别墅的平面图:
那么今天的分享就到这里了,希望这套带阁楼的别墅设计能够给大家带来更多的装修设计灵感。最后感谢大家在百忙之中看完。
推荐阅读
- 家居|没想到贪图一时便宜入手的这5件“家居神器”,却个个都很好用!
- 对称式|对称式传统中式二层别墅,流传千年准没错,农村就应该建这种房子
- 大理石|108㎡现代轻奢风,有钱就应该这样装
- 二层别墅|对称式传统中式二层别墅,流传千年准没错,农村就应该建这种房子
- 西咸新区|他买下200平方米昏暗危房,曾被吐槽廉价,完工后别有洞天
- 别墅|老家的房子,早就应该拆掉重建了,毕竟跟别人家房子比起来不够看
- 房产证|房子就应该像衣服一样有价格差,不同人群都有衣穿,都有房子住
- 中式|对称式传统中式二层别墅,流传千年准没错,农村就应该建这种房子
- 轻奢家居|TK轻奢家居:轻奢风的家就应该这样设计,好棒
- 油烟机|装修中7个最该花钱的地方,贪图一时便宜,到时候哭都来不及
