设计风格|105平方米的小家,温馨时尚集于一体,满满的归属感
案例:小户型公寓
居住成员:大人、小孩
房屋类型:公寓
房屋面积:105平方米
【 设计风格|105平方米的小家,温馨时尚集于一体,满满的归属感】空间格局:3室、2厅、2卫
家装是对生活的一种态度,家装的风格凸显一种生活的品质,房屋的整体围绕着温馨简约的设计风格而设计的,浅色系的家具搭配让家中变得更加的明亮,运用线条元素的设计是的家中层次感分明,品质的生活不一定就是时尚华丽的,温馨的元素也是十分的重要,家中充满温馨的感觉,才能让房主感受到生活的爱意,温馨的家装风格打破原有的设计理念,传递着品质生活的追求。
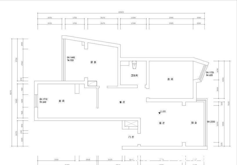
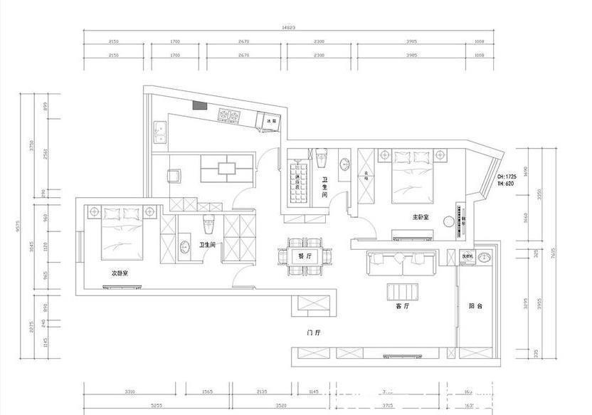
【户型图】
设计重点:视野广阔
本案的户型为3室2厅2卫,区域位置在上海,装修的价格在10至20万。房屋的设计没有过多地繁琐,卫生间都是紧邻着卧室的,使用起来很是便利,阳台的设计不仅可以晒衣服还能够欣赏周围的风景。下面就和齐家云云一起来看看吧,希望大家喜欢~
【客厅】
设计重点:典雅大气
客厅的整体色调都是围绕着浅色系而设计的,皮质的沙发看上去非常的有质感,象牙白彰显大气的形象,墙壁上的挂画由三段式组成,远远望去各成一幅画,但是组合的看就构成一道靓丽的风景了。
【厨房】
设计重点:直筒设计
厨房的地形是直筒形,看似不大的空间却可以摆放各种厨房家电,橱柜与家电的一体化形式为厨房节省了非常多的空间,白色的墙砖会显得单调,但是加上卡通的印花,整个厨房都充满着温馨的韵味。
【餐厅】
设计重点:书香艺术
拐角处就是餐厅了,高级灰的餐桌看上去十分的庄重,享受美食难免会有一种拘谨感,但是餐厅吊灯的设计就大大弱化了这一点,不规则的喇叭灯让餐厅充满着活跃的氛围,墙壁上的艺术字体真是为餐厅带来书香的艺术气息。
【卫生间】
设计重点:干湿两用
卫生间的洗漱台与洗浴的地方是有隔断的,这样的设计对洗浴时是比较保护隐私的,而且洗浴的水也不会溅到周围的洗漱台上,干湿两用方便极了,大大的洗漱台可以放置很多日常的生活用品,非常符合日常的生活习惯。
【卧室】
设计重点:多元化组合
卧室真是应有尽有,不仅有衣柜还有书架,墙壁的颜色是淡蓝色的,上面还带有印花的元素,十分的小清新,在床的另一侧还摆放小型的收纳柜,放置一些小物件甚是方便。
【儿童房】
设计重点:静谧空间
小孩子难免会调皮些,所以房间的设计要静谧一些,玩偶以及玩具的添加让屋内充满了童趣,屋内书架和收纳柜是一体的,多功能的柜子为房间节省很大的占地空间。
推荐阅读
- 屋主|56㎡小户型老房改造,小而美的设计!
- 餐边柜要做成什么样子才实用又好看看看这几款餐边柜设计
- 收纳|去邻居家参观才知道,卫生间不装柜子这样设计,防潮耐脏好清洁
- 简单感|现实的平衡取舍,才是生活之道!143平现代风格设计欣赏!
- 木纹板|装修案例欣赏:小北欧风格的居家设计,简洁的同时又不失温馨感!
- 家庭成员|卫生间进门洗漱台,中间马桶,里面淋浴,怎么装?有哪些设计方案?
- 洗衣房|这三款农村四合院设计图让不少城里人羡慕,父母看了也欢喜
- 鞋柜|我家无玄关的玄关设计超赞!左邻右舍来参观,看完都要回家照着装
- x2|三层现代风格别墅 140平米,清新脱俗,是当下年轻人最喜欢的设计
- 传统|189平现移步换景,以景造景打造富有传统韵味的新中式设计
