原木|她重新定义空间,用现代手法演绎东方文化,让全屋尽显烟火气
每个人应该都是很自我的,不管是对生活,还是对居住空间,都有着自己的态度,无需考虑别人的感受。就拿本案中的女主来说,她就希望自己的新家是干净温暖的,且会更注重空间中的交流与互动性,不希望出现常规设计中的刻板。
因此,在空间设计上,不仅摒弃了传统布局,重新定义了空间功能;还在设计风格上,以现代的处理手法演绎了东方文化。从而让整个空间,自然透露出了质朴、自然、含蓄、精妙的空间氛围,看起来简直一尘不染,非常有烟火气。
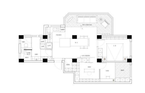
平面结构图
新房坐标广州,套内面积85㎡,从原户型结构上来看,可以说结构缺陷很多,也可以说户型很优质。缺点是,空间过于零碎、承重柱及房梁太多、厨卫空间过小、空间规划不明确等等。而优点,也正因为承重柱的存在,内部墙体均为轻体墙,所以可改造点也很多。同时,由于异形阳台的存在,整个空间的采光也非常棒。
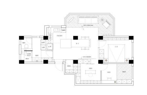
平面方案图
结合屋主需要双卧室功能,并希望空间更加注重互动性,所以在布局上也打破了传统,放弃了常规客厅功能,具体规划如下。
1、将厨房与卫生间打通合并,并以三分离的结构重新规划成卫生间,并兼具洗衣功能。
2、取消常规的客厅功能,并选择一张大餐桌来配置,以增加空间的多功能性。同时,将厨房设计到餐厅内,形成一体化结构。
3、结合阳台的结构,配置一张大沙发,将其打造成全景休闲区。
4、次卧一分为二,规划出一间独立的茶室,让屋主有一块静心场所。
客厅
从客厅的色彩搭配就能看出,通过整体大量留白,原木以及复古的水泥元素搭配,不仅巧妙呼应了东方文化主题,也点缀出了古朴、自然、纯粹的画面感。同时,这种去繁从简的布局方式,也还原了生活的本真。
二次规划出的厨房区域并不大,仅配置了一组L形的橱柜,不过搭配上餐桌旁边的岛台后,却也延伸了厨房的功能性。不管是储物收纳,不是日常操作,都极为的方便。而一张超大的原木餐桌,则兼具了用餐、品茶、阅读、接待、办公、交流等多种功能。
进门鞋柜则是设计在了入户门旁边的储物间里,将墙面与柜门做成一体化,并取消柜门拉手,采用按压式门板来处理,也让空间看起来更加工整了。同时,细腻的线条,也让视觉更有层次了。
顶部的大梁并没有做过多的处理,直接与复古的水泥柱搭配在一起后,不仅为空间增添了力量感,也体现出了东方美学的细节美。
而放弃顶部的主灯,选择辅灯来照明,也凸显出删繁去简的视觉感。考虑到这个客厅是以功能性来定位的,所以右边顶部,也预留了投影设备,满足了观影的需求。
原有的异形阳台,则是采用地面抬高的方式,延伸出了一块休闲区。这样既明确了空间功能,也增加了一抹生活仪式感。而一张绿色的沙发配置,则在点缀空间的前提下,也与外面的自然绿景有了呼应的联系。
推荐阅读
- 她家148平米,进门就被玄关迷住,不做吊顶跟背景墙,阳台超漂亮
- 薄荷蓝|走进她家,才知什么叫美观与实用并存,全屋温暖又清爽,太舒服了
- 乳胶漆|看她家装修,比样板房还漂亮,电视墙特别实用,值得做参考!晒晒!
- 购房置业|为什么这个阿姨开发商给她退房后,还要大闹售房部
- 老房|她坚持买下73㎡一楼老房,完工后逆袭『双花园美宅』,太睿智了!
- 罐罐|听我一句劝:厨房别再摆瓶瓶罐罐,学她家这样做,美观方便还不贵
- 黄晓明|她还买不起房?
- 纸袋|她家房子不大,但全屋“隐形”收纳确实惊艳,真是美观与实用兼具
- 户型|通过后期户型改造可以大大地提高生活品质,看了她家方案,学习了
- 一线城市|还记得那位一口气买了10套房,月供百万差点破产的女孩吗她现状
