北欧|128平现代北欧四居室,让空间充满档次感,华丽而又精致( 二 )

衣帽间定制了大面积的衣柜空间,为主人提供了充足衣物储藏位置。
玄关的采光宜明不宜暗,通常玄关没有窗户,因此极少会有自然采光,必须得通过安装灯具来进行照明,装修时必须要考虑电器插座的设置。玄关的灯具简单就好,彩灯会影响人的视线,美观但不实用,不推荐使用。
玄关对着走廊的空白墙面,挂一幅森林画面的竖幅装饰画,地上一盆小琴叶榕,让空间显得格外的清新雅致
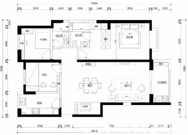
此户型整体方正,空间划分清晰明确,格局搭配得当,空间利用合理。
推荐阅读
- 混淆感|146㎡北欧经典白色三居室,诠释令人心醉的优雅
- 卫生间|129平现代美式三居室,打造出一个舒适又温馨的美式家
- 三居室|118平现代风三居室,一个简单而纯粹还原生活色彩的家
- 郑州|买房月供曝光!郑州最新平均工资8694元,撑得起房贷么?
- 石家庄|144平的面积,无人值守棋牌室,这是如何做到的?
- 简单感|现实的平衡取舍,才是生活之道!143平现代风格设计欣赏!
- 她家148平米,进门就被玄关迷住,不做吊顶跟背景墙,阳台超漂亮
- 修建|精选10套三层户型图纸,占地面积均不足百平,尤其适合新农村修建
- 南通|拍卖成功!江苏南通一处197平住宅192万成交!
- 木纹板|装修案例欣赏:小北欧风格的居家设计,简洁的同时又不失温馨感!
