厕所|老公坚持给厕所“三分离”,邻居不解,入住才知后悔没效仿!晒晒

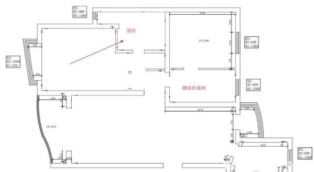
这是我家原始的户型图,我们这个小区比较便宜,户型一般,大多数都是像我们一样的年轻人,作为刚需购买。因为这个房子是两室两厅的户型,但是实际上,还赠送了一个小房间。而且厕所的面积也还挺大的。
通过改造后,因为考虑到后期会入住三口人,其次我和老公都是属于比较磨蹭的那种,在厕所洗漱,洗澡的时候都会花比较长的时间。为了保证将来一家人都足够用,所以就这么设计了。大家可以看看改造前后的平面对比,下面是实景图。
【 厕所|老公坚持给厕所“三分离”,邻居不解,入住才知后悔没效仿!晒晒】改造后如今的厕所门洞,就在靠近主卧的门口。
门口的区域首先是一个干区,干区因为没有水汽,所以没有装门,而且也没有做门槛石,直接把地板和瓷砖用收边条处理,看上去会比较简约美观一些,而且这样一来一家人用起来也会更方便,过道也可以更通透一些。
干区主要用于洗脸刷牙,洗手化妆用。为了尺寸相符,我们找了好久才找到大小正合适的洗面盆,所以就买了这个超大单槽的,下面装点小柜子,增加一点储物,顺便给下水管做一些美化收口。大家可以看到,现在的龙头装了两个,就是可以保证我们早上起床,可以不用等待对方,一起刷牙洗脸都是可以的,而且镜子也装了美容灯,还有镜柜。
背后打开可以有很多收纳,就不用堆积在台面上了。美容灯柔光护眼,化妆护肤的时候脸部被照射的很清晰。下面的镂空摆放脏衣篓,特别的方便。
换个角度,可以看到正面有一个双推拉门,进去后是洗浴室。右边有一个单推拉门,进去之后是马桶区。这样比如说,老公在上厕所的时候,我也可以去洗澡,如果说父母过来住了。两个人一起刷牙洗脸,一个人上厕所,一个人洗澡,都是没有问题的。这种三分离不仅可以有效提升效率,干湿分离之后,还可以减少霉菌,水汽的蔓延。像我家的马桶区,一般马桶外是没有明水的,可以一直保持干燥,装抽风机就可以排味了。
侧面的浴室区,可以看到玻璃推拉门采用的是透光不透影的磨砂玻璃,很有质感而且保证隐私又不压抑。
进去之后,首先是一个小巧的泡澡区,偶尔需要舒缓压力,泡泡澡对身体很有好处。
推荐阅读
- 烤漆面|老公坚持餐厅不做柜子,原来用吊兰做隔断可以这么漂亮,学到了
- 插头|老公花了100块钱把家里插座装成这样的,再也不用拔插头了,真是太机智了
- 购房置业|夫妻俩大胆改造老房,坚持把3房改为1房,过于舒适了
- 主卧室|为了20㎡小院子,老公坚持买一楼,完工进屋就被迷住了,晒晒
- 老房|她坚持买下73㎡一楼老房,完工后逆袭『双花园美宅』,太睿智了!
- 防盗窗|老公硬把阳台改卧室,在窗外加个“假阳台”!完工都夸他机智
- 摄像师|日本单身宅男9㎡小家,厕所巴掌大却有浴缸,玄关晾衣服格外整洁
- 嵌入式|10个“打脸”的装修决定,当初有多坚持,如今就有多尴尬
- 风格|90后夫妻坚持自律,新房住三年依旧一尘不染,装修风格引人学习
- 老公|老公只不过让衣柜“拐个弯”,一房变两用,一下省几千块,真机智
