业主|154㎡清新自然风,混搭出一个与众不同的家,颇具艺术气质
案例背景
本案是一个四口之家,包括业主二人和他们的一双儿女,业主的父母过来带孩子的时候会临时住上一段时间。本案的男主人从事的是AI设计行业,女主人是美术教师,买下房子之后热衷于室内设计的业主也曾想自己设计,但是对于非专业人士来说,跃层的设计相对比较复杂,最后只能作罢,找来了本案的设计师操刀设计。

【 业主|154㎡清新自然风,混搭出一个与众不同的家,颇具艺术气质】
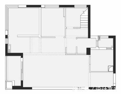
结构改造
业主最开始出于降低预算的考虑,打算采用北欧风,后来经过多方面的对比以及分析,最后决定用自然风混搭来打造他们的新家。在户型改造上,设计师根据业主的要求,拆除了房屋内的非承重隔断墙,可以说是把内部全部拆空了进行重新设计。比如,在入户的位置做了一整壁的鞋柜来解决储物问题,但是柜子太多会觉得拥挤,于是把厨房的隔墙打掉做成玻璃的,这样不仅拥挤不在了,而且还使厨房的采光得到了改善。另外,将原户型的楼梯移到餐厅与客卧之间,这样在减少空间浪费的同时,也更符合日常行走的动线。还有就是保留了一个洗衣房。



案例详解
客厅
实木元素由内向外延伸,温润的原木与纯白的墙体成为空间主体,自然光映照在上面,让空间产生冷暖交融的气氛。
简约的球状主灯搭配点光源,传统与现代的交相辉映。客厅中没有复杂的装饰陈设,形制简单的茶几、单人椅与灰黑的布艺沙发成为客厅的领衔主角。窗外和煦的阳光晒在白墙与实木家具上,独特的色彩让整个空间都包裹在静谧慵懒的家居氛围中。

绘画教师的职业调性使得房间里少不了美术元素的存在,中外不同风格的雕塑,低位摆放的墙画,以及收纳画卷的篮子都可作为新家的点缀。

餐厨 横厅结构的公区赋予客餐厅整体的联动性,同时能够保证足够的采光与通风。宽敞的公区空间一点也不显拥挤,方便业主调皮的小儿子任意玩耍。
厚实的四角木质大圆桌,给人以沉稳的感觉,与白色的半圆球吊灯相呼应,同时搭配几把略显俏皮的餐椅,中和了空间中的厚重之气。
在外闯荡的人回到家中,放松紧绷的神经,安享家庭的温暖氛围。夜晚时分,和家人围坐于桌前,面对热气腾腾的饭菜,听着锅碗瓢盆碰撞发出来的声音,心中油然生起一股温馨的暖流。
推荐阅读
- 屋主|56㎡小户型老房改造,小而美的设计!
- 现代风|168㎡现代风,带着浓郁的归属感与愉悦感
- 深色|155㎡简约风,承载着三代人的生活,不花哨让家务少一半
- 混淆感|146㎡北欧经典白色三居室,诠释令人心醉的优雅
- 饱和度|173㎡轻奢新中式,古典和现代的碰撞,唯美浪漫!
- 背景墙|97㎡现代风,以时尚打造空间,以新颖突出特点
- 地板|160㎡四居室,玄关比我家卧室都大,这才是真正的低调奢华有内涵
- 棚户区改造|开盘预告|合肥又有6盘要加推,均价1.39-2.54万/㎡全都有
- 小房间|参观140㎡大婚房,朋友都夸餐边柜有档次,我却更喜欢主卧的飘窗
- |73㎡复古风两居室,年轻夫妻的高品质生活
