三居|140㎡自然简约风三居,一体的多功能空间,羡慕!
本案是一套面积为140平米的自然简约风三居室,男主人是一名游戏美术设计师,女主人是一位自由职业者,他们所期待的家是环保、简约、温馨的,以实用舒适为主。整个空间以白色+原木为主,简洁而克制。
这个家的设计,很符合两口子的生活方式,平静而美好,正是他们所向往的一片净土,种花、养狗,健身、阅读,用悠然自得来形容他们的生活状态再合适不过,真是好不令人向往。
图赏
▲原始结构图
原玄关是一个独立的空间,采光差很昏暗;整个房子的动线拥挤混乱;拥有一个面积约50平米的主卧,需好好规划利用。
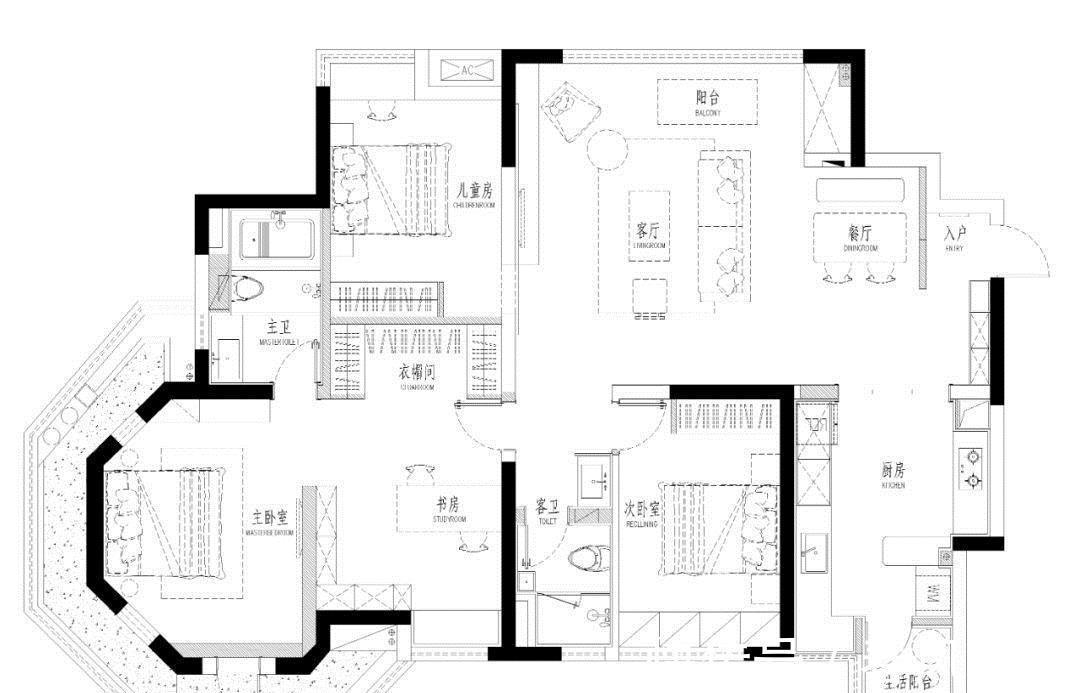
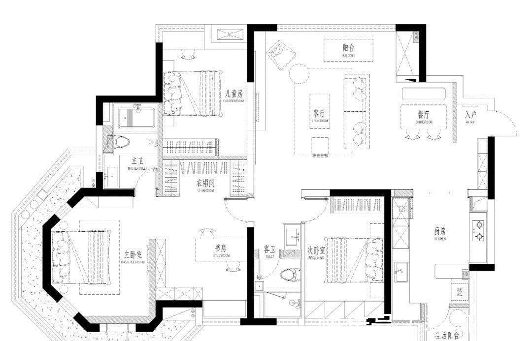
▲平面布置图
户型改造:拆了原玄关处的墙体,新建造型隔断,并将隔断向门口方向退一定距离。
此时既保证了玄关的采光与使用,同时增加了客厅整体使用面积; 将动线梳理,改变3个房间的进入位置,过道变得不再拥挤; 改变三个房间的入口后,主卧入口得以外移,增大卧室面积,同时拆除原有格局不合理的空间,变为卧室+书房+主卫+衣帽间与一体的综合空间,将优势利用最大化。
玄关
改造后的玄关,采光问题得到了解决,也增加了客餐厅的使用面积。
入户左边是换鞋收纳区,换鞋凳下预留了家居鞋和扫地机器人的置放位置,户外鞋则全部可收与柜中。
整个鞋柜+换鞋区域长度为1800mm深度为350mm,换鞋区域为600mm,结束一天的工作,回家可以坐着舒适的换鞋很有必要。

造型隔断为悬空的形式,且中间留有造型洞,造型洞宽300mm高500mm,避免隔断过于压抑生硬。隔断离地250mm,这种悬空的造型也便于扫地机器人的工作。
餐厅
玄关进来就是餐厅区,大白墙、原木餐桌椅,简洁自然,健康环保。
厨房
将原始的墙体改为玻璃推拉门,增加了整个厨房的采光,同时将生活阳台的位置缩小以增大厨房的使用面积。厨房外的生活阳台虽小,拆改后生活阳台的尺寸为长2180mm宽1555mm,空间上足够满足洗衣晾晒需求。
厨房空间以灰色为背景色,安装了原木色橱柜,搭配白色台面,冷暖调和,优雅质感中不失家的温馨。
客厅
小两口需要一个健身空间,设计师把休闲阳台与客厅结合后,用这个空间来摆放跑步机,平时可以折叠收纳到阳台的柜体里隐藏起来,时刻保持简洁舒适的体验感受。
沙发则是选择了Innovation的折叠沙发,可坐可躺,可根据需要调到自己舒服的形态。
电视背景墙为现场木作,儿童房的入口也隐藏在其中。根据客厅的面积,选择了屏幕尺寸较大的智能电视,达到视觉最舒适的效果。
推荐阅读
- 屋主|56㎡小户型老房改造,小而美的设计!
- 现代风|168㎡现代风,带着浓郁的归属感与愉悦感
- 深色|155㎡简约风,承载着三代人的生活,不花哨让家务少一半
- 混淆感|146㎡北欧经典白色三居室,诠释令人心醉的优雅
- 饱和度|173㎡轻奢新中式,古典和现代的碰撞,唯美浪漫!
- 背景墙|97㎡现代风,以时尚打造空间,以新颖突出特点
- 地板|160㎡四居室,玄关比我家卧室都大,这才是真正的低调奢华有内涵
- 卫生间|129平现代美式三居室,打造出一个舒适又温馨的美式家
- 三居室|118平现代风三居室,一个简单而纯粹还原生活色彩的家
- 棚户区改造|开盘预告|合肥又有6盘要加推,均价1.39-2.54万/㎡全都有
