一半皇家风,一半现代感,营造高贵矜持的新家,让朋友羡慕不已
本文所提到的案例位于浙江宁波,一套140平方米的三居室住宅。主人成熟稳重,事业有成,设计采用中国传统的建筑设计元素,大量使用黄色,从配色到装饰,细节做的足足的。
户型:
三室
面积:
140平米
预算:
50万
城市:
浙江宁波
设计师:
陈乔春
空间展示
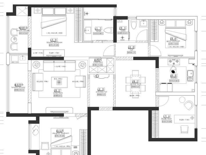
【户型图】
【 一半皇家风,一半现代感,营造高贵矜持的新家,让朋友羡慕不已】
户型解读:
从原始户型图来看,这套户型比较舒适,空间方正规矩,阳台面积多。不足的是,内部空间的韵律比较单一,即空间大小变化少,尺度单一,尤其是客厅的位置。
【玄关】
设计重点:红色桌子
入口处的设计具有中世纪古典的风格,大胆而不夸张,叛逆而不浮躁。朱红色高脚桌,雕花精美,桌面摆放金色空相框,框住蓝白色菱格墙面砖。具有艺术感与神秘气息。
【客厅】
设计重点:玄色沙发
秦时皇室以玄色为尊,明清时期非皇室不得使用明黄色,黄色是中国古代皇家身份的象征,中华文化源远流长,时至今日,黄色仍然能展现出权利与地位。客厅作为家中会客活动、使用频繁的区域,采用黑色和黄色相结合的方式进行设计,彰显出主人的气质。
素雅的墙面不加修饰,质感舒服。玄色沙发临墙布置,旁边摆放一个黑色落地储物柜,颇具中国古代药匣子的感觉。亚麻材质地毯上放一个黑色方形茶几,桌腿和四周刷蓝色漆,有皇家建筑屋顶琉璃瓦的象征。
客厅用明黄色窗帘,沿着阳台放置一个淡黄色缎面椅子,典雅华贵。吊灯仿佛一大簇树叶,晶莹剔透。
坐在阳台边,喝杯咖啡,看看杂志,把玩一下精致的昆虫小摆件,享受惬意的午后时光。
客厅宽敞明亮,大方简洁。
黑色皮质沙发椅和灯芯绒质感的沙发相互协调。
【厨房】
设计重点:橱柜
厨房设计的颜色洁白,地砖光洁。
【餐厅】
设计重点:橱柜
橱柜仍然使用黄色,底层封闭,用黑白条纹的柜门。
精致的盘子和饰品。
独角兽挂画
餐桌圆形,桌腿使用龙纹,四把餐椅金黄和暗红相组合。而右侧的墙体则挂着一幅现代画作,一半是雍容华贵,一半是简约现代。
推荐阅读
- 深色|155㎡简约风,承载着三代人的生活,不花哨让家务少一半
- 户型|北漂夫妻买下24㎡婚房,柱子4米宽,窗台就占户型面积一半
- 虹口|虹口四子成绩单出炉!弘久新弘北外滩547组认购,中皇北岸锦源未触发积分
- |庭院规划,我心里有数!用篱笆圈一个菜园子,留一半铺防腐木休闲
- 衣柜|年终“断舍离”,扔掉7类物品,大扫除任务就完成了一半
- 优雅|意大利公寓设计欣赏,一半现代简约轻奢,一半艺术复古
- 碧桂园|2021年,皇姑区是土拍最大赢家 次次踩在点儿上
- 深圳市|皇姑首府VS大东望花,两个区域备受热议,今天告诉你怎么选
- 卧室床|装修做好这8处细节,入住实用省心,少做一半家务活
- 攻略|装修过2套房子的经验总结:掌握这13条装修攻略,入住家务少一半
