新房|我家光硬装就花了19万,搭配软装效果真漂亮!104平新房拿来晒晒
我家光硬装就花了19万,搭配软装效果真漂亮!104平新房拿来晒晒~搭配软装打造成了一个时尚、奢华的家,完工比效果图漂亮多了,给大家晒晒!
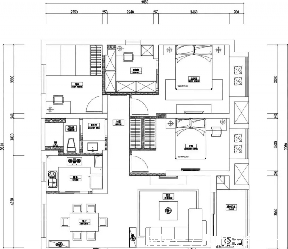
【 新房|我家光硬装就花了19万,搭配软装效果真漂亮!104平新房拿来晒晒】平面布置图
客厅的电视背景墙贴了湖蓝水纹墙纸,周边加实木线条装饰,与恬淡静谧的落地窗呼应,舒适又时尚。
浪漫的浅蓝色沙发背景墙,搭配墨绿色真皮美式沙发,两者形成鲜明的对比,彰显美式独有的质感。
实木的茶几上简单地摆着黄色插花,结合墙上的抽象挂画搭配黄白色花纹地毯,无不凸显出客厅极致自然的美感。
生活阳台也是相当实用的,一半用来洗衣晾晒,一半用来作休闲区。
地面铺贴米黄色地砖,搭配黑金花包边,巧妙使客厅与餐厅有空间独立性的同时又有着连续性。
餐厅,选择实木餐桌椅搭配精致的餐具和绿植装饰,在素雅透光的窗帘衬托下,显得优雅又大气。
餐边柜上装点花艺给整体空间添加一抹生机,自然而美好。
厨房墙面铺贴美式复古墙砖,同时为避免整体颜色太过深沉,白色的橱柜搭配浅色的大理石台面,稳重又时尚。
餐厅和客厅隔着一条过道,过道空间被充分的利用起来,设计嵌入式收纳柜,尽头悬挂一幅山水风景画,增添一丝文艺气息。
定制集榻榻米+衣柜+茶室为一体的多功能房,上升式茶桌的巧妙设计,不仅可以作为床、也可以是桌子、茶几等等,非常实用。
儿童房以暖色系为主色调,背景墙和床品都融入温馨舒适的粉色和白色,两者相互衬托,呈现出别样的美。
主卧的色彩和材质都在体现淡雅、素净的空间格调,再搭配一套香芋色的床单,凸显出一个简单不失贵气的睡眠空间。
灰色调碎花背景墙,质朴雅致,能给人带来较好的视觉享受。
主卧床侧是步入式衣帽间,采用百叶造型的移门作隔断,白色百叶也增添美式的小格调。卫生间铺贴米黄色复古砖,增加空间感和质感的同时又时尚大气,白色浴室柜搭配深灰色水纹大理石台面,稳重华贵。
推荐阅读
- 装修|乔迁新房3月以泪洗面!当初的不理智,连犯15个极品装修坑!作孽
- 疯狂|1月20日广州新房网签210套,增城以43套再次蝉联榜首!势头强劲!
- 地板|160㎡四居室,玄关比我家卧室都大,这才是真正的低调奢华有内涵
- 装修|空调外机万万不能这样挂墙,若不是师傅提醒,我家都装错了!
- 大门|房子大门万万不能朝这地方开,师傅看了摇头,怪不得我家越住越穷
- 垃圾桶|家庭主妇:厨房地柜不要全打满,空一格更实用!后悔我家装太早了
- 鞋柜|我家无玄关的玄关设计超赞!左邻右舍来参观,看完都要回家照着装
- 密封夹|我家厨房10个超级可爱的小东西,好看又好用,做饭心情都会变好!
- 亮点|等了6个月终于能晒晒新房了,都挺满意的,客厅是最大的亮点
- 武汉|合肥楼市新房火热的原因找到了
