简约风|135平简约风三居室,是永恒、纯粹且有力的一个存在
在思及关于家的梦想时,设计师读到了这样一段话,内心深处有触动。在他的理解中,家承载着人们丰盈的美好想象,是自然与生活串联起的每幕场景与每份情感的发生地,是给予着居住者安适感、温度与爱的一座自由的私岛,家在在漫长的岁月中是永恒、纯粹且有力的一个存在。
【 简约风|135平简约风三居室,是永恒、纯粹且有力的一个存在】家里客厅的色调选择性很多,比如米色、浅绿色等,看起来都很大气,而且整体看起来很儒雅。沙发颜色可以选择的清新一点,这样让人有耳目一新的感觉。
??
??
软装上则搭配黑白灰带木色的家具,简洁的造型,让空间看起来也整洁了不少。
??
??
客厅整体色彩层次丰富,但遵循统一呼应。
??
??
同时为了避免空间单调乏味,所以加了一些亮色的元素来点缀装饰。
带有一点隐私性质的卧室说起来也不能草草了事,装修过程中除了注意舒适便利以外,还要符合现代人的奇思妙想,色彩建议采用能让人心静下来的暖色系,可以提供一种温馨的氛围。
??
??
由于卧室是睡眠区域,以柔和的灰粉、调子进行呼应,精心挑选的装饰画也迎合了整体色系,旨在达到屋主对艺术追求的同时,保证家应有的舒适度与温馨感。
??
??
次卧业主希望设计出干净整洁且素净的感受,所以大面积地使用浅色来满足业主的要求以及她对颜色要求。
??
??
主卧色调相对较沉稳,为营造出休息的空间,避免了饱和度过高的颜色,使用了想多灰度较高的色彩来搭配。
餐厅无非就是一张餐桌,几把椅子,顶多再配上餐边柜、酒柜,但如果赋予不同的色调,餐厅立刻就活色生香起来啦!一个好的餐厅设计,会给生活带去更多快乐,拥有一个浪漫的用餐环境是一件很开心的事情。
??
??
客厅的墙面刷成时下比较流行的浅灰及深灰色,从而突出了空间的层次感。
儿童房的设计很关键,它可以影响到孩子的童年成长,如果你在装修之前已经有孩子了,就可以参考孩子的意见进行装修,如果没有孩子可以留一些空间,可以随着孩子的成长不断地变化。儿童房装修的重点就是选材,我们要考虑到对孩子的健康成长,在新房装修之后做好通风一年,再让孩子进去入住。
??
??
全屋榻榻米的设计,整个房间都被改成了榻榻米,让次卧拥有更宽敞的娱乐空间和储物空间,淡蓝色的窗帘提升了次卧的颜值。
?
??
??
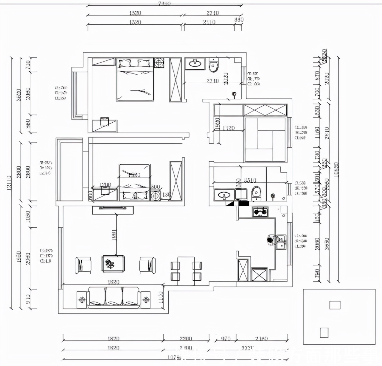
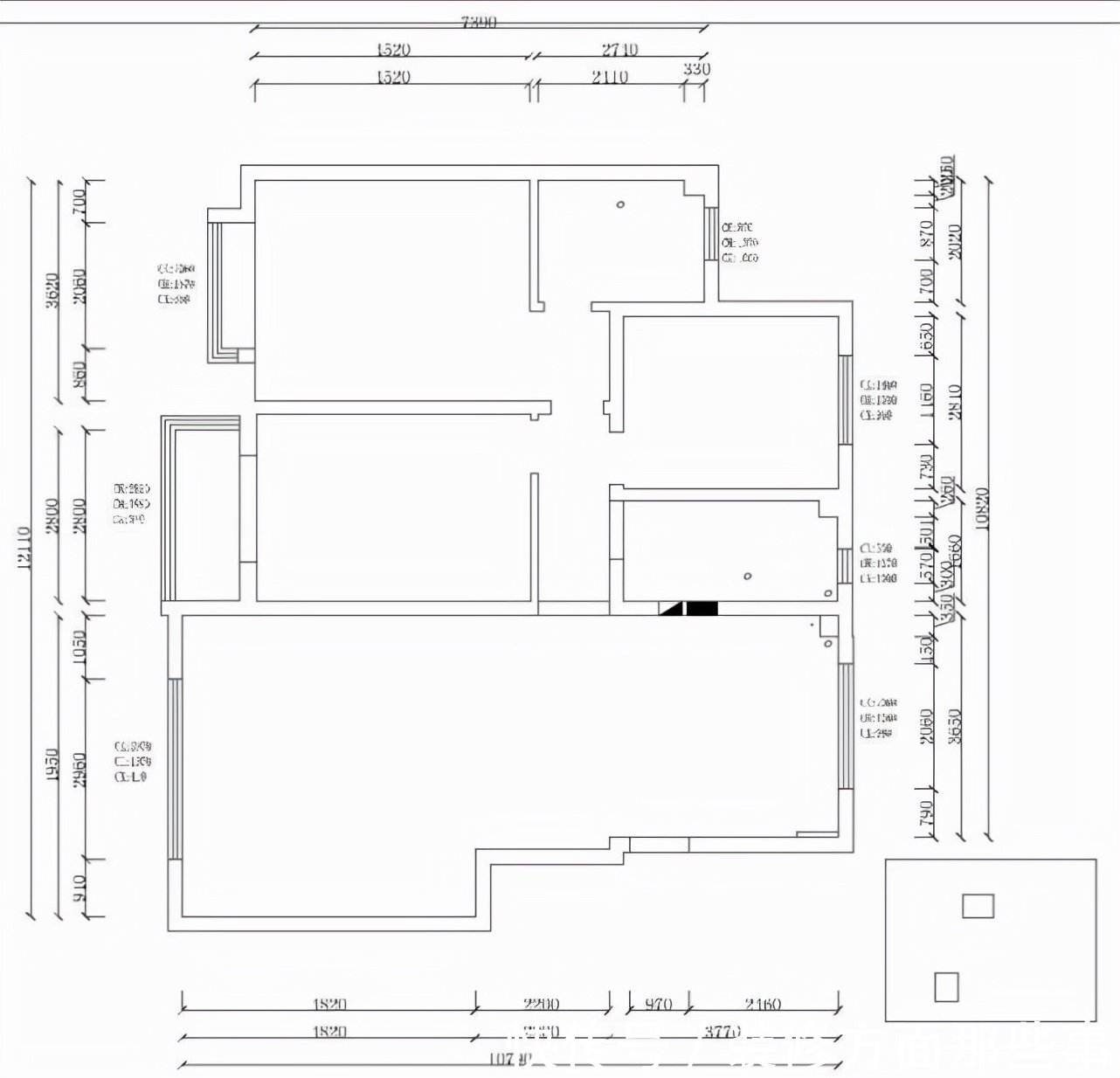
本案房子建筑面积为135㎡,房子比较方正,使用率高。
??
??
原始户型图,户型较为方正,在拆改较少的前提下满足客户需求。
推荐阅读
- 现代风|168㎡现代风,带着浓郁的归属感与愉悦感
- 深色|155㎡简约风,承载着三代人的生活,不花哨让家务少一半
- 助贷|助贷咨询:企业抵押贷款常见风险
- 背景墙|97㎡现代风,以时尚打造空间,以新颖突出特点
- 三居室|118平现代风三居室,一个简单而纯粹还原生活色彩的家
- 简单感|现实的平衡取舍,才是生活之道!143平现代风格设计欣赏!
- 宋智雅|不只穿假货!宋智雅豪宅全是租的,公主风奢华住所都是TA在出钱供
- 木纹板|装修案例欣赏:小北欧风格的居家设计,简洁的同时又不失温馨感!
- |73㎡复古风两居室,年轻夫妻的高品质生活
- 二手房|没有过户,房子就不是你的!二手房“延期过户”有哪些风险?
