入户处|看到她家,才知道什么叫简约大方,漂亮有格调,是被人羡慕的样子
个人认为,好的家居设计不应该是各种造型和装饰物堆砌起来的,更多的是结合自己和家人的生活习惯去布置每一个空间,这样的家住起来才会舒适,才会有生活气。今天分享的案例便是如此,房屋建筑面积135平米,第一眼看到她家,才知道什么叫简约大方,漂亮中散发着一种格调和高级感,不像有的装修,看久了会觉得俗气,这套房子可以说是越看越耐看,还很实用,尤其是将入户一分为二,隔出了一个生活阳台,真是聪明极了,整体效果在保证了实用性的基础上,颜值也是一绝,完全可以照着抄,忍不住给大家晒晒。
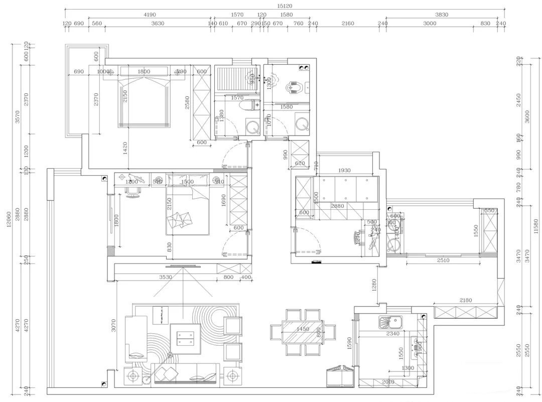
户型图
客餐厅一体设计,地面通铺灰色瓷砖,整体显得特别的宽敞通透,这里特别注意的是,大家在选择通铺瓷砖的时候一定要注意美缝的颜色,尽量采用跟瓷砖一样的色调,这样从视觉上整体感会更强,从而具有放大空间的效果,加上客厅没有安装主灯,家具也不繁琐,所以看起来整个家会显大很多。
餐厅角度看客厅站在餐厅角度看客厅,整个空间也是通透无比,将阳台打通之后,使用面积增加了不少,阳光透过外面的落地窗照射进来,每一个角落都亮堂极了。

入户、生活阳台入户处的设计是一个比较吸睛的地方,为了增加采光、通风和增设一个独立的晾衣区,这里砌了一堵墙,凿出一个门洞,将入户处的空间用玻璃门一分为二,左边是鞋柜,右边就是生活阳台,这样就多出来一个功能区,简直不要太聪明。
这个生活阳台是西晒,所以晾衣服是再合适不过了,靠着墙壁做了一个洗衣柜,手洗机洗都能够同时满足,顶部的吊柜用来收纳晾衣架和洗衣液等,拿取也很方便。

入户进来往左转就是餐厅厨房,把餐桌椅横向摆放,不占用过道空间,灰色和橙色的组合餐椅,简约大气又不失活泼温暖,搭配一盏长条一字吊灯,满满的格调和时尚感,与黑色的桌椅腿也很搭,视觉很和谐。旁边做了一个餐边柜,嵌入了冰箱,节省了厨房的空间,柜子采用玻璃门+开放格+封闭门组合设计,满足不同的使用习惯,浅卡其色柜门搭配黑色木饰面柜体,相当的有质感。

厨房采用U型橱柜布局和高低台面,不仅储物充足,操作便捷,还符合人体工程学设计,洗菜不要用弯腰,炒菜也不用抬着胳膊,白色橱柜搭配灰色的地柜,干净清爽又简单大气,丰富了空间色彩层次,墙面上装了两排置物架,用来摆放调味瓶罐,释放台面空间,方便拿放。
客厅没有安装主灯,这样不会占用视觉层高,显得空间很敞亮,在吊顶上方安装了灯带,嵌入了筒灯,地上也放置了落地灯,可以根据各种生活场景切换不同的光源,营造出来的氛围感都不一样,平时开着灯带观看电视也不会太过晃眼,所以不装主灯的光照度是完全足够的。
推荐阅读
- 房产证|婚前财产婚内可以自行处理吗
- 施工者|不管家多大,装修时做好这12处细节,美观与舒适并存,幸福感提升
- 公示|一处体育中心项目、一处小型口袋公园!市北两项目规划公示,配套升级
- 购房置业|今年起,农村老家的老房子,统统按照“新规”处理,子女提前知晓
- 住建部|高层“停建”?已明确:2022年按“新规定”处理,两类住房遭疯抢
- 南通|拍卖成功!江苏南通一处197平住宅192万成交!
- |看到对门挂这个,赶紧让他拆了,不然财运就要走下坡路了
- 马桶|把洗手台埋到墙里,卫生间一下变大了很多,美观又实用,好处多多
- 灵魂深处|全屋定制案例|儒雅新中式,展现灵魂深处的东方情怀
- 烂尾楼|恒大暴雷了,那些随处可见的烂尾房塔吊到底属于谁?
