三居室|86㎡三居室装修,开放式书房、多功能电视墙,精致有格调!


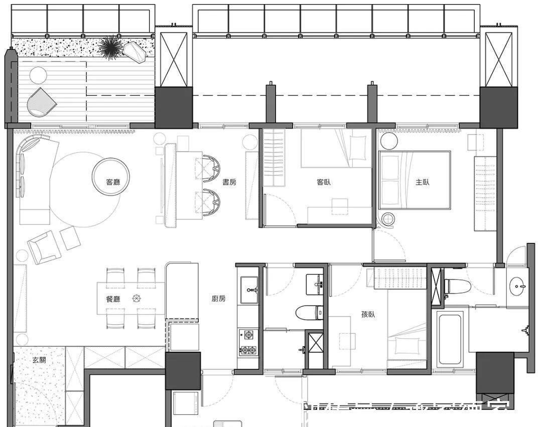
▲平面布局图


▲入户走廊式玄关,地面采用水泥自流平,既划分了空间,还打造出落尘区。进门右手边定制了木质玄关柜+大理石换鞋凳+细长穿衣镜,兼具颜值与实用性。



▲客厅,整体以灰色系为主色调,圆形的茶几、地毯,加上无主灯设计,给人一种简洁大方的感觉。设计师对电视墙重新改造,大理石砌起的半高墙面,并在两侧设计了弧形造型,温润柔和。


▲电视墙背后就是书房空间,将非承重墙拆除,做开放式布局,整个空间看起来更加宽敞通透。电视墙背侧设计了开放格书架,实用且不占空间,空间的极致利用。



▲餐厅,造型简洁的餐桌椅靠中岛摆放,留出了充足的活动空间,亲友到访时拉出来秒变轰趴局。



▲开放式厨房,打造了大大的中岛,及分隔了餐厅空间,还增加了厨房的操作台,充分利用了空间。



▲主卧,软包床头靠背延伸出圆弧造型,温柔的包裹感, 让入睡更有安全感。床尾墙面定制了衣柜+化妆台的组合,大大提高了空间利用率。

【 三居室|86㎡三居室装修,开放式书房、多功能电视墙,精致有格调!】▲次卧,作为儿童房设计,利用凹陷处定制了床铺,完美锲合空间,留出了更多的活动区域。
推荐阅读
- 屋主|56㎡小户型老房改造,小而美的设计!
- 现代风|168㎡现代风,带着浓郁的归属感与愉悦感
- 深色|155㎡简约风,承载着三代人的生活,不花哨让家务少一半
- 混淆感|146㎡北欧经典白色三居室,诠释令人心醉的优雅
- 饱和度|173㎡轻奢新中式,古典和现代的碰撞,唯美浪漫!
- 背景墙|97㎡现代风,以时尚打造空间,以新颖突出特点
- 地板|160㎡四居室,玄关比我家卧室都大,这才是真正的低调奢华有内涵
- 卫生间|129平现代美式三居室,打造出一个舒适又温馨的美式家
- 三居室|118平现代风三居室,一个简单而纯粹还原生活色彩的家
- 三栋镇|最高8.48万/亩!要征115亩地!涉及三栋、河南岸!
