老宅|45㎡老宅焕新,蜗居也能变得如此惊艳
舒适度满满又高颜值的家,是我们对美好生活的向往。
分享世界各地好看的家,给自己家里装修和装饰提供最直接的视觉参考,给不一样的生活方式提供灵感,给眼睛提供舒适感,最最最重要的,我们也能不断提升审美和品味。
接下来让我们进入存图模式吧~~~
今天要分享一套45㎡的老宅焕新,房子的面积不大,但是基本功能齐全。
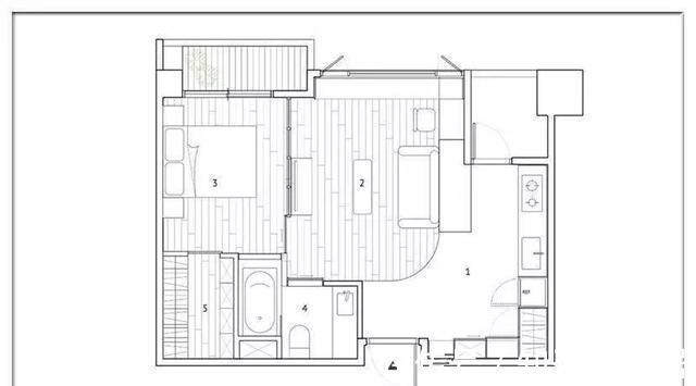
【 老宅|45㎡老宅焕新,蜗居也能变得如此惊艳】室内平面布局
入户空间简约而整洁,弧形的水泥地面,与客厅的木地板刚好形成了巧妙拼接,在视觉上产生功能划分的效果。

从通顶式的木质壁柜延展开来,视线就落到了厨房区域
开放式的布局,可以让空间显得更宽敞。
厨房的收纳也融入了很多巧思,大体量的冰箱做了嵌入式设计;厨房的操作台下方也做了橱柜,大大增强收纳功能。
上方空间则为了避免压抑,所以采用简易的搁板代替吊柜。
摆放了一盆绿植,让厨房显得更有生机,清爽的颜色搭配简约的设计。

厨房和客厅的关系,颠覆了以往的传统布局。
展现了一种充满个性的生活方式,客厅的设计和摆设
也延续了整体空间的简约基调,以功能性家具为主,干净利落得没有一丝多余。
一旁的飘窗是整个空间的亮点,它在优化采光和视野之余,也满足了一部分收纳需求,可以放置书籍和杂物,为生活提供更多的方便。



卧室作为家里的私密区域,以一道半透明的隔断墙,以及隔断墙旁边的玻璃门,与公共空间进行区隔。
完美的采光布局,尽可能地凸显了卧室的通透感,而整个电视墙的设计,又刚好高于床的位置,让私密性有了更多保障。


走进温馨简约的卧室空间,同时看向房间的左侧,你一定会被里面的衣帽间给惊艳到。

开设了两个入口,一个是玄关处,另一个是卧室的内部,彼此以一道玻璃门隔开,实用功能上大幅度升级。
推荐阅读
- 屋主|56㎡小户型老房改造,小而美的设计!
- 现代风|168㎡现代风,带着浓郁的归属感与愉悦感
- 深色|155㎡简约风,承载着三代人的生活,不花哨让家务少一半
- 混淆感|146㎡北欧经典白色三居室,诠释令人心醉的优雅
- 饱和度|173㎡轻奢新中式,古典和现代的碰撞,唯美浪漫!
- 安置|上城区紫阳街道加速回迁安置 焕新美好家园
- 背景墙|97㎡现代风,以时尚打造空间,以新颖突出特点
- 地板|160㎡四居室,玄关比我家卧室都大,这才是真正的低调奢华有内涵
- 棚户区改造|开盘预告|合肥又有6盘要加推,均价1.39-2.54万/㎡全都有
- 小房间|参观140㎡大婚房,朋友都夸餐边柜有档次,我却更喜欢主卧的飘窗
