loft|头次见24㎡的loft公寓,居然拥有两间卧室!在大城市有个家,佩服
我们知道现在的大城市房价贵,尤其住宅,以八九十平米的刚需房占据主流,再小的一居室也有五六十平,这对于刚毕业没几年的家庭来说,负担确实有些重,基于此很多人把目光对准了二三十平的loft公寓,这样拥有上下两层,一楼装下客餐厨这样的公共区,二楼则是卧室这样的私密区,以此作为过渡刚刚好。
只可惜针对这种小众的房子,可供参考的装修案例实在太少,于是手记君特意找来这套项目面积为24㎡的loft公寓,希望给大家提供一些灵感,可以说本案虽为样板房,但无论软硬装的设计都非常出彩,加之头次见这么小的面积居然拥有两间卧室,就可以让自己在大城市有个家,太佩服了,不信我们一起来看看吧。
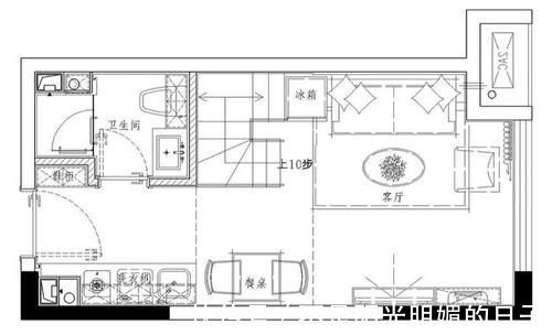
一楼平面布置图
二楼平面布置图
这是这套房的平面图,由于整体结构一目了然,这里就不再赘言了。
现在看实景。一入户,为了提高利用率,走廊直接设为厨房,加上嵌入的洗衣机,功能非常强大。细节上,白色的免拉手吊柜搭配木色的地柜以及水磨石样式的墙砖,效果相当漂亮。当然,吊柜之下预留的开放式收纳区也不错,烹饪时,常用的调味料顺手一拿,超级方便。

与厨房紧挨着的是餐厅,占地面积不大,因而直接摆放原木色的轻巧餐桌椅即可,结合大面积的白色背景墙,整体干净利落,加上色调清浅柔和,看着非常舒服。其它是墙上的软木洞洞板,既可以装点空间,收纳一些小物件也是可以的。
需要补充的是,餐厅上方的空间是挑高着的,加上充满艺术感的黄铜吊灯,无疑给这个家注入了一丝轻奢的气息。而之所以餐厅是挑高的,在于客厅处搭板做了卧室,这样就能拥有左右两间房,从而住下两代三口之家,若是后面不够住,无论是用于出租还是置换都可以。
站在餐厅看客厅,可以发现整体的采光还是不错的。

不过相比较这些,个人更喜欢软装家具的搭配,无论简约舒适的布艺沙发,还是结构轻巧的茶几和座椅等等,结合干净利落不设主灯的平顶以及窗明几净的氛围,都营造了一个令人如沐春风的效果出来,待着非常舒服。

另一个是左侧沙发墙,设计师别出心裁的铺贴了镜子,好处在于可以拉伸视觉纵深感的同时,用来整理仪容仪表也是可以的。其它是右侧电视墙,以墙布打底,加上一字型的电视柜,效果也不错。
这个是通往二楼的楼梯,悬空踏板,黑色框架,加上玻璃护栏,效果十分通透,当然,若是楼梯下的空间能够被充分利用起来那就更好了。同时,我们能够看到冰箱就摆放在沙发的左侧。
推荐阅读
- 助贷|助贷咨询:企业抵押贷款常见风险
- 住房公积金|疫情之下,打破唯价格论 预见天津楼市未来趋势
- 烂尾楼|恒大暴雷了,那些随处可见的烂尾房塔吊到底属于谁?
- 书房|讲真,这是我见过的最完美的边户,没有之一!
- 矮墙|小户型卫生间别再装玻璃淋浴房了,头一次见这种设计,太聪明了
- 小户型|头一次见有人将蹲便器装在淋浴房,实用又省空间,不得不夸聪明
- 隔音差|别再骗年轻人买Loft了!住进网红Loft,是我做过最后悔的决定......
- 榻榻米|头一次见水泥还可以做成榻榻米,见到很想笑,太牛了!
- 柜子|入住一个月的新房,全屋漂亮极了,头一次见主卧这么打柜子
- 租赁|买不起别墅住复式楼也过瘾,买套60㎡跃层LOFT装完比别墅还奢华!
