玄关|小夫妻的优雅两居,U型衣帽间真大气,圆形家居内敛又舒适,超美( 二 )

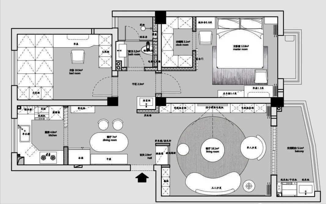
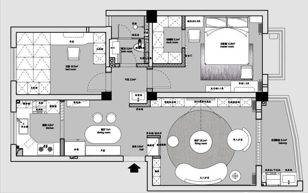
主卧空间相对宽敞,设计得也很有格调,除了摆放一张搭配浅灰色床品的大床外,背景墙也很有设计感,通过深灰色墙漆+原木色实木墙板组合,时尚而有层次感,在装饰挂画的点缀下更有艺术氛围。
床头柜用悬空式工作台兼梳妆台代替,让空间利用率更高。

左侧的玻璃移门内是U型布局的步入式衣帽间,细分的收纳区域设计可以让各类衣物、鞋子和包包等收纳自如,为女主人打造出美丽的后花园。
书房次卧
次卧作为未来的儿童房,暂时按照书房和次卧布置,不但定制了榻榻米床,还做了一体式书柜+书桌,为小夫妻提供一个独立的工作学习空间,家人或朋友来留宿也有地方住了。
卫生间干区
卫生间湿区卫生间洗手台外移后彻底实现干湿分离设计,让早晚洗漱更方便卫生,同时也为湿区释放空间。如厕区与淋浴间二次分离以及壁龛式收纳等设计让卫浴空间更整洁清爽。
平面布置图看完小夫妻的优雅舒适超美的小两居规划设计,不是你喜欢的风格吗?
推荐阅读
- 屋主|56㎡小户型老房改造,小而美的设计!
- 小钱|游点好笑!收手机的新方式,一抓一个准!这老师怕是柯南看多了?
- 地板|160㎡四居室,玄关比我家卧室都大,这才是真正的低调奢华有内涵
- 公示|一处体育中心项目、一处小型口袋公园!市北两项目规划公示,配套升级
- 碧桂园|小城市的房住不炒,遇上返乡置业
- 小户型|发现丈夫赠人房产 妻子怒讨买房款
- 小房间|参观140㎡大婚房,朋友都夸餐边柜有档次,我却更喜欢主卧的飘窗
- 她家148平米,进门就被玄关迷住,不做吊顶跟背景墙,阳台超漂亮
- 楼层|对于买房选楼层,一旦你忽视这5件小事,就只能买到“垃圾楼层”
- 木纹板|装修案例欣赏:小北欧风格的居家设计,简洁的同时又不失温馨感!
