卫生间|2层小洋房,三代人同住,有庭院有露台,是多少人羡慕的生活状态
好像不管房子大小,独栋还是一楼,大家都想拥有个花园式庭院,而下面这位业主就稍微有一点点“疯狂”了,两层楼的小洋房,光庭院和露台就占了将近一半面积,家里不管哪个空间都能拥有超好的视野,出门就跟个小公园似的,住在这儿可别再整天窝在家里了!
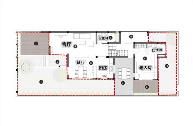
这套房子面积190㎡,上下两层三代人同住,房子的一楼主要是公共区域和老人房,二楼有主卧套房以及儿童房,光卫生间就有4个,虽然空间大,但私密性也是极好的,大家住起来也不会相互打扰!

进门就是小院子:

客厅木质背景墙搭配米色休闲沙发,茶几、落地灯和绿植,没有扰乱视线的杂色堆积,一切看上去简约清爽,旁边的落地窗通向露台,能让室内和室外景观交融,采光和视野都很不错。
由于考虑空间的通透性,所以利用餐厅和客厅之间的隔断作为电视柜。

外面的露台可以是全家人赏花品茶的地方,也能摆上排队桌,一个烧烤炉,邀上几个好友大家一起周末聚在一起休闲娱乐。

半开放式厨房从收纳方面看,虽然橱柜空间不大,但左边有到顶的电器柜,另外头顶还有双层吊柜设计,看似储物空间大到让人羡慕,但顶部的柜子拿东西实在是有点麻烦。
吧台设计可以增加家里的情调,右侧有个开放式酒柜,这儿也是家人之间一边做饭一边里聊天的地方。
吧台的另一边就是餐桌,阳光透过窗户洒进来真的很舒服,原本就是宽敞的餐厅,视觉效果直接超越很多别墅!

【 卫生间|2层小洋房,三代人同住,有庭院有露台,是多少人羡慕的生活状态】二楼主卧不仅有阳台,还有卫生间和衣帽间,拥有独立的私人空间,镂空隔断作为电视背景墙,刚好可以分割休息区和衣帽间,还不会影响通透感。

角落处的开放式小书房。
开放式衣帽间沿着墙壁打排衣柜,尽头处就是卫生间,动线布局都要达到最优。
主卫有一扇大窗户,显得空间格外明亮,洗漱柜马桶玻璃淋浴房,干湿分区更卫生,另外还有个独立的浴缸,工作累了还能泡个热水澡放松一下!
推荐阅读
- 屋主|56㎡小户型老房改造,小而美的设计!
- 小钱|游点好笑!收手机的新方式,一抓一个准!这老师怕是柯南看多了?
- 卫生间|129平现代美式三居室,打造出一个舒适又温馨的美式家
- 公示|一处体育中心项目、一处小型口袋公园!市北两项目规划公示,配套升级
- 碧桂园|小城市的房住不炒,遇上返乡置业
- 小户型|发现丈夫赠人房产 妻子怒讨买房款
- 收纳|去邻居家参观才知道,卫生间不装柜子这样设计,防潮耐脏好清洁
- 小房间|参观140㎡大婚房,朋友都夸餐边柜有档次,我却更喜欢主卧的飘窗
- 卫生间|什么才叫好户型?来看看这5个标准,你家房子符不符合?
- 卫生间|房屋装修6大暗坑,哪个踩了都会导致返工,希望你没踩到。
