装修|这套48㎡小宅,藏着小户型装修的超多智慧,看似简单却超级实用
关注我:让你装修少走弯路,房子越住越温馨
文案编辑:老曾
房子无论大小,态度决定生活品质,房子可以小,生活没必要将就;就算买了小户型,只要将空间好好利用,好好规划一番,紧凑的小户型一样可以生活有品质,一样超有幸福感。
就像本期的这对沪漂小夫妻的家一样,房子虽然不大,但是给人的感觉干净通透有格调,藏着小户型装修的超多智慧,看似简单却超级实用。
户型介绍
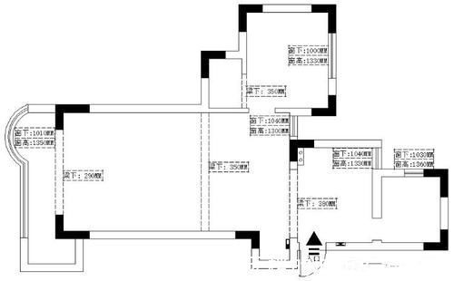
房子套内面积48㎡,原始户型,一室一厅,厨卫都较为紧凑。
而屋主需要居住夫妻两人与未来的孩子,以及一只猫咪;为了让家居环境更干净卫生、还希望有干湿分离的卫生间,同时希望有一间书房。
【 装修|这套48㎡小宅,藏着小户型装修的超多智慧,看似简单却超级实用】
在有限的空间内,如何满足屋主对新房的预期呢?我们一起来看看设计师@徐文泽是如何设计的;
第一步,根据屋主需求,在室内做了如下空间布局调整;
1,卫生间整合过道设干湿分离;
2,客厅一分为二,一室变两室;
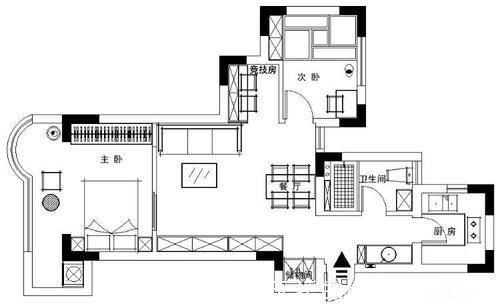
3,主卧变次卧,微调卧室门洞,利用原储物间整合卧室部分空间设计出小书房与次卧衣柜;
榨干每一寸空间,让玄关美观又实用
厨房特别紧凑,如何合理利用空间摆放冰箱既不影响美观又实用是屋主较为伤脑筋的问题;经过装修改造后,利用原有凹型杂物间摆放双门冰箱。
过道除了有洗漱台盆外,还利用一侧设计出上下结构的鞋柜;紧邻进户门,中间做了镂空、吊柜下还做了挑高设计,鞋柜不大却满足了室外鞋、家居鞋、以及钥匙手机等的收纳问题,关键是还让洗漱台盆起到隐形的作用,美观又有整体感。
悬挂的浴柜看似下方空间闲置浪费,实际上这个小小的细节也充满了设计智慧;底下悬空更便于打扫卫生,底下悬空还能放置脏衣篮,也能起到扩宽过道的视觉效果。
镜柜屋主特意挑选了有露有藏的款式,开放式的柜子用来放牙刷牙膏漱口杯等使用起来更顺手。
延伸阅读:关于牙膏牙刷的收纳问题,如果镜柜较小无法设计有露有藏的收纳模式时,个人认为采用成品免钉置物架代替也是不错的;安装方便,使用同样方便顺手,挂墙收纳不占空间;比放在台面上干净卫生视觉效果也美观。
厨房
集成灶不仅是去油烟的神器,其实也释放出上端空间,设计成吊柜扩宽储物空间。
橱柜下留洞设计也是一大亮点,一些不宜收纳进冰箱的瓜果蔬菜搭配小推车摆放在这里再适合不过了,使用还方便顺手。
餐客厅
玄关与客餐厅门洞圆弧形设计,多了几分柔美感、少了几分生硬朗感,给人一种极简精致的视觉享受。
电视背景墙做了整排收纳柜,电视机嵌入柜体结合按压隐形门,下方预留了电视机宽度的电视柜;这种设计手法增加了室内的储物空间,使用也方便,在视觉上又保留了原有客厅见面的宽度,柜体隐形视觉整洁,倍感舒适。
推荐阅读
- 屋主|56㎡小户型老房改造,小而美的设计!
- 装修|乔迁新房3月以泪洗面!当初的不理智,连犯15个极品装修坑!作孽
- 现代风|168㎡现代风,带着浓郁的归属感与愉悦感
- 装修|淋浴房还可以坐着洗澡,一开始很不理解,装修后才发现太实用了!
- 施工者|不管家多大,装修时做好这12处细节,美观与舒适并存,幸福感提升
- 深色|155㎡简约风,承载着三代人的生活,不花哨让家务少一半
- 混淆感|146㎡北欧经典白色三居室,诠释令人心醉的优雅
- 饱和度|173㎡轻奢新中式,古典和现代的碰撞,唯美浪漫!
- 心塞|5个月装修一套房,硬装让我喜出望外,结果家具一上全废了!心塞
- 背景墙|97㎡现代风,以时尚打造空间,以新颖突出特点
