夫妻|成都夫妻家中的高级场面:凭一个楼梯就圈粉无数,职住一体太爽了( 二 )
客厅
舍弃电视墙后的客厅,沙发不再对着某某背景,而是改成这种以及茶几为中心,正对两把藤编单椅的布局,好处在于有利于创建一个沟通与交流无碍的氛围出来。
原电视墙改为现在的装饰性背景,比如白色石膏雕花的壁炉造型,加上三处拱形元素和6米的挑高,看着真的极尽优雅、浪漫,与大气。

看到这,很多人疑惑影音方面的需求怎么办?答案是,女主在顶部预留了收纳投影仪幕布的暗槽,加上吧台右侧安装在三角支架上的电视机,无论是用来观影、收看电视节目,还是用来培训开会啥的,都能解决。
不过相比较而言,个人更喜欢楼梯间的设计,白色的旋转结构所带来的优美弧线,结合垂落而下的吊灯,看着太漂亮了。
不仅如此,为提高利用率,还定制了书柜作为书墙,如此便有种,身处图书馆般的感觉,书香雅韵弥漫其间,实在是太有品味。

总之,以一楼客餐厨为主的公共区,不仅满足了居家休闲、聚会聚餐,还有工作培训和阅读办公的需求,难怪凭一个客厅就圈粉无数,不得不说这种职住一体的房子,住起来实在是太爽、太香了!
客卧
客卧在一楼的北面,氛围还不错,选用复古绿的丝绒靠背床,配上柔美的床品,并在优渥的采光和柔美窗帘的衬托下,就有了一种干净澄明的基调。
当然床头右侧定制的白色衣柜也不错,中间预留了一个豁口,充当床头柜,放些诸如手机类的临时物品正好合适。
客卫
一楼客卫选用深色的防水漆和下面的墙砖做分区设计,这样看着更加高级。
当然,小便池和壁挂式马桶也不错,尤其后者,不留清洁死角,这样打理卫生也方便一些。再就是最右侧的钻石型淋浴房,除了起到干湿分离的作用,对提高利用率也很有帮助。
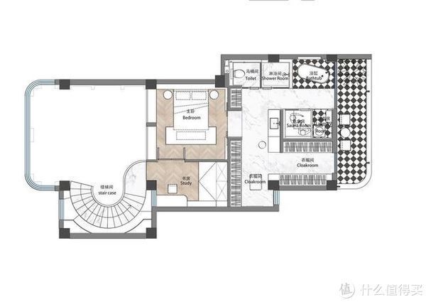
二楼平面图

二楼是女主的私密空间,考虑到住职一体的需求,就在主卧的基础上,增设了一间书房,另外还预留一部分空间作为衣帽间和主卫。
书房

书房沿着楼梯上来就到了,除了靠墙设置了底部悬空的隔板式书桌,来满足基本的办公需求,还在左侧设置了翻板式的折叠床,以便于以后有了宝宝,也能得到及时有效地照料。而在这之前,这里还可以摆放瑜伽垫做一些无器械的运动。
主卧

推荐阅读
- 成都|双限当道的2022年,成都还有这些豪宅新面孔
- |73㎡复古风两居室,年轻夫妻的高品质生活
- 成都|“房产税”快来了?专家提出“免征标准”,超出面积要交纳1.2万
- |2022年,成都买房5点建议值得收藏
- 购房置业|夫妻俩大胆改造老房,坚持把3房改为1房,过于舒适了
- 户型|北漂夫妻买下24㎡婚房,柱子4米宽,窗台就占户型面积一半
- 贝壳|【贝壳成都资讯】一二线城市率先修复,三四线城市下行压力仍大
- 书房|成都80平三室之家,一体式餐厨设计,仿佛把日剧场景搬回家
- 名字|房产证上最好不要写夫妻两个人的名字,以前不懂,现在知道也不晚
- 土地|2022成都首场土拍结束 三圈层四宗土地底价成交
