北欧|95㎡北欧3居室空间充足且功能独立,让生活回归最自然的状态
?这套三居室拥有95㎡的面积,空间充足且功能独立。在选择装修风格的时候,业主很是纠结,通过网络看了众多的案例图片。再三思索下,觉得还是简约一点更耐看。最终,敲定了装修风格为清新简约的北欧风。
??
??
色彩上选择的是温柔的浅咖与棕色搭配,利用同色系减少色阶差,整个客厅看上去简约自然,大气雅致。
??
??
入户玄关处即可感受到整个房屋的艺术气息及简约定位。
??
??
从玄关到客厅,都根据空间的色彩选择相应的艺术挂画,渲染着整个家居空间内的艺术氛围。
??
??
微黄的暖光与橙色挂画搭配,照射出温柔的光线,让用餐区域看上去浪漫和谐。
??
??
清新的炊具点缀整个空间色彩,既丰富了色彩层次,又增添趣味性。
??
??
厨房墙面与地面同贴浅灰色哑光瓷砖,搭配白色橱柜,明亮整洁又不觉沉闷。
??
??
卧室的整个软装搭配主打柔和舒适,根据业主喜欢的北欧风格诉求,设计师将此空间定位于白色调,实木家具的加持,更添自然与温润质感。
??
??
精致的小物件充斥在卧室内,满足日常生活需求的同时,更提升了整体美观度。
??
??
工作再忙也不能委屈了自己,业主平日里睡前都喜欢泡澡,褪去一身的疲惫,享受这短暂的休息。
??
??
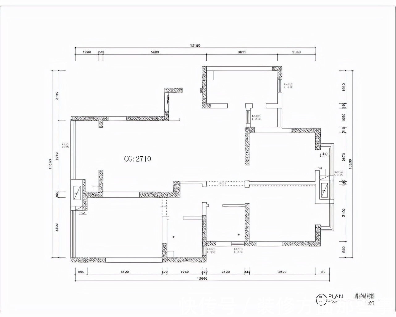
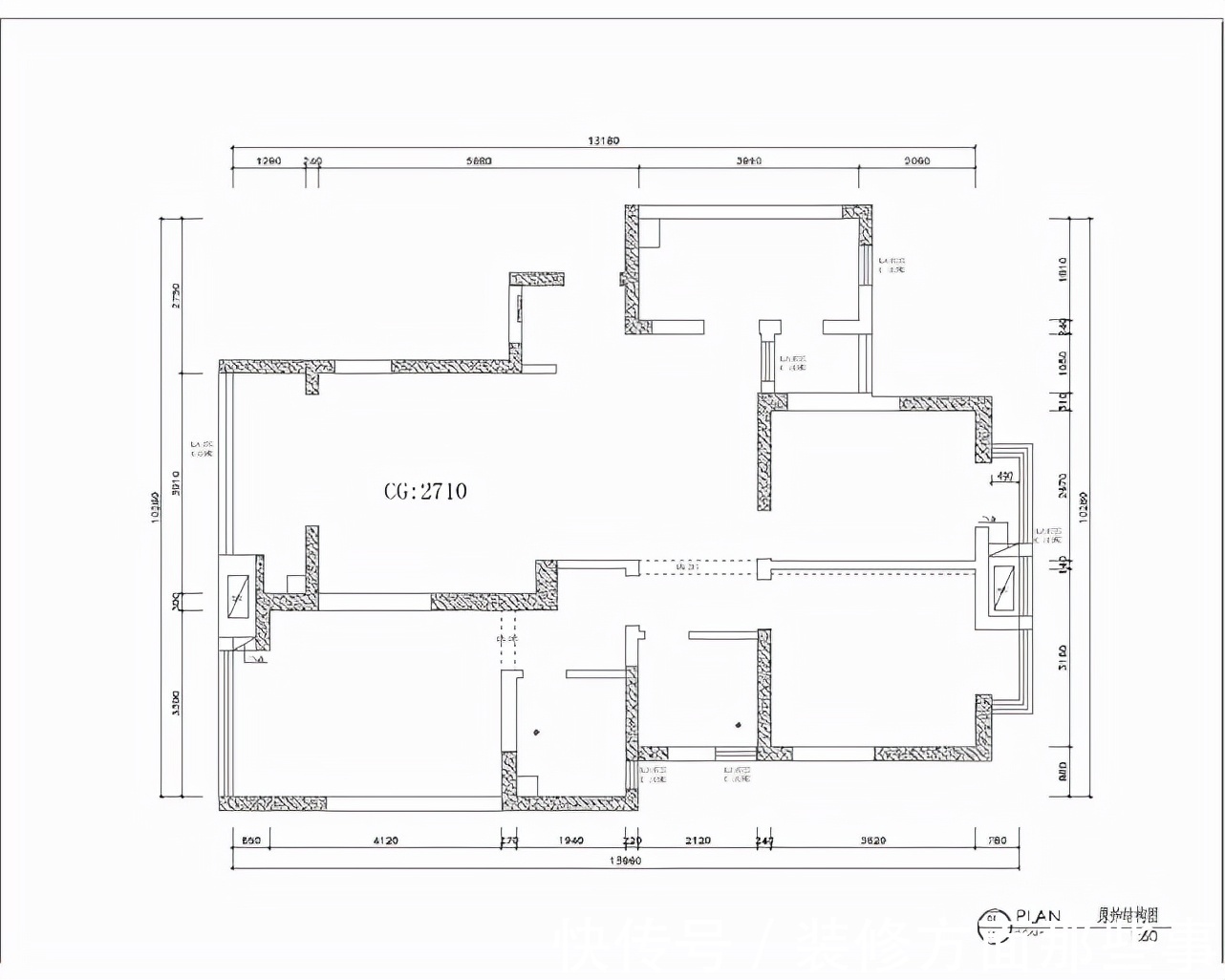
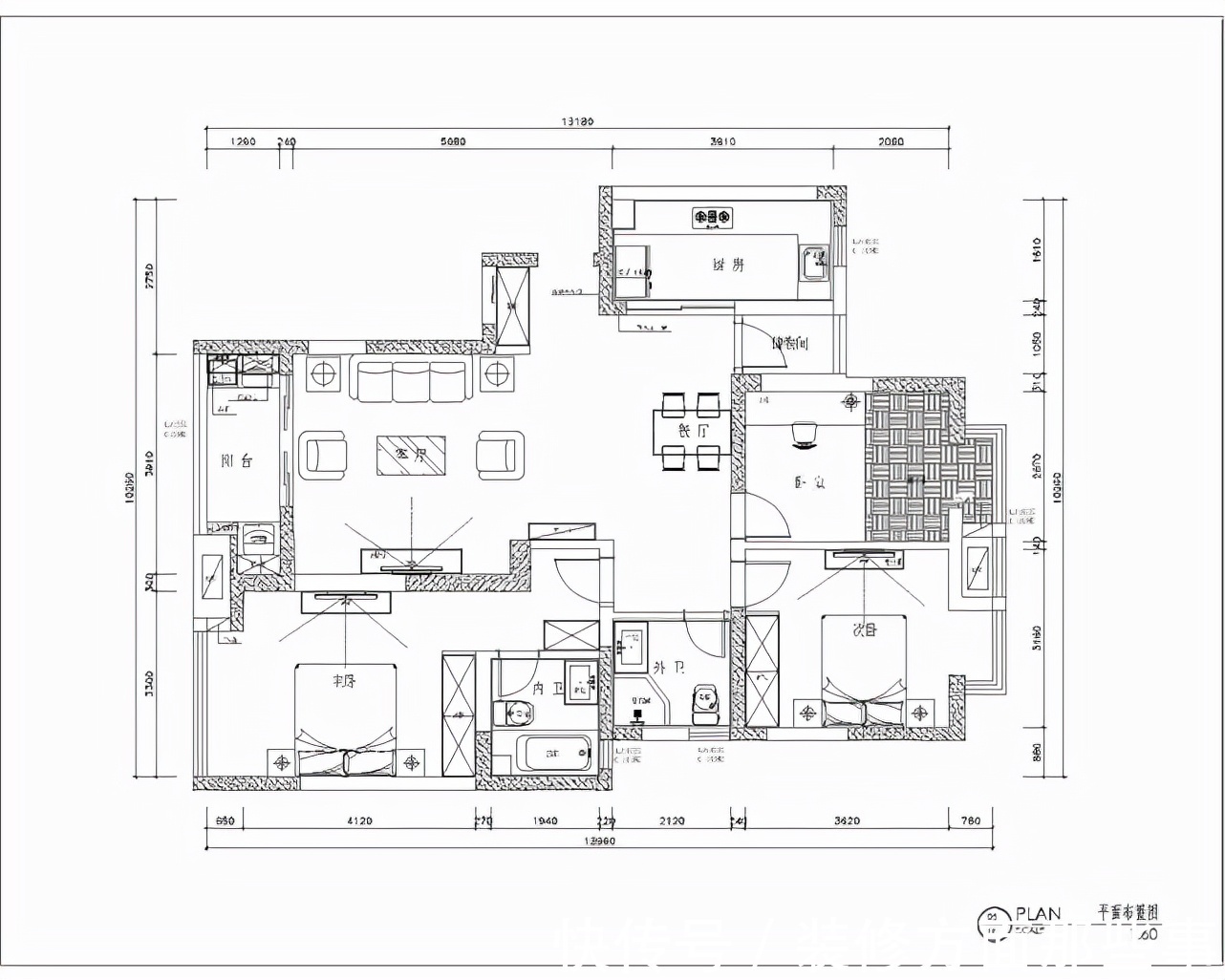
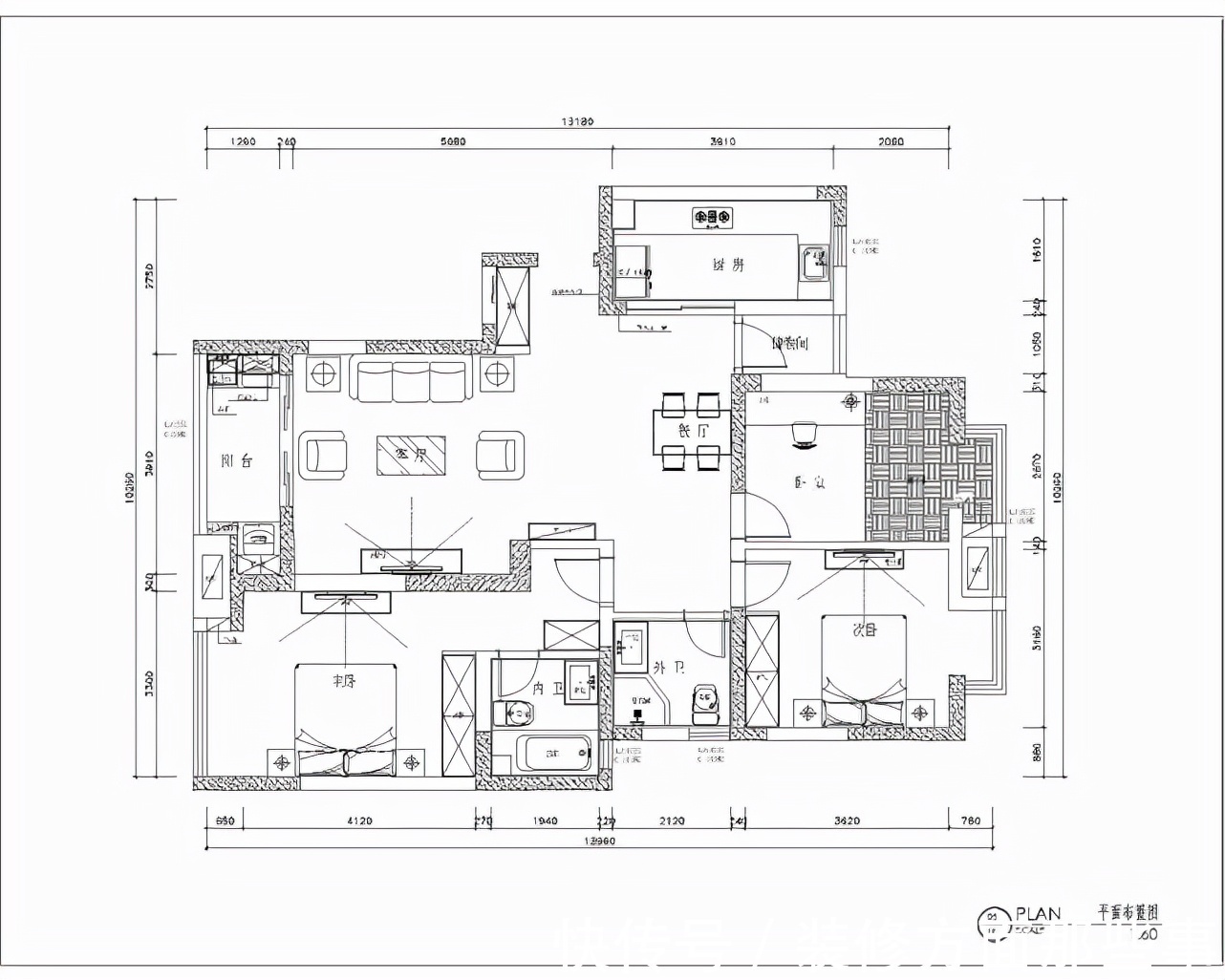
平面图
??
??
1、户型比较规整,每个空间都是靠窗朝阳。 2、开放式的客餐厅让空间看上去既相通又合理。 3、门口的玄关既增添艺术性,又增加了收纳空间。
【 北欧|95㎡北欧3居室空间充足且功能独立,让生活回归最自然的状态】
推荐阅读
- 屋主|56㎡小户型老房改造,小而美的设计!
- 现代风|168㎡现代风,带着浓郁的归属感与愉悦感
- 深色|155㎡简约风,承载着三代人的生活,不花哨让家务少一半
- 混淆感|146㎡北欧经典白色三居室,诠释令人心醉的优雅
- 饱和度|173㎡轻奢新中式,古典和现代的碰撞,唯美浪漫!
- 背景墙|97㎡现代风,以时尚打造空间,以新颖突出特点
- 厨房|一居室也能如此精彩,展现单身人士的高端生活,享受生活的乐趣
- 地板|160㎡四居室,玄关比我家卧室都大,这才是真正的低调奢华有内涵
- 卫生间|129平现代美式三居室,打造出一个舒适又温馨的美式家
- 三居室|118平现代风三居室,一个简单而纯粹还原生活色彩的家
