收纳|136㎡ 简约风三室入户鞋柜是小型衣帽间,真是将收纳进行到底
本案是一个现代简约风格的新房装修案例,三室两厅的户型足够一家三口的日常生活所需。无论家里的空间大小如何,收纳空间都是装修时考虑的重点。设计师充分利用每一寸空间,入户鞋柜后侧的空间被改成了小型衣帽间。功能需求满足的同时,也展现了整个家居的个性与格调。
??
??
这套案例设计师运用咖色系为基调,搭配黑色、灰色,颜色少却又有着极为丰富的层次感。通过颜色的深浅与饱和度不同,不动声色地勾勒出空间的视觉重点,又营造出高雅而深邃的家居环境。
??
??
客餐厅呈同一直线,餐厅是温润的浅灰色基调,搭配黑色餐桌椅,墙面镜有效地放大视觉效果,让餐厅看上去干净明快,通透敞亮。
??
??
卧室虽然装饰不多,但是设计师通过线条来填充空间,即使没有奢华的物品加持,看上去也是既有设计感,又丰富。
??
??
以极简手法,利用线条之美,融合轻奢材质,塑造出一个宁静舒适的居住空间。金属元素与皮革材质的局部使用,使得时尚感跃然而上。
??
??
暖色调的卫生间简单清爽,直线几何丰富了画面感,通过镜面增加空间宽敞感与通透感。
??
??
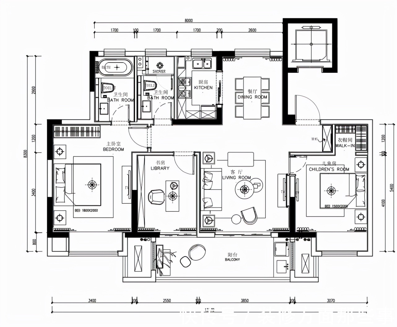
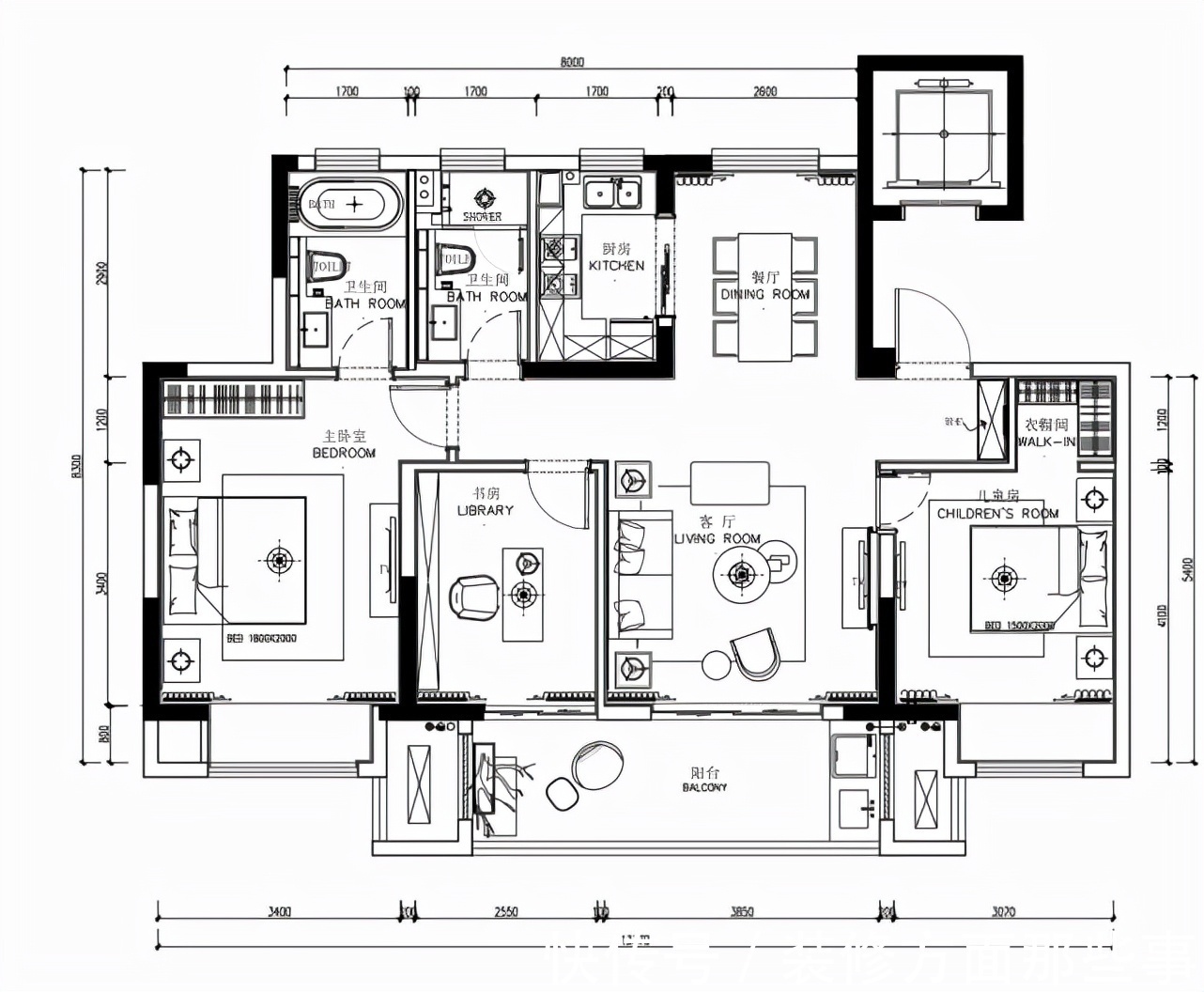
原始户型图
??
??
平面布局效果图
【 收纳|136㎡ 简约风三室入户鞋柜是小型衣帽间,真是将收纳进行到底】
推荐阅读
- 屋主|56㎡小户型老房改造,小而美的设计!
- 现代风|168㎡现代风,带着浓郁的归属感与愉悦感
- 深色|155㎡简约风,承载着三代人的生活,不花哨让家务少一半
- 混淆感|146㎡北欧经典白色三居室,诠释令人心醉的优雅
- 饱和度|173㎡轻奢新中式,古典和现代的碰撞,唯美浪漫!
- 背景墙|97㎡现代风,以时尚打造空间,以新颖突出特点
- 地板|160㎡四居室,玄关比我家卧室都大,这才是真正的低调奢华有内涵
- 棚户区改造|开盘预告|合肥又有6盘要加推,均价1.39-2.54万/㎡全都有
- 收纳|去邻居家参观才知道,卫生间不装柜子这样设计,防潮耐脏好清洁
- 小房间|参观140㎡大婚房,朋友都夸餐边柜有档次,我却更喜欢主卧的飘窗
