软装|75平简约工业风,文化砖的毛坯感,结合软装也显精致浪漫!
75平简约工业风,文化砖的毛坯感,结合软装也显精致浪漫!
【 软装|75平简约工业风,文化砖的毛坯感,结合软装也显精致浪漫!】在这套75㎡的老房子的改造装修中,整体以简约大方的软装布置,在硬装方面保持了大量的毛坯与工业风元素,让空间显得小资优雅而温情舒适,带来了一种别样温馨而浪漫与惬意感。
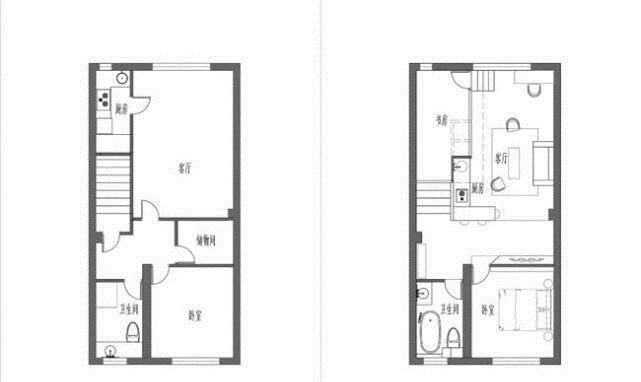
平面布置图
客厅
▲房子的面积并不大,客厅空间的布置保持实用的功能下,整体摆设相对紧凑,软装为主的布置装饰,也显得精致舒适而高级。

▲整个大厅的天花分为两部分,一部分是水泥底的毛坯质感,另一部分是防腐木的吊顶,结合沙发墙上的文化砖背景墙,整个空间充满小资优雅的工业风气质。
▲电视墙是以矮墙设计,小尺寸的电视机,对于小夫妻而言已经够用,电视墙上部分是玻璃隔墙,在分割空间的同时,也让空间的采光得以共享。
▲马赛克的地面铺设,布置在这个工业小资范的空间里,也显得更加高级情趣。
厨房
▲厨房空间也是相对紧凑,开放式的小空间,小巧紧凑的操作台,整个空间显得简雅小资而实用。
▲嵌入式的电磁炉作为灶具,小规格的水槽设计,整体木色的操作台台面,台面上布置小盆栽,让空间显得小资自然。
▲操作台连着的吧台,侧边也是装上收纳格,刚好可以摆放厨具餐具,实用又方便。
餐厅
▲餐厅以吧台充当餐桌,吧台连着厨房的操作台,开放式的空间,虽小却也显得小资情趣,吧台上方两盏吊灯布置,也让空间显得更加优雅精致。
卧室
▲电视墙后方,是卧室空间,玻璃隔墙的设计,让空间采光更加明亮舒适。黑框玻璃与黑色的床架呼应,整体风格保持统一的设计。
▲床头墙是白色文化砖设计,床头旁边的简易托盘床头柜设计,摆上台灯,也显得更加温馨自然。
▲温馨舒适台灯,在小资优雅的空间下,显得温情舒适而大气。
休闲书房
▲错位式的设计,下方是收纳柜,上方小舱式休闲书房。上方以玻璃隔出来,做了一个创意的舱式休闲书房,整个空间是在原有空间基础架空出来的,显得有趣舒适。下方在收纳柜的基础,还嵌入了冰箱与洗衣机,让空间利用更加到位。
推荐阅读
- 深色|155㎡简约风,承载着三代人的生活,不花哨让家务少一半
- 床头柜|95后姑娘的“穷装”卧室火了,环保又精致,软装的力量真强大
- 卫生间|129平现代美式三居室,打造出一个舒适又温馨的美式家
- 三居室|118平现代风三居室,一个简单而纯粹还原生活色彩的家
- 郑州|买房月供曝光!郑州最新平均工资8694元,撑得起房贷么?
- 石家庄|144平的面积,无人值守棋牌室,这是如何做到的?
- 简单感|现实的平衡取舍,才是生活之道!143平现代风格设计欣赏!
- 她家148平米,进门就被玄关迷住,不做吊顶跟背景墙,阳台超漂亮
- 修建|精选10套三层户型图纸,占地面积均不足百平,尤其适合新农村修建
- 南通|拍卖成功!江苏南通一处197平住宅192万成交!
