三口之家|108㎡简约平层,温馨的日式小清新,生活工作两不耽误
业主需求
本案的业主是一对年轻夫妻,他们的工作非常特别——“哔哩哔哩”签约漫画家。业主面对设计师,直接提出想要现代感的日式居住空间。由于业主的工作都是在家完成,所以有在客厅空间增加工作室的需求。此外,家里还有一个可爱的6岁小男孩,他们想要为他打造一个独立的空间,融合玩玩具,读书休息等功能。

【 三口之家|108㎡简约平层,温馨的日式小清新,生活工作两不耽误】设计灵感
设计师在本案中也是在不断地学习,为深入了解业主这个职业的方方面面,设计师查阅了许多资料。期间,业主推荐了一部热血温馨的日剧《重版出来》,这部剧为设计师带来了创作灵感,也为后来的设计基调打下基础。

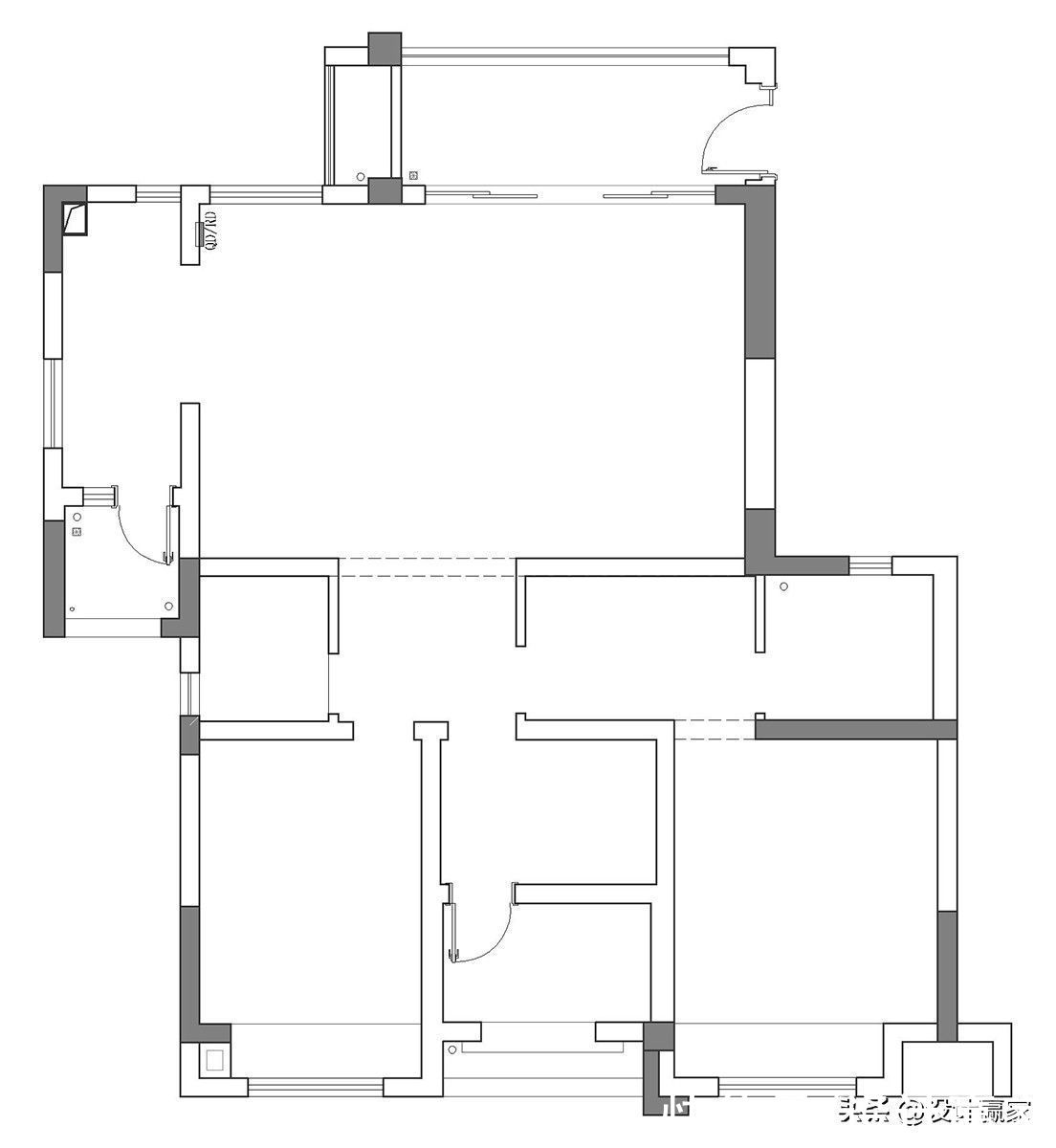
结构改造
设计师希望达到空间的流动感,于是拆掉了公共区域大部分的非承重墙体,对空间进行了重新规划布局。本案的原始户型是一个三房的结构,但为了更加贴近业主的需求,设计师特意将三房改为了大两房的布局。

案例详解
入 户
入户即是阳台,一整面落地窗,通透明亮,使得一进屋便有豁然开朗之感,同时,这也是家里的萌宠长待的区域。
客 厅
从玄关进来便是整个屋子的公共区域,包括客厅空间和餐厨空间,设计师把流动感付诸于空间实施,将客厅与餐厨区域并存,让各个空间的关系更为互融互通。
客厅是一家人的游乐园,这里只放置了活动的电视支架,在闲暇之余,可以感受大屏电视带来的视觉体验,同时潮玩游戏机也为空间增加了趣味感。

餐 厅
木质长桌,长条凳,再搭配上高腿单人椅,一眼就能看出是三口之家的标配。简约的半球形吊灯,将一家人的用餐场景烘托的温馨十足。
厨 房
厨房紧挨着餐厅,开放式的设计让两个空间的沟通毫无障碍。一扇小窗,提升了厨房的采光,也规避了满面是墙的单调感。木质的吊柜与餐桌材质遥相呼应,形成了不同空间的统一性。
主 卧
主卧色调清新淡雅,温馨简单,空间设计简洁,没有采用过多的装饰,整体强调空间的功能性。主卧自带的一个衣帽间,方便业主夫妻日常的穿衣打扮。

儿童房
儿童房的色调是小朋友最喜欢的蓝色,配上小小太空员的灯具,以及卡通造型的鳄鱼枕,增加了空间的趣味性。

家里的宠物狗时常喜欢到小朋友的房间,一起嬉戏打闹,仿佛是一对相识已久的伙伴一般,伴随着孩子一步步成长。
推荐阅读
- 书房|成都80平三室之家,一体式餐厨设计,仿佛把日剧场景搬回家
- 承重墙|109㎡四口之家,全屋配色太清爽,三室两厅不压抑!
- 日式|108平现代风三居,打造温暖有爱五口之家
- 梦湖|邯郸梦湖孔雀城现代北欧打造优雅文艺之家。
- 卧室床|大学教授120㎡坚持去客厅化之家,全屋书香雅韵,美不胜收,晒晒
- 三口之家|打通阳台和客厅,100平的房子竟秒杀了200平的大宅!
- 居民|“网”起居民大小事!宝山这个大居为群众打造温馨之家
- 江景房|人生中第一套房子,虽然只有108㎡,选择了中式风,效果让我很满意
- 设计|40㎡小房也能住一家三口,玄关设计被争相模仿,丝毫不输大户型!
- 四口之家|再次确认房子的公摊面积和诈骗没区别
