六角砖|65㎡老破小爆改三室+小书房,老破小完美逆袭
分享世界各地好看的家,给自己家里装修和装饰提供最直接的视觉参考,给不一样的生活方式提供灵感,给眼睛提供舒适感,最最最重要的,我们也能不断提升审美和品味。
接下来让我们进入存图模式吧~~~
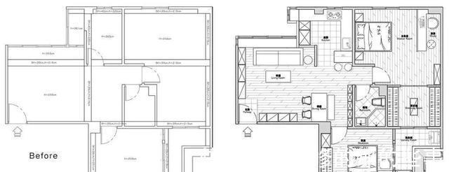
今天分享的案例来自台湾,室内面积65㎡,3室2厅1厨1卫的室内格局,居住着一对年轻夫妻。
平面户型图
开门即见厅,属于没有玄关的户型。
鉴于客厅面积小,入户处用素雅与花纹六角砖做为空间的分隔。
靠墙位置做了一排收纳柜作为鞋柜,再放上穿衣镜,整个出门动线十分流畅。
换鞋凳底部留空设计,既可以放平常穿的鞋子,也给扫地机器人留了位置。
为了争取极大的采光,将原有平窗改为凸窗取代,拓展日光照入面积,藉以消解大梁沉重的感觉,进而敞开透亮的视野。
客餐厅设在同一个空间,是小户型扩大使用面积常用的方法。
【 六角砖|65㎡老破小爆改三室+小书房,老破小完美逆袭】基于屋主有存放书籍的要求,一面墙面做成了书柜。书柜柜门开放式+封闭式设置,拿捏恰到好处。


厨房地面用灰白大理石六角砖铺设,满室清新。
将原来的一字形橱柜改为L型橱柜,扩大厨房使用面积。

考虑到主卧的纵深偏长,精确尺寸后,划分出一个小书房,半墙与玻璃设计,即可采光也保证一定的私密性。
开放式书房内墙延续屋内茶灰色墙面,内置开放式书架可以随手放书籍。
衣帽间用黑色玻璃框门做空间分割,视野更加通透。
中间的木色小桌子供女主平时做熨烫衣服用,桌子下层是抽屉可以用来储物。两边延续简白调性的多功能衣柜,衣帽间紧挨着的便是阳台。
屋主刚结婚不久,所以次卧延续浅棕色调作为重点主墙,搭衬浅蓝格子软件衬托静谧气氛。
将原有的浴缸改为淋浴区,淋浴房立体面黑色金属框架,配上顶部的墙灯,有种低调的奢华之感,壁挂浴室柜悬空式的设计更方便日常清洁与打扫。
干湿分离,小卫生间用起来也很舒服。

推荐阅读
- 屋主|56㎡小户型老房改造,小而美的设计!
- 现代风|168㎡现代风,带着浓郁的归属感与愉悦感
- 深色|155㎡简约风,承载着三代人的生活,不花哨让家务少一半
- 混淆感|146㎡北欧经典白色三居室,诠释令人心醉的优雅
- 大悦城|家里这两个地方别漏了贴瓷砖,许多人为了省钱,入住就后悔了
- 饱和度|173㎡轻奢新中式,古典和现代的碰撞,唯美浪漫!
- 背景墙|97㎡现代风,以时尚打造空间,以新颖突出特点
- 地板|160㎡四居室,玄关比我家卧室都大,这才是真正的低调奢华有内涵
- 棚户区改造|开盘预告|合肥又有6盘要加推,均价1.39-2.54万/㎡全都有
- 小房间|参观140㎡大婚房,朋友都夸餐边柜有档次,我却更喜欢主卧的飘窗
