装修|144㎡简约新房,全屋配色让人极度舒适!
装修前一定要做足功课,明确自己的需求与设计师有效的沟通,这样才能让装修效果更加满意。今天要分享的是一套建面144㎡的装修案例,和大多数人一样,屋主也是第一次装修,前期的准备有效的沟通,新房完工效果基本装成自己想要的样子。
全屋配色让人极度舒适,以木、白、灰为主的低饱和度色系营造出宁静淡雅的居家氛围,进门就让人感觉到轻盈放松,我决定再买房一定照着装。下面就一起来看看吧!
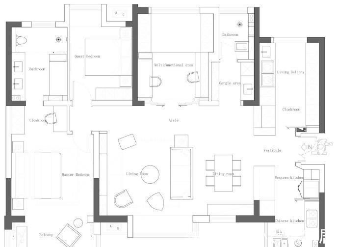
原始户型图,建筑面积144㎡,大横厅布局。
装修布置图,结合屋主生活习惯和需求,把原有阳台打通纳入室内,扩大使用面积。同时拆除客厅与储物间隔墙,打造成多功能房。
推开入户门,就能感受到家的温馨舒适。灰色地砖围塑出玄关区,宠物造型的换鞋凳,既满足了换鞋的舒适,又可以是空间装饰,一举两得。通高鞋柜,底部采用悬空设计并嵌入灯带,提高日常使用舒适,同时保持玄关区的整洁。
与鞋柜紧邻的是一道长虹玻璃推拉门,透光不透视,隔断玄关与衣帽间。

推拉门打开步入衣帽间,原储物室与阳台打通后,空间宽敞通透。考虑到居家动线和便利,将衣帽间和洗衣房结合在一起,左右两侧均设计通高储物柜,提高收纳不浪费空间。可旋转穿衣镜不影响储物柜开关。洗衣机、烘干机、壁挂式洗衣机和脏衣篓,整洁有序的布置不影响美观。
大横厅格局,没有隔断的影响空间宽敞明亮,要是在有个独立阳台简直完美。看似随意的家具布置,透露着轻松闲适的慢生活节奏。电视墙直接尺寸定制,提前做好电路布置,正面没有多余的线露出来,整体美观实用。
【 装修|144㎡简约新房,全屋配色让人极度舒适!】舍弃了厚重的茶几,利用小小的桌几替代,占用空间少灵活又实用。地面铺设地毯,减少噪音的同时又方便享受席地而坐的舒适。飘窗打造成喵星人的活动空间,猫爬架布置在边角,不影响采光。
餐厅与仅靠西厨,一套简易的木质桌椅,占用面积少空间通透。靠墙定制餐边柜,长1.6m收纳空间基本够用。
改造后实现了中西厨格局,冰箱外移到西厨空间,让中厨空间更宽敞。吧台兼西厨尺寸高度设计的1m,搭配上木质星星灯,给居家增添一丝情调。

次卫设计考虑很充分,将洗手台外移不仅扩大卫浴空间,还提高日常使用便利。洗手台和储物柜采用悬挂式设计,底部则是喵星人的内务府和摆放扫地机器人。卫浴白砖突显明亮,几何元素的介入,让空间更活泼。
推荐阅读
- 屋主|56㎡小户型老房改造,小而美的设计!
- 装修|乔迁新房3月以泪洗面!当初的不理智,连犯15个极品装修坑!作孽
- 现代风|168㎡现代风,带着浓郁的归属感与愉悦感
- 装修|淋浴房还可以坐着洗澡,一开始很不理解,装修后才发现太实用了!
- 施工者|不管家多大,装修时做好这12处细节,美观与舒适并存,幸福感提升
- 深色|155㎡简约风,承载着三代人的生活,不花哨让家务少一半
- 混淆感|146㎡北欧经典白色三居室,诠释令人心醉的优雅
- 饱和度|173㎡轻奢新中式,古典和现代的碰撞,唯美浪漫!
- 心塞|5个月装修一套房,硬装让我喜出望外,结果家具一上全废了!心塞
- 背景墙|97㎡现代风,以时尚打造空间,以新颖突出特点
