榻榻米|仅有72㎡的家,却被她装修得舒适幸福,入户小清新,越住越舒服
如今的年轻群体之中,小户型的家,似乎成为了“宠儿”。相比于大户型的“压力山大”,小户型的家,小巧宜居,又让居住在大城市里的年轻人,不用承受这个年纪不该有的压力。
南京的@茶茶小姐姐,在这座城市打拼了6年,才买上了一套72㎡的公寓。小小的家,搭配了北欧混搭风,以简约为美,结合了灰蓝之调,如此小的家,却被她装修得舒适又幸福,真的越住越舒服,不信大家来看一看。
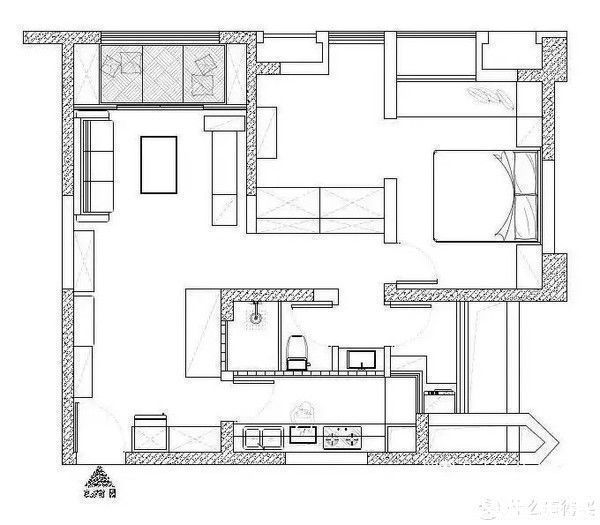
■平面设计图
通过平面图,我们可以发现,这是一个小巧的一居室之家,并且布置了客厅、餐厅、厨房、茶室、卧室等功能区,整体空间显得井然有序。从入户开始,每一个空间都通透开放。
■玄关在玄关的设计之中,设计师就点到了“灰蓝之调”的主题,原木风的墙体,搭配了一组灰蓝色的玄关柜,再加上同款的换鞋凳,空间层次感十足。
细心的设计师,还在墙上放置了原木挂钩,能够挂上钥匙、大衣和包包,整体玄关空间显得简约又自然,给人以舒适的氛围。
■客厅客厅在@茶茶小姐姐的要求之下,取消了电视机和电视背景墙设计,转而以一组布艺沙发+休闲长木凳代替,营造了一个休闲风强烈的待客区域。
而阳台空间,则被打造成了一个仿日式的榻榻米空间,既增加了空间收纳,有能坐在这里晒晒太阳,看书、写字、喝咖啡,如此轻松舒适的休闲氛围,叫人喜欢不已。
【 榻榻米|仅有72㎡的家,却被她装修得舒适幸福,入户小清新,越住越舒服】
沙发背景上方,还加入了三层灰蓝色的隔板设计,能够放置一些日常收藏的书籍和摆件,最后再搭配一盏如萤火虫一般的吊灯,整个客厅显得惬意感满满。
原本的电视墙,被一组木质长凳取代,再放置一组琴叶榕,客厅空间之中,处处都洋溢着清新自然的格调。少了一丝传统客厅格局,却多了一丝属于年轻人的文艺范。
■餐厅而餐厅则靠近玄关位置,在色调上沿用了整体的“灰蓝”之色,并且靠近玄关的位置,还增加了一组原木风的斗柜,与木制背景墙,形成了色调上的层次感。
而另一侧的靠墙位置,则布置了一个灰蓝色的餐边柜,既嵌入了一组冰箱,又能作为空间收纳区域。
因为这是一个@茶茶小姐姐与先生一起居住的家,因此餐厅的设计,以一组双人位的吧台式餐桌为主,墙面上还铺设了一层透明玻璃砖,整体氛围情调感满满。
爱好生活的@茶茶小姐姐,在餐桌上摆放了自己精挑细选的餐具,还有两盏白色吊灯进行衬托,搭配灰蓝色的色调,整个餐厅既有格调,又有氛围。
推荐阅读
- 屋主|56㎡小户型老房改造,小而美的设计!
- 现代风|168㎡现代风,带着浓郁的归属感与愉悦感
- 深色|155㎡简约风,承载着三代人的生活,不花哨让家务少一半
- 混淆感|146㎡北欧经典白色三居室,诠释令人心醉的优雅
- 饱和度|173㎡轻奢新中式,古典和现代的碰撞,唯美浪漫!
- 背景墙|97㎡现代风,以时尚打造空间,以新颖突出特点
- 地板|160㎡四居室,玄关比我家卧室都大,这才是真正的低调奢华有内涵
- 棚户区改造|开盘预告|合肥又有6盘要加推,均价1.39-2.54万/㎡全都有
- 小房间|参观140㎡大婚房,朋友都夸餐边柜有档次,我却更喜欢主卧的飘窗
- 榻榻米|当初装修太愚蠢接连惨中12个装修坑,老婆天天给我甩脸子气人
