家居|婆婆把83平米的房装修成这种简约风格,一进门就看呆了( 二 )
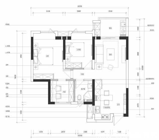
以下就是本套红星天悦小区83平米二居室房子的户型图。
二居室
83平米的房子能装出这样的二居室无疑是非常成功的,位于红星天悦的这位业主也透露出本套案例装修共花了5万,这个价格相对来说已经很便宜了。正在装修或者已经开始装修的业主可以借鉴一下。
推荐阅读
- 置物区|全屋定制柜子时,记得把这3个柜子做到位,钱不白花用着也舒服!
- 抽油烟机|婆婆抠出新境界,5万装修婚房还带家电,如此寒酸真让人不想嫁了
- 马桶|把洗手台埋到墙里,卫生间一下变大了很多,美观又实用,好处多多
- 插头|老公花了100块钱把家里插座装成这样的,再也不用拔插头了,真是太机智了
- 购房置业|夫妻俩大胆改造老房,坚持把3房改为1房,过于舒适了
- |工地烂尾了,开发商为什么不把塔吊撤走?还要继续给租赁公司租金吗?
- 玄关柜|房子再小也要把这7个地方装上柜子!比多买一间房都值!
- 欧派上榜《2021胡润中国500强》|定制快讯| 欧派家居
- 美克家居|视线|2021年家具行业明星代言事件盘点:不是营销“万金油”
- 阳光房|越来越多农村人把露天院子封闭成阳光房,农村又一景,美观又实用
