简约风|109平现代简约风采用矮柜使客厅与餐厅隔开,空间大很多空气流畅
这个是现代简约风,整体看上去很舒服,采用矮柜使客厅与餐厅隔开,整个房子看上去很大,空气流畅
想要家里感觉明亮,客厅就要足够的宽敞,所以客厅的装饰不要太多,家具不要太大要留有足够的活动空间,尤其是家里有小孩的。客厅需要注意的就是插座要留够,空调孔一定要提前打好,省的买空调在打空调孔,这样会破坏墙面装饰。
客厅以大理石做背景墙简单大气,客厅用皮质沙发显得很有格调
私密性是卧室重要的属性,它不仅仅是供人休息的场所,是家中温馨与浪漫的空间。卧室的壁饰不宜过多,还应与墙壁材料和家具搭配得当。卧室的风格与情调主要不是由墙、地、顶等硬装修来决定的,而是由窗帘、床罩、衣橱等软装饰决定的,它们面积很大,它们的图案、色彩往往主宰了卧室的格调,成为卧室的主旋律。
卧室储藏收纳隔断柜最为亮点,既满足了收纳又美观,使整个卧室简单大气有格调
餐厅是一家人享受美妙用餐时光的重要场所,好的设计能让用餐氛围更加温馨,让享用美食也成为一种无上的乐趣,而每一种风格的餐厅,都显示出其主人的不同品味与性格。
餐厅部分融合客厅的装饰,中间以矮柜隔开,使整个空间空气流畅
阳台在生活中的作用不可小视,现在的商品房楼层越来越高,所以我们需要用阳台来一揽外面的景色,也需要用阳台晾晒衣物等。一个好的阳台设计不仅实用,还能让我们随时享受生活。
阳台放一个小书桌,累了可以在阳台看看外景也是很舒服的
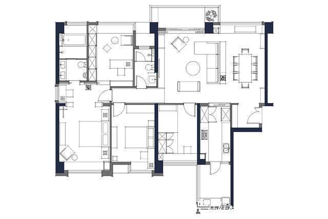
这个堪称完美,是一个三室两厅的
【 简约风|109平现代简约风采用矮柜使客厅与餐厅隔开,空间大很多空气流畅】如今很多朋友都想把自己的家装饰得高大上,但实际上一个家不需要多么的富丽堂皇,也不需要多么的繁琐,毕竟舒心和贴心才是最重要的。
推荐阅读
- 现代风|168㎡现代风,带着浓郁的归属感与愉悦感
- 深色|155㎡简约风,承载着三代人的生活,不花哨让家务少一半
- 助贷|助贷咨询:企业抵押贷款常见风险
- 背景墙|97㎡现代风,以时尚打造空间,以新颖突出特点
- 三居室|118平现代风三居室,一个简单而纯粹还原生活色彩的家
- 简单感|现实的平衡取舍,才是生活之道!143平现代风格设计欣赏!
- 宋智雅|不只穿假货!宋智雅豪宅全是租的,公主风奢华住所都是TA在出钱供
- 木纹板|装修案例欣赏:小北欧风格的居家设计,简洁的同时又不失温馨感!
- |73㎡复古风两居室,年轻夫妻的高品质生活
- 二手房|没有过户,房子就不是你的!二手房“延期过户”有哪些风险?
