邻居|邻居家在客厅打了一整排柜子,没想到好处这么多,想照搬回家!
邻居家在客厅打了一整排柜子,没想到好处这么多,想照搬回家!
邻居一家三口的68㎡小屋,简约中又带着精致。将原来的格局打散后重组,空间变得更开阔明亮,电视柜做书柜,空间利用刚刚好!个人觉得这个装修设计风格不仅实用,颜值也很高!带大家一起来看看
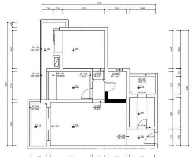
▲原始户型图
玄关做不了储物,厨房采光也不好,餐厅空间太小不好布置,两间卧室都只能解决刚需,储物问题无法解决。
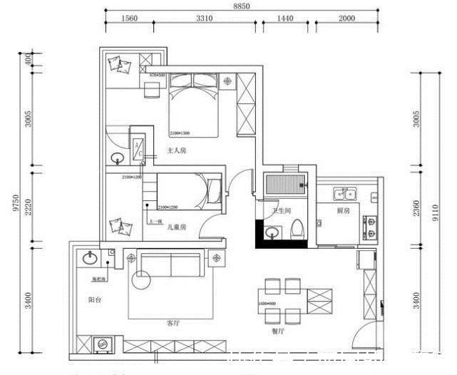
▲改造后
客厅
玄关、厨房、餐厅拆掉原有格局,重新进行布局规划,整个空间都变得宽敞多了。
把整面墙的电视背景墙打造了储物柜,既能做装饰也能当书柜使用。
墙面刷了浅灰色,深灰色沙发搭配出层次感,通铺的木地板,温馨而舒适。
餐厅
餐厅和客厅之间没有设置隔断,原木餐桌椅质朴温润。
餐桌靠着柜子,地面由拼花瓷砖过渡到木地板,让两个区域有了软性划分。
厨房
【 邻居|邻居家在客厅打了一整排柜子,没想到好处这么多,想照搬回家!】厨房移到了原来的小阳台,采光超级好,原木色橱柜搭配白色台面、瓷砖,看起来简约干净。
主卧
白色+蓝色,简洁的色调有着不一样的韵味,窗台收进室内后,做了一个小的休闲区。
儿童房
同样沿袭主卧的色调,上下床楼梯处是收纳抽屉,飘窗做了收纳柜,不怕没有储物空间了。
卫生间
卫生间铺深灰色地砖,耐脏又时尚,木色+白色呼应了厨房的色调,整个家更和谐统一有格调。
有的时候,家的装修没必要过于复杂,像邻居家这样简简单单的设计,把储物与美观度提升上来,让家住得舒适也看得舒心。
本文章由齐家小编整理发布,部分作品来自互联网,无法核实真实出处,如涉及侵权,请直接联系小编删除,谢谢!
推荐阅读
- 住宅|现在买房,选“高层”还是“低层”好专家20年后差别很大
- 购房置业|经济学家:老百姓60%的钱花在房子上很危险!网友:说得很对
- 缴存基数|@长春人 2022住房公积金缴存基数有调整 详解全在这
- 收纳|去邻居家参观才知道,卫生间不装柜子这样设计,防潮耐脏好清洁
- 宋智雅|不只穿假货!宋智雅豪宅全是租的,公主风奢华住所都是TA在出钱供
- |龙吟师傅教你在卧室找到自己的桃花位
- 房价|房价退潮之后,谁在“裸奔”?“限跌”不如“抗跌”
- 房价|房价下跌后,这2类人的利益严重受损,希望你不在其中
- 自习室|开在写字楼里面的共享自习室,有这4点优势
- 武汉|男友花130万在上海买20㎡新婚房,闺蜜劝我不要嫁,太丢脸了
