卫生间|109㎡四口之家,全屋配色太清爽,三室两厅不压抑!
今天齐家栗子分享的案例是109㎡的三房两厅装修,对于四口之家而言,房子不大,但很温馨。
经典案例
面积:109㎡
坐标:安徽
户型:三室两厅
亮点:以现代简约风为基础,大胆使用红绿撞色,功能齐全又清爽
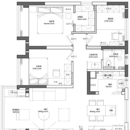
户型图
原户型布局相对合理,承重墙较多,改造空间不大。主要问题是入户正对卧室卫生间,需要进行调整。
设计师将主卧卫生间直接改成衣帽间,同时调整门洞方向。打通阳台,扩大客厅空间,满足业主对大客厅的诉求。
客厅
没有独立的玄关空间,设计师将鞋柜与电视柜一起设计,满足收纳需求。横梁下方的柜内隐藏承重墙,假门设计保持整洁统一。
【 卫生间|109㎡四口之家,全屋配色太清爽,三室两厅不压抑!】木工板打底的沙发墙,一直延伸到过道,与其它房门衔接,形成一个完整的木饰面效果。
卧室门采用同色木纹隐形设计,美观大气。地面是中灰哑光地砖错缝铺贴,同色美缝剂美缝,充满时尚感。
将阳台纳入客厅,空间通透明亮。客厅左右两侧均有木质元素,相互呼应,和谐统一。
通透的户型格局,简洁的硬装设计,没有过多的装饰,客厅干净整洁,不失品位。
厨房
厨房整体以白色为主色调,抛弃传统油烟机,改用集成灶搭配大单盆水槽,美观实用两不误。
餐厅
餐厅集合了餐桌、中岛台和西厨,按照冰箱的尺寸定制了餐边柜,增加收纳空间,保持空间整洁有序。
餐厅地面与客厅保持一致,灰色地砖错缝通铺。餐厨之间采用三轨联动吊轨移门,整洁美观。
卫生间
洗手台外移,卫生间干湿分离,墙面羽毛瓷砖白色+绿色分色设计,整体效果时尚耐看,充满层次感。
主卧
主卧采用红绿撞色设计,地面是木纹砖,人字形铺贴,窗帘也采用拼色设计,满足业主个性化的需求。
原主卫改成衣帽间,弧形门洞设计。空间不大,采用无柜门设计,门洞安装布帘,细节处处精致。
次卧
次卧是女儿房,抛弃传统的粉色设计,整体以姜黄+奶白为主色调,营造不一样的温馨感。
床头设计小书桌,衣柜中的开放式格子刚好可以充当书架,整体布局温暖又清爽。
儿童房
推荐阅读
- 屋主|56㎡小户型老房改造,小而美的设计!
- 现代风|168㎡现代风,带着浓郁的归属感与愉悦感
- 深色|155㎡简约风,承载着三代人的生活,不花哨让家务少一半
- 混淆感|146㎡北欧经典白色三居室,诠释令人心醉的优雅
- 饱和度|173㎡轻奢新中式,古典和现代的碰撞,唯美浪漫!
- 背景墙|97㎡现代风,以时尚打造空间,以新颖突出特点
- 地板|160㎡四居室,玄关比我家卧室都大,这才是真正的低调奢华有内涵
- 卫生间|129平现代美式三居室,打造出一个舒适又温馨的美式家
- 棚户区改造|开盘预告|合肥又有6盘要加推,均价1.39-2.54万/㎡全都有
- 收纳|去邻居家参观才知道,卫生间不装柜子这样设计,防潮耐脏好清洁
