简约风格|168平米三居室设计说明,14万元装修的简约风格有什么效( 二 )

厨房是开放式的,黑白高级配也是经典的配色,带有纹理的大理石强壮也是其中的点缀。
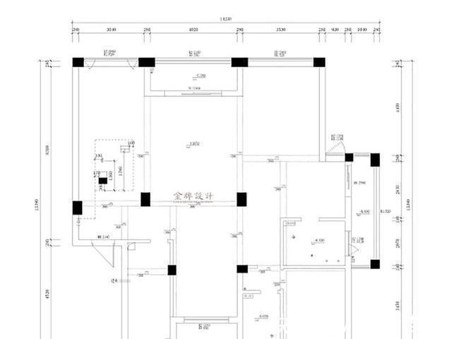
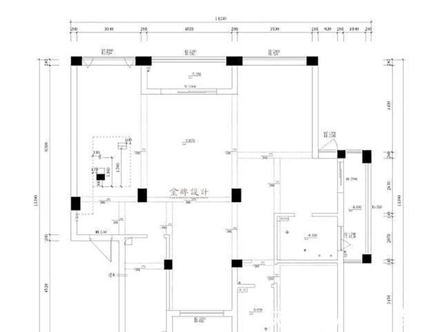
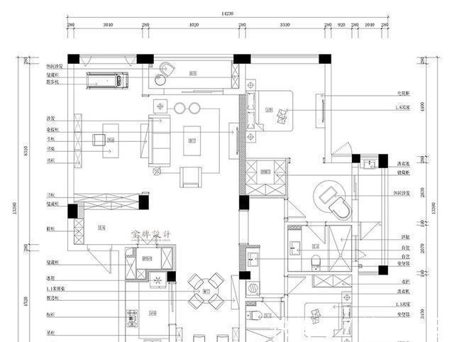
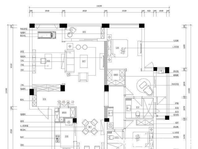
以下就是本套飞虹小区小区168平米三居室房子的户型图。
原始结构图。这个原始房型很完美,空间分布也很合理。
平面设计图。墙体是做了改动的,是为了更好的迎合设计,做出满意的家装效果。
数月锤炼终成精彩,经过时间洗练过的简约风,由此开启它在这套168平米居室里的演绎,飞虹小区的这套案例每一处细节的处理都彰显着主人的爱好,记录着生活中独有的小确幸。如果你也喜欢这套三居室的装修,评论区告诉我吧。
推荐阅读
- 深色|155㎡简约风,承载着三代人的生活,不花哨让家务少一半
- 简单感|现实的平衡取舍,才是生活之道!143平现代风格设计欣赏!
- 木纹板|装修案例欣赏:小北欧风格的居家设计,简洁的同时又不失温馨感!
- 现代简约|青岛房价不是低洼地了,房价高达1.6万一平
- x2|三层现代风格别墅 140平米,清新脱俗,是当下年轻人最喜欢的设计
- 现代|100平现代简约风三居室,软硬装的设计都很漂亮!
- 全屋|164m2现代简约全屋简洁大方,有质感!
- 造价|乡住土建造价参考81.2万,面宽13.4m×进深11.9m 三层新中式风格别墅
- 简约|又放假又有购房补贴,多地为鼓励生子接连“放大招”,有你家乡吗
- 格调|158㎡现代风格,简雅而不失格调的理想居所
