卫三|实用型复式三层别墅,简单大气农村包工头都会盖
本期分享一款实用型漂亮三层别墅,主体采用砖混结构造价相对框架更低,外观设计为简欧风格,简单不失大气。那么,这栋简欧别墅的实用性在哪呢?占地208平9房5卫三家人都够住,另外整体户型方正装修更简便,一起往下看。
别墅整体结构简单,前后左右墙面平整,施工更容易。
除了入户大门外,我们为了方便住户进出,还在棋牌室(土炕房)设计了后门,邻里娱乐串门非常方便,厨房也开了一道侧门,增强了通风性能,避免了室内油烟附着在地面墙体之上。
别墅图纸编号:TC3267
规格:14.1X15.9米
占地:208.10平方米
建面:536.33平方米
结构形式:砖混
一层平面功能布置:门厅、客厅、餐厅、厨房、卧室、卫生间、棋牌室。
一楼户型三厅通透敞亮,客厅采用旋转楼梯加挑空设计使得整栋房子的室内更加豪华气派,公卫外面增加了一道短墙隔绝开了厨餐厅也是很考究的设计细节。
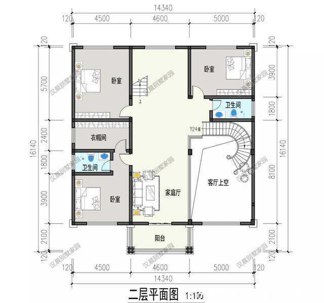
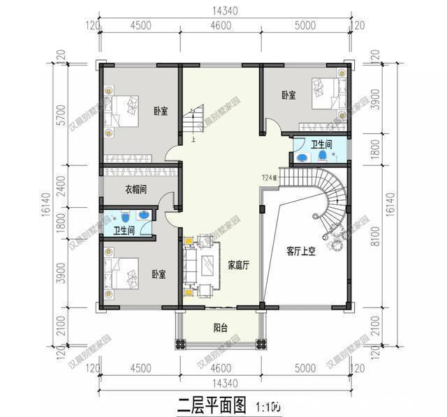
二层平面功能布置:家庭厅、卧室、客厅中空、卫生间、衣帽间、阳台。
二楼3室一厅两卫带阳台,主卧室带内卫和衣帽间,客厅南北通透是绝好的户型。
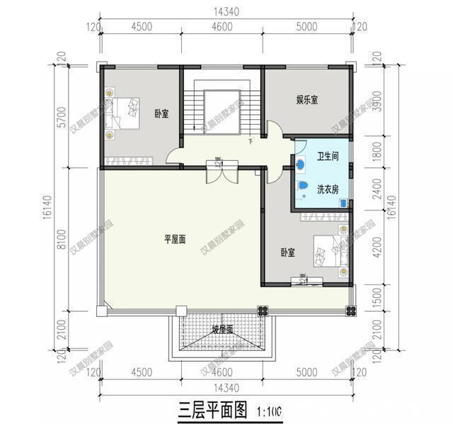
三层平面功能布置:卧室、卫生间、娱乐室、露台
我们在三楼留了很大一部分空间用作露台使用,当然住户也可以自行规划功能。
【 卫三|实用型复式三层别墅,简单大气农村包工头都会盖】
推荐阅读
- 手工|北京顶级复式别墅试铺天匠手工地毯,奢华之中不失优雅情调
- 迷你|26㎡的迷你复式公寓,一楼装榻榻米房,二楼装地台床,够时尚!
- 阳台|发现一户很有品味的中式样板房,两层复式楼,格局好,装修很高级
- 租赁|买不起别墅住复式楼也过瘾,买套60㎡跃层LOFT装完比别墅还奢华!
- 客厅|市面上很多复式房子,然而很少人买复式楼,这是为什么呢?
- 复式楼|晒晒复式楼,不豪华、不上心却走红网络,这个家凭什么如此吸引人
- 隔断|为什么很少有人买复式房了?5大弊端太糟心,刚需千万别再入坑了!
- 复式|小户型复式装修设计,家里有地台太棒了!空间大了,储物多了!
- 复式楼|180平现代简约风复式楼装修,全屋没有一点奢华之气息,很温馨
- 落地窗|复式的落地窗,进屋的那一刻,就让人心旷神怡
