晾晒|93㎡,硬是舍弃电视墙,厕所改“2个门”太明智了,晒晒全屋
坐标四川成都,这是一套建筑面积93㎡的两室两厅刚需户型。是屋主她和老公结婚后的第一套房,选房的时候预算有限,特别纠结。最终头脑一热买下了这个顶楼,等待交房的时候却越发不满意,房子户型很奇葩,从未经历过装修的小两口,从交房前的一年半,就开始纠结房子的各种设计,毕竟人生第一套房,二人都抱着很大的期望,最终在设计师的帮助下,硬是舍弃了电视墙,厕所改成“2个门”!完工后太明智了,空间感不仅大一倍,还多出了超大的餐厨空间,超大衣帽间。可以说刚需户型装出了阳光小豪宅的感觉。非常值得一看,忍不住晒晒全屋,希望给大家一些参考!
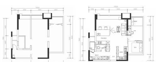
原来的户型很浪费空间,厕所靠近次卧,厨房狭长利用性差,出了客餐厅略微正常,主卧也是一个狭长难利用的空间。因为这套房子是顶楼,又疏于过度住宅,只考虑夫妻俩居住,所以可改造的范围很大。右图为设计图,可以详细对比,细节就在后面的实景图介绍吧!废话不多说,一起看看。
说实话,一进屋就被门厅的设计给吸引了,笔者自己作为一个收纳狂,非常喜欢充足的柜子。她家通过改造后,进屋的两侧都有大面积的定制柜子,左边是常用的衣帽柜,白色的极简门板。适当镂空的设计,简约有层次。搭配地面的六边形瓷砖拼木地板,十分有格调。
右侧的鞋柜区,不仅有便于展示的装饰空间,还有小巧实用的换鞋凳。家里有只爱买鞋的蜈蚣精,也丝毫不怕。上百双鞋都装得下。
最厉害的在于,利用鞋柜的延伸做隔断,隔出一个门厅超大衣帽间,解放了主卧的空间,让衣帽间更独立,进出门的时候使用也超级方便,而且空间很大。
相信每个女人都希望家里有一个大大的步入式衣帽间吧?
走进屋内,设计更为明智。原先的客厅面积不算小,但是很狭长,喜欢大大的沙发,若是按照原来的尺寸摆放,明显闭塞了不少。装修的时候,硬是舍弃了电视墙,把原来的次卧和客厅完全打通。现在整个空间视觉效果“大一倍”,两扇窗户融合成一扇,采光超好视野超开阔太赞!
没有了电视墙,如何看电视?吊顶嵌入伸缩幕布,沙发背后装上投影仪,想看电影的时候,拉上窗帘,客厅立马变影院,大气实用极了。其实除开爱看电视的家庭,一般的家庭电视机的使用频率越来越低了,这么设计,也相当于借用了空间,太明智了。
墙面用浅灰色的乳胶漆,代替大白墙。区别于传统的北欧风格,这个家色彩更中性,更有质感更耐看。山灰色的布艺沙发,宽敞大气,空间大了之后,所以就可以摆放更宽的沙发,这样坐感视觉感也都比较棒。适当的点缀绿植,网状极简的圆形茶几,精致又漂亮。
推荐阅读
- 屋主|56㎡小户型老房改造,小而美的设计!
- 现代风|168㎡现代风,带着浓郁的归属感与愉悦感
- 深色|155㎡简约风,承载着三代人的生活,不花哨让家务少一半
- 混淆感|146㎡北欧经典白色三居室,诠释令人心醉的优雅
- 饱和度|173㎡轻奢新中式,古典和现代的碰撞,唯美浪漫!
- 背景墙|97㎡现代风,以时尚打造空间,以新颖突出特点
- 地板|160㎡四居室,玄关比我家卧室都大,这才是真正的低调奢华有内涵
- 棚户区改造|开盘预告|合肥又有6盘要加推,均价1.39-2.54万/㎡全都有
- 小房间|参观140㎡大婚房,朋友都夸餐边柜有档次,我却更喜欢主卧的飘窗
- 别墅|参观亲戚上海的豪宅,别墅硬是住成农村房,真是糟蹋了好房子
