品味四讲|一个人的80㎡小家,极简又高级,一进门就被迷住
“看一个家,如同认识一个人”。台湾美学大师蒋勋,在他的《品味四讲》里说:“房子不等于家,房子是一个硬件,必须有人去关心、去经营、去布置过,这才叫做,家。
今天小编给大家带来一个80㎡的极简风格装修案例,设计师利用色彩相近的元素,打造和谐且保持内敛而放松的空间风格。以“美术馆”概念为设计灵感,通过高级灰的不同深浅颜色,赋予材质、陈设、软装的搭配,且混搭木质调性,达到屋主希望的极简风格。话不多说,快跟随小编的步伐,一起来看看吧。
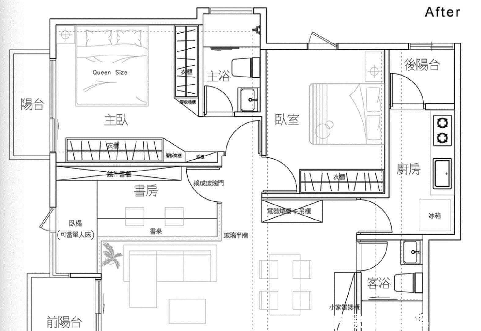
设计图纸
【 品味四讲|一个人的80㎡小家,极简又高级,一进门就被迷住】
本案例户型3房2厅2卫,室内面积约为80㎡。设计上将原始户型的传统3房格局,变更为2+1的形式,同时减小书房的面积,将沙发背景墙向后移动,扩大客厅的面积。
<屋主需求>
1.需要适当的收纳空间。
2.希望室内环境比较好清洁。
3.喜爱极简的现代风格。
玄关设计
玄关沿墙面规划为一组玄关柜,上下分体式柜体设计,中间再增加一个温暖的灯带,一进门就给你带来关于家的专属感。

在电视墙的最左侧也增加了一组原木色的悬空鞋柜,与电视柜融为一体又有所区分。同时原木色也能给室内多增添一丝温暖的气息。
客厅设计
开阔的客餐厅设计,整体空间以灰色为主基调,搭配深色木纹的的地板,打造出具有现代主义的极简气质,又保有沉稳内敛的格调品质的美宅。
客厅电视柜体以黑色、白色的色块堆叠,冷静的黑白灰色调,依序构成大大小小的矩形色块,拼接、迭加,形塑对比鲜明的视觉层次,并将矮柜、电视等机能设备融入色彩计划,呈现出屋主需要的现代时尚感。
客厅与书房之间规划为半墙搭配透明玻璃的设计。选定纯净的极简风格为主视觉,运用极度简约的线条为笔,让家不用大,也能十分包容理想的宁静生活。
餐厅设计

设计师没有将客餐厅之间的横梁进行隐藏,而是沿着横梁设置嵌入式射灯,以此来增加室内的照明。同时将横梁刷成灰色调,与电器柜以及餐边柜的墙面相呼应,产生连续、延伸的视觉效果。

看似简单的餐边柜,吊柜与地柜之间用黑色的铁架加以连接和装饰,再搭配温暖的灯带,让普通的家具瞬间变得高级起来。
推荐阅读
- 小钱|游点好笑!收手机的新方式,一抓一个准!这老师怕是柯南看多了?
- 卫生间|129平现代美式三居室,打造出一个舒适又温馨的美式家
- 三居室|118平现代风三居室,一个简单而纯粹还原生活色彩的家
- 收纳|打柜子不是越多越好,6个地方别随便装,多装一个都闹心
- 智睿|老装修升级计划 篇九十五:魔都二手房全屋灯光改造,给自己一个明亮智能的家!
- |西晒房、东晒房,一个没人要,一个抢着买,有钱没钱万万要选对
- siri|20多块钱,DIY一个米家APP控制的智能吸顶灯,附Siri快捷控制方案
- 家居|定制蝶变,林氏木业孵化出一个什么新物种
- 阳台|发现一户很有品味的中式样板房,两层复式楼,格局好,装修很高级
- 恒大地产|123㎡的精装房,却无一点精装的样子,改造后,骨子里都透着品味
