大宅|4种不同的小户型,最大一套66㎡,设计出大宅既视感,真的很赞!
哈喽,大家好!我是您的爱家装修解说员,希望通过小编之手,让你更加彻底的了解家装的世界!4种不同的小户型,最大一套66㎡,设计出大宅既视感,真的很赞户型面积越小,装修起来越困难,考虑的因素会随着面积的减少而递增。这次要跟大家分享4套小户型装修效果,出自一人之手。来自台湾的设计师,到底是如何玩转小户型装修的?效果如果,大家看完后自然会跟小编一样被震撼到。1、户型一33㎡这是一套只有33平的loft单身公寓,利用层高优势,设计师把空间打造成了交错的空间感。这样纵向面积得到了利用,空间功能自然被扩大。
















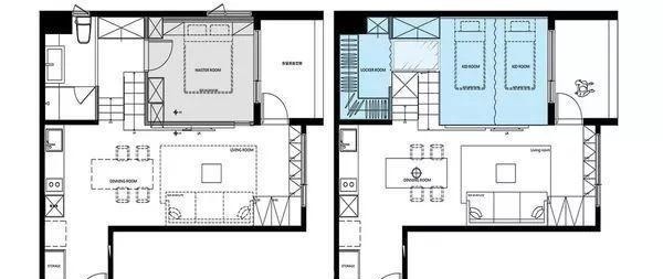
2、户型二38㎡第二套户型面积为38㎡,是一栋老房子,在设计师的帮助下,把原本的格局进行了分解,打造出层次分明、采光充足、通风良好的现代时尚美宅。内部空间结合了工作室+展览空间为一体的多元化组合。
改造之后,空间利用率得到了明显的提高。大致以中间为轴线分割开,在房子最里面的部分由三个不同的功能组合,前半部分为两层,还有被玻璃分隔出来的夹层。






推荐阅读
- 购房置业|央行今天下调房贷利率有三个不同之处,买房的好时机,还得再等等
- 大宅|精选15套中式大宅,农村就该建这样的房子,太美了
- 公摊|对于不同类型的楼房,如何选择?如何避开一些陷阱?
- 二手房|满两年和满五年的二手房有何区别不同?
- 房屋征收|房屋征收部门和房屋征收实施单位有什么不同?不要傻傻分不清楚
- 宅基地|前半生攒钱买房,后半生攒钱看病,我们跟欧美国家的人有何不同?
- 三口之家|打通阳台和客厅,100平的房子竟秒杀了200平的大宅!
- 抵押贷款|信贷和按揭有什么不同
- 香港|2022年还会进行“棚改”吗?住建部做出“回应”,4种房产要留意
- 子母门|厨房面积不大门洞小,厨房门4种设计方式,不仅实用,而且美翻了
