户型图|83㎡打造紧凑型三居,住下五口人,1㎡都没有浪费!
每家每户都想把家变成自己想要的样子,这个案例也不例外,一家5口人,但是房子不大,只有83㎡,除去公摊加以设计,最大限度利用好每一寸空间,打造成紧凑型的三居,细看之下,好像1㎡都不曾浪费,一起来看看!
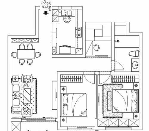
为了让大家将布局看得更清晰一些,给大家展示户型图,虽然是三居两厅,从户型图上来说, 并不宽敞,稍微紧凑些,窗户都是南照,冬暖夏凉的户型。
进门的左手边就是推拉门的厨房,白色的整体橱柜,地面和墙面都选择了灰色的瓷砖,整体简洁清新,吊柜底下还装了黑色挂架,可以收纳不少的厨具,很实用。
【 户型图|83㎡打造紧凑型三居,住下五口人,1㎡都没有浪费!】
入户过道一进来就是餐厅区,靠墙设计一排餐边柜,原木柜体白色柜门,柳木的餐桌椅, 整个餐厅看着很有情调。
从餐厅看过去客厅,整个沙发背景墙面都刷成灰色调,一直延续到餐厅,餐厅和客厅之间顶面有横梁,也是为什么餐厅要做横梁吊顶的原因,有过渡和弱化的作用。
这个是客厅的整体效果,南面的大阳台光线很足,整体显通透霍亮。电视背景墙装了地板背景,灰蓝色的布艺沙发是北欧风格的代表性色调了,很清新。
这个是过道,左边的推拉门是孩子的房间,整体做了榻榻米,比较少占用空间,尽头就是卫生间,左边两个卧室挨着。墙面的挂画也是连接又相互独立的,有文艺色彩。
主卧虽然不带阳台,但是有着大大的落地窗,采光好,视野也不错,还能站在落地窗边欣赏外面风景,豆绿色的床品搭配原木的家具色调刚刚好,不低调也不张扬。
次卧比较小,墙面窄,柜子也就做了一组推拉门的,百叶门还一做到顶,搭配蓝色的床品,颜值不低哦。
卫生间就一个,一家五口人住,干湿分离是很有必要的。墙面地面都贴同样的灰色瓷砖,简洁又时尚。如果你也担心卫生间的收纳问题,不妨效仿在马桶后摆一个铁艺的置物架子,收纳不错,还防潮,实用!
本文为陈小猫原创,图片来源于网络。关注小猫,为您的装修答疑解惑,也欢迎留言评论你想了解的知识,小猫会专门写文为您解答哦!
推荐阅读
- 屋主|56㎡小户型老房改造,小而美的设计!
- 现代风|168㎡现代风,带着浓郁的归属感与愉悦感
- 深色|155㎡简约风,承载着三代人的生活,不花哨让家务少一半
- 混淆感|146㎡北欧经典白色三居室,诠释令人心醉的优雅
- 饱和度|173㎡轻奢新中式,古典和现代的碰撞,唯美浪漫!
- 背景墙|97㎡现代风,以时尚打造空间,以新颖突出特点
- 中海珑悦府|中海珑悦府好不好?置业顾问从项目现场发回新组图
- 地板|160㎡四居室,玄关比我家卧室都大,这才是真正的低调奢华有内涵
- 棚户区改造|开盘预告|合肥又有6盘要加推,均价1.39-2.54万/㎡全都有
- 小户型|发现丈夫赠人房产 妻子怒讨买房款
