小空间|男主把房子装修这么精致,可能有人看了想嫁,会是你吗
建筑面积78平,造价35万(不含家电),项目坐标:杭州,完工时间:2021年6月,本案业主希望可以拥有一人居的快乐,在家的任何一个角落都是快乐的发源地,拥有一个属于自己的小家,是给自己的归属感,设计师让有想法的人住在有想法的屋子里。下面就和齐家云云一起来看看吧,希望大家能得到一些装修灵感!
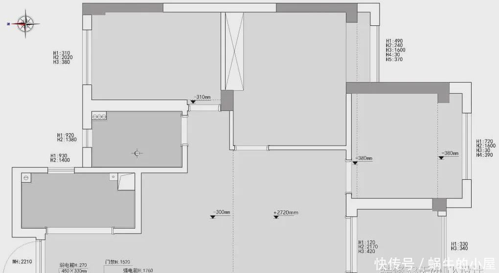
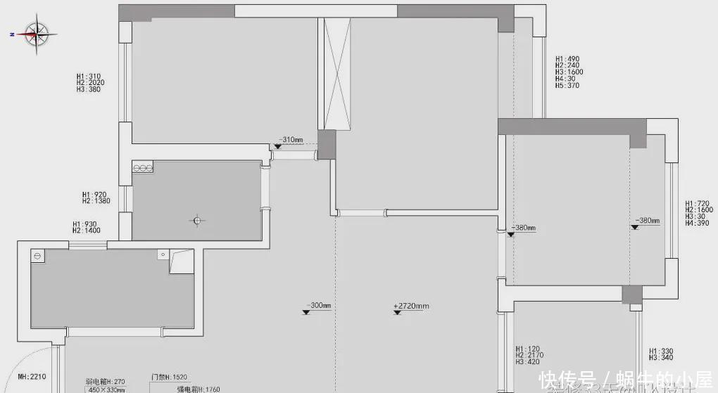
▲ 平面结构图
▲ 平面布置图
▲ 敲掉原本的阳台和一个小次卧,内包进客厅,增加客餐厅的整体空间,让阳光直射到客厅,很大程度上也改善采光
▲ 客厅,整体大白墙,空间通透而敞亮,一个人的空间只需满足自我的生活方式,是自我的独白
▲ 现代简约风的主沙发,线条方正,背景墙艺术装饰画的风格色彩和靠枕呼应,给纯粹的空间增加一些色彩
▲ 折叠杂志架+北欧风绿植+落地灯搭配出ins风套餐,利用墙面厚度,增加置物壁龛,放上莫兰迪色的艺术摆件修饰背景
▲ 一个人的空间,书房也打开变成开放式,倚墙靠窗视野开阔明亮,利用原先飘窗的位置增加原木写字台
▲ 书桌一侧借墙的空间顺理成章作为收纳柜,小而精致
▲ 开放式的厨房和西厨的增加,为经常做饭的业主,提供充足的台面和储物空间,餐桌和餐椅都选择圆弧线条,让小空间的动线更流畅,同时在视觉上也更加柔和
▲ 餐边柜集合收纳、吧台以及酒柜的功能,原木与浅灰的基调呼应餐桌椅的配色,隐形光源和金色拉手提升立面的整体气质
▲ 厨房整体风格与餐厅保持一致,原木层板配暖光壁灯,小清新的设计给家增添温暖
▲ 主卧,灰白与原木元素的空间,明亮的采光与温馨的氛围,在这个空间不用和自己以外的人共享,私密性更佳
▲ 原木与编织的床头柜,质朴自然,皮革床靠与原木床架耐用耐看
▲ 朝北的房间跟主卧打通,充当衣帽间的区域,增加储物
【 小空间|男主把房子装修这么精致,可能有人看了想嫁,会是你吗】▲ 卫生间的墙面采用水磨石,防滑防尘,沉稳低调的灰色搭配竖条马赛克,提升空间精致度。齐家云云提供更多装修资讯,喜欢我的朋友记得收藏和关注哦!(素材来源于网络,无法核实真实出处,如有侵权,请直接联系齐家云云删除。谢谢!)
推荐阅读
- 屋主|56㎡小户型老房改造,小而美的设计!
- 美好生活|欧哲门窗副总经理周志军:「拓」不忘初心同心同德,成为美好生活空间首选品牌
- 小钱|游点好笑!收手机的新方式,一抓一个准!这老师怕是柯南看多了?
- 银行|请注意!今日起各地房贷利率普遍下降5个基点 业内预期:部分地区房贷利率或仍有下调空间
- 背景墙|97㎡现代风,以时尚打造空间,以新颖突出特点
- 购房置业|上海女子拍下对楼住户家无敌露台,超大空间网友酸了:买房送操场
- 公示|一处体育中心项目、一处小型口袋公园!市北两项目规划公示,配套升级
- 碧桂园|小城市的房住不炒,遇上返乡置业
- 小户型|发现丈夫赠人房产 妻子怒讨买房款
- 小房间|参观140㎡大婚房,朋友都夸餐边柜有档次,我却更喜欢主卧的飘窗
