茶室|127㎡混搭新居,进门全景玄关,阳台改茶室,太迷人了
这是一套127㎡的新房,屋主一家喜欢的风格各不相同,为此设计师在设计开始前,就决定走混搭风,把北欧、日式和简约风融为一体,整体以实用和舒适为主。
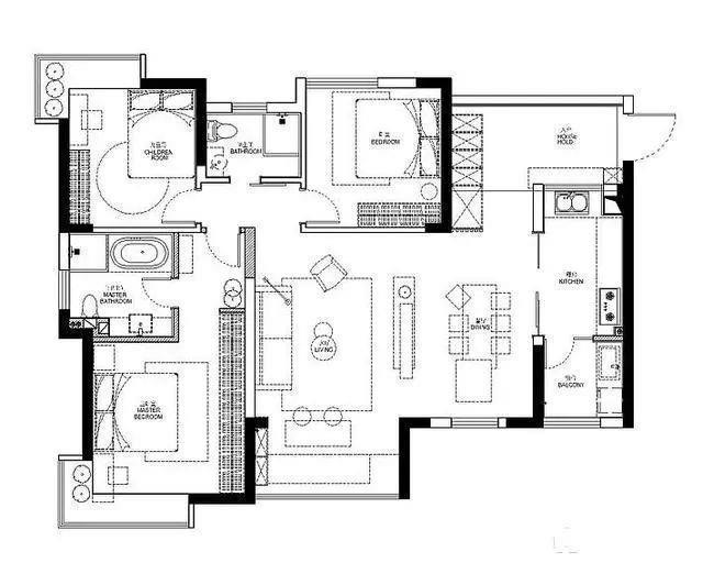
这是平面图,三室一厅两位的格局,整体户型相当不错。
一进门就是全景玄关,这里打造了一整面的落地窗,视野光线都很好。玄关一侧沿墙定制木质落地鞋柜,兼具换鞋凳与收纳功能。
转角处定制顶天立地储物柜,并为冰箱预留空间,将玄关墙改造为储物空间,用于收纳电器或各种杂物,很实用的设计。
客餐厅全景,原木家具充斥着一股浓浓的日式风,电视墙划分出餐厅与客厅空间,又不会破坏客厅餐厅连通的开阔格局,超级赞。
客厅设计以简约为主,没有吊顶和吊灯,简单开阔的客厅给人一种放松感。在这个空间中增加了木质,藤编和皮革等具有温暖质感的家具,让简约有了温度,低饱和度的色系也与日式的素雅不谋而合。
阳台内包进客厅改成茶室,配套定制了榻榻米、茶桌、收纳柜,为了营造朴素诗意的日式氛围,设计师选择了轻巧又有质感的浅色木材和线条简约的轻复古设计,营造舒适的氛围。
餐厅打造的组合餐桌柜,餐桌延伸过去就是吧台,3盏简约吊灯不止起到装饰作用,温暖的灯光同样营造了一个良好的就餐环境。
厨房安装的玻璃推拉门,增加这个空间的采光,让这个小空间看起来不会有闭塞感。
卧室给人的感觉就是舒服,温润的日式木床,舒服的棉麻床品,还有金色薄纱一样的日光,汇集成了不动声色的温柔,让人依恋。全景飘窗适合午后小憩沐浴阳光,同样适合晚上看城市的万家灯火。
次卧延续主卧了主卧的风格,浅色背景墙简单舒适。

儿童房同样还是以舒适为主氛围,不过还添加了一些更有童趣、活泼的元素,给小朋友一个良好的成长环境。
【 茶室|127㎡混搭新居,进门全景玄关,阳台改茶室,太迷人了】
推荐阅读
- 屋主|56㎡小户型老房改造,小而美的设计!
- 现代风|168㎡现代风,带着浓郁的归属感与愉悦感
- 深色|155㎡简约风,承载着三代人的生活,不花哨让家务少一半
- 混淆感|146㎡北欧经典白色三居室,诠释令人心醉的优雅
- 饱和度|173㎡轻奢新中式,古典和现代的碰撞,唯美浪漫!
- 背景墙|97㎡现代风,以时尚打造空间,以新颖突出特点
- 地板|160㎡四居室,玄关比我家卧室都大,这才是真正的低调奢华有内涵
- 棚户区改造|开盘预告|合肥又有6盘要加推,均价1.39-2.54万/㎡全都有
- 小房间|参观140㎡大婚房,朋友都夸餐边柜有档次,我却更喜欢主卧的飘窗
- |73㎡复古风两居室,年轻夫妻的高品质生活
