【 福州|首次开盘去化近8成!福州市建发首个改善盘强势入市!】
??6月5日,位于福州中心板块的榕发悦乐郡A地块正式开盘,开盘简讯如下:

??
【开盘时间】2022年6月5日周日
??【推售楼栋】A-1#/26F/ 2T3/1-2F商业/96套,A-2#/26F/ 2T3/1-2F商业/96套,共计138套;
??【推售产品】110㎡/3房2卫/44套,131㎡/4房2卫/44套,151㎡/5房2卫/44套,160-221㎡/顶复/6套,合计138套;
??【成交价格】毛坯备案均价35439元/㎡,车位备案均价31万/个;
??【优惠情况】一次性付款99折,开盘当天认购1个车位客户,住宅总价减5万,2个车位住宅减8万;
??【付款方式】正常首付;首付10天内齐;
??【成交去化】截止当天21:00去化107套,去化率78%;车位去化60个;
??【地块信息】榕宗地2020-48号地,由榕圣建筑(福州市建发)于2020年10月28日福州四城区第七次出让中以9.84亿元底价竞得,成交楼面价15849元/㎡,可售楼面价16298元/㎡,项目占地26087㎡,容积率2.38,计容建面62087㎡,可售总建约6.01万㎡;项目分南北两区,北地块A区,规划3栋26层高层住宅,共184套,配建一栋商业楼,南地块B区,规划2栋15层的小高层住宅,共83套;合计267户,地下车位419个;物业公司为融侨物业,物业费3.6元/㎡/月;

??【去化分析】项目位晋安于东区二环内,距离4号线塔头站约100米左右,周边配套齐全,出行便利,客户认可度高。加之本案为纯商项目,周边多为高安置比例项目,且还需额外加价或加车位,对比项目整体性价比突出,周边竞品已逐步售罄或接近尾盘状态,竞争压力小。
??虽然此次开盘价格虽较一期上涨约2300元/㎡,但与东二环板块多个3.8万/㎡,甚至4万以上的次新房相比,仍有倒挂现象。加之2期户型公摊更小,以大面积改善户型为主,对于改善型群体有较大吸引力,故此次开盘去化依旧良好。另外,融侨物业加持,未来物业服务有保障,也是二手房保值增值的关键。
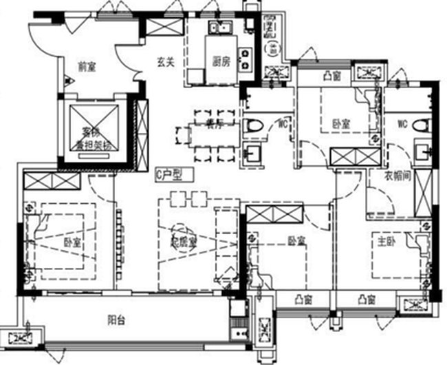
??户型图:
??A1#01-03单元

??01单元(东头):153㎡
??02单元(中间户):111㎡
??03单元(西头):131㎡
??约130㎡:四房两厅两卫

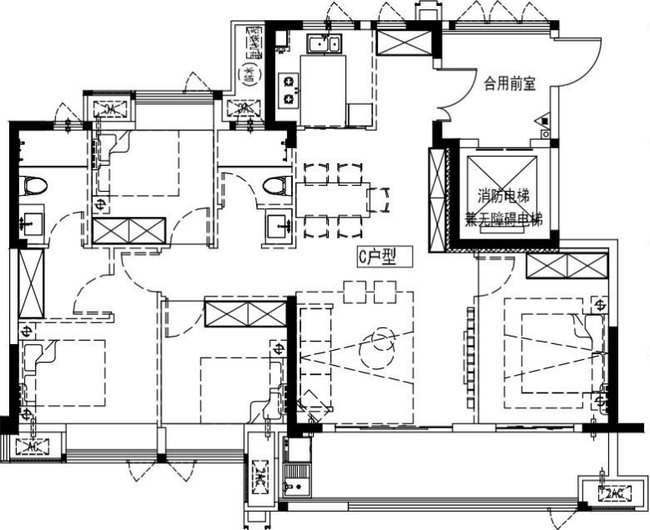
??B1#03单元

??B1#05单元
??注:以上图纸为项目示意图,具体以规划和销售合同为准。
??户型点评:依托地块的条件和低容积率优势,该楼盘整体户型格局方正,均打造大面宽窄进深的格局。本次推售的所有户型均为4房朝南+大阳台设计,主打舒适度。
??不难发现,项目一改以往市国企的刚需为主的产品配比,起始面积为111㎡,主打改善型户型,也是福州市国企在福州打造的首个纯改善型住宅楼盘。
??目前,榕发悦乐郡仅剩最后一栋A3号楼未推售,该项目住宅也进入尾声。
【购房资讯轻松享,快来关注乐居网】
文章来源:福州地产资讯
推荐阅读
- 辽宁省|福州火车南站,象屿国贸·星璟原,值得入手吗?
- 经纪|重磅!福州出台租房新规,加强租赁合同网签备案监督管理!
- 新房|徐州:首次使用公积金贷款 新房首付比例降至二成
- 购房人|超5000套房源! 岛内9大新盘内卷加剧! 最快6月开盘
- 福州|洗脚城服务全国第一,房价却排倒数,这个城市的夜生活有多丰富
- 福州|哈尔滨楼市:今年人口跌破一千万,为什么?
- 南京市第一中学|福州各板块,去年红盘是谁?
- 禅城区|保利时代天珀、绿岛湖壹号禅城两大项目商品房首次登记!
- 首次车位拿证!联发君樾府车位备案价约36.5万!|拿证速递 | 车位
- 楼市|萍乡楼市新政:首次购房补贴1万/套 实行“只认贷不认房”
