今天给大家介绍一下108平三居室现代风格的装修设计。美好的设计,源于我们对生活品质的苛求。每一个触点,每一个收边,每一个接缝的存在,都是为了强调作品的设计气质。
客厅整体简洁舒适,为空间添了一份的清新。对于卧室的装修建议大家可以选择一些清新温馨的壁纸,这样睡觉的话会更加的舒适,心情也会美美的。卧室的风格也可以和客厅的一样保持一致,高端大气。浅黄色墙纸增添了更多的温暖气氛,转角的窗户增加了更多的进光量,加上飘窗卧室应该有的舒适感爆棚。
软装点缀,整个空间干净、清爽。卫生间的面积一般不是很大,然而在进行装修的时候,卫生间却是非常麻烦的一个空间,不仅需要做好防水、防潮,还要做好电路等方面的设计,这些都关系到安全问题,丝毫不能马虎。除了这些基本的装修要求,卫生间应尽量选择淡雅清新的色彩,例如白色、蓝色等。
卫生间做了分离设计让整体空间更加清爽整洁。现代厨房布局的主要特征是按操作顺序设置设施,使操作者能按部就班地操作,从而减少往复交叉的重复做功。
厨房色彩干净整洁,动线明确。
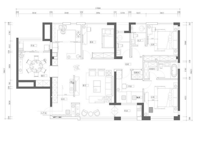
户型图
推荐阅读
- 三居室|131平中式风三居室,以简单呈现细腻,朴实打造优雅
- 衣帽间|86平混搭风三居室,绿色点缀在空间的每个地方
- 装修|129平混搭风四居室,让这个家以最优的姿态得以展现
- 两代人|北京一豪宅区车位被拍卖,起价176万一个,小区房价36万一平方米
- 购房置业|男友别有用心,婚前买153平四居室,我该如何维护自己的权益?
- 情侣|5平米出租屋,2平米“推笼”:看了这些,除了心酸,还能怎么办?
- 三居|90平个性三居装修,这样的隐形门设计,还是头一次见!
- 时尚|135平简约时尚雅居,开阔明亮的居所!
- 木地板|100平大平层户型营造出一种成熟端庄的现代时尚空间感
- 别墅|我家农村的豪华别墅,200多平的自建房,是全村最耀眼的!
