这是一套层高2.7米、90平紧凑套三双卫的户型,层高是硬伤,而且空间也不够开阔。设计师通过尽量不吊顶和灵活合理的功能布局,还有尽量化整的设计手法,尽可能让空间看上去开阔显高。

三个房间的隐形门与墙板结合的整面电视墙.....让人以为这是一室一厅的房子,结果却是别有洞天,也增添了不少趣味,这完全很符合屋主的性格,低调、幽默有趣。

▲原始结构图

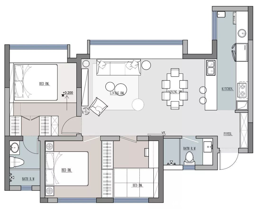
▲平面布局图
| 客厅 |

整个客餐厅无吊顶,轨道射灯作为辅助光源,客厅选用简洁光氛围较好的双头斗胆灯,减少吊灯所带来的累赘感。

打破常规的客厅布置,将主沙发靠窗,可以更好的享受阳光,同时相比横放于客餐厅之间,空间更为开阔。

飘窗选用百叶帘,利落干净,可根据需求灵活调节光线,沙发与装饰柜均为成品,空间灵活可变。

空间色块的构成,趣味而又均衡。拱形元素的装饰柜与飘窗色块作为同类色系层次的补充,左边蓝紫色沙发则作为深蓝色块的呼应与平衡。

将卫生间,书房以及次卧的门与整面墙考虑为一个整体,做了护墙板与隐形门结合的电视墙,弱化了门洞给以空间带来的琐碎感,也增加了空间的趣味性。
| 餐厅 |

餐厅与开放式厨房相连,视觉上更为开阔。餐桌的选择,在色系上与整个空间呼应,椭圆形的桌面也更时尚。


餐椅选透明亚克力材质的,让空间更为轻盈与通透。混搭的餐椅在形状上与餐桌亦作了呼应,丰富且统一。
| 厨房 |

将厨房打开,与入户客餐厅连为一体,符合现在年轻人居住需求与审美喜好的LDK布局方式,让空间获得放大功能。蓝白搭配的厨房配以精致的铜把手,空间时尚而精致。

原始厨房与餐厅之间有一根40cm的梁,为了尽量保证层高,厨房区域吊顶均采用30cm高度,一是为了包平厨房与入户之间的梁,二是为了风管机位置的安放。裸露出来的梁刷深蓝色,反而跟橱柜之间有了呼应,增添了空间的趣味构成感。

厨房与生活阳台原本设计有玻璃移门,考虑到空间的开阔与通透性,屋主还是决定暂时不要,后期根据需要再行增加。
| 主卧 |

推荐阅读
- 时尚|135平简约时尚雅居,开阔明亮的居所!
- 木地板|100平大平层户型营造出一种成熟端庄的现代时尚空间感
- 别墅|我家农村的豪华别墅,200多平的自建房,是全村最耀眼的!
- 北京市|【北京东城区】水上华城两百多平米四居室改善型住房2500W起拍!
- 薛城|老夫妻到昆山花桥买了一个70平的房子,上海人要再买一套吗?
- 卧室|房地产专家董藩:北京房价必涨到80万一平米!
- 学区房|夫妻俩买下68㎡学区房,老破小三居室摇身一变温馨居,网友:不错
- 普通住宅成交8.23万平方米,受两项目开盘影响成交上扬|石家庄周报 | 环比
- 卫生间|84平北欧风二居室,邻居笑称这个是效果图
- 芭堤雅|巨人大厦终卖出,当年史玉柱买下每平才125元,最后因卖楼花破产
