世茂都一套146平米的房子受到了大家的广泛推崇,原因是这套房子设计新颖独特,功能间齐全,能满足日常生活的方方面面。本套房子的设计风格采用的是现代风格,户型是标准的四居室。房子半包装修完只花了5万。接下来,我们一起来看看这套房子的效果图。【施工单位】:西安城市人家装修公司【设计说明】:本方案是围绕后现代为主题。客厅是主人品味的象征,体现了主人品格,地位,也是交友娱乐的场合,电视墙采用石材的设计元素,干净利落,视觉体验非常舒适。沙发背景墙采用石膏板做的几何造型,既简单又大方,上面可以放装饰画等。餐厅是家居生活的心脏,不仅要美观,更重要的实用性,整体性,餐厅的灯光很重要则以温馨和暖的黄色为基调。【温馨提示】:本案是城市人家设计师与客户量房沟通后,最终定的设计案例,喜欢本案设计风格的业主朋友可以预约装修设计。家里客厅的色调选择性很多,比如米色、浅绿色等,看起来都很大气,而且整体看起来很儒雅。沙发颜色可以选择的清新一点,这样让人有耳目一新的感觉。

电视墙采用石材的设计元素,干净利落,视觉体验非常舒适。

本方案是围绕后现代为主题。客厅是主人品味的象征,体现了主人品格,地位,也是交友娱乐的场合。

沙发背景墙采用石膏板做的几何造型,既简单又大方,上面可以放装饰画等。餐厅是一家人享受美妙用餐时光的重要场所,好的设计能让用餐氛围更加温馨,让享用美食也成为一种无上的乐趣,而每一种风格的餐厅,都显示出其主人的不同品味与性格。
【 四居室|146平米四居室热门案例 现代半包5万!-世茂都装修!】

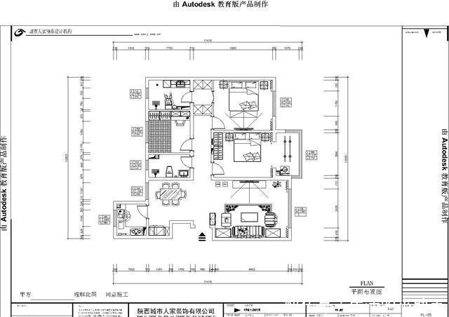
餐厅是家居生活的心脏,不仅要美观,更重要的实用性,整体性,餐厅的灯光很重要则以温馨和暖的黄色为基调。以下就是本套世茂都小区146平米四居室房子的户型图。

世茂都四室两厅两卫户型图世茂都小区146平米的现代风格设计案例,大家看了喜欢吗?其实146平米的房子打造出四居室是最为合理的,再加上现代风格,让房屋更显得高端大气,喜欢这种现代风格的朋友们可以考虑一下。另外,装修的时候注意空间的合理利用,避免出现浪费。
推荐阅读
- 卫生间|这套80㎡的极简房子,将客厅改成起居室,发生了不可思议的改变
- 四叶草|这算是满分户型,“四叶草”动线每1㎡都大有可为,房子越住越大
- 住宅设计规范|为啥聪明人买房,比起两梯四户更钟爱一梯两户?6个现实原因
- 跃层|错层设计太牛了,四层空间布局,让60㎡小户型秒变240㎡大豪宅
- 体验感|日本卫生间四处细节值得借鉴,功能极致,看完有点嫌弃自己的家了
- 小区|好房子的标准是什么?业主直言:提前想好这四点
- 户型|农村20万四合院设计图,青山绿水间,享受农村生活
- 落地式|把常见的这四种家具替换掉,入住后才知道有多香,感谢当初的坚持
- 郁亮|2022年新春刚过,房地产行业的四件大事,释放了什么信号?
- 购房置业|“十四五”期间 杭州将新开工共有产权住房3万套
