绿植|瞧瞧别人家的自建房,这才是正确的打开方式,舒适度不比豪宅差
随着人们生活水平提高,有不少年轻人在外打拼,然后寄钱回家盖房,随随便便就要好几十万,钱花了不少,但最终盖出来的房子一言难尽,外观都是千篇一律的造型和“豪气”,有些房子内部结构极其不合理,舒适度和美观性更是欠缺。

瞧瞧别人家的自建房,外观看起来普普通通,但是内部装修极其舒适,一点不比豪宅差,这才是自建房正确的打开方式。

这套房子位于越南一个古镇,占地面积只有75㎡,总共三层,四间卧室,5个家庭成员,三代同堂,可以生活得很安逸且舒适。

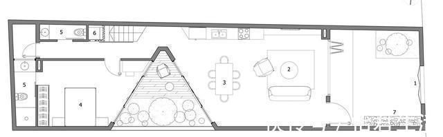
从结构图可以看出,房子属于长方形布局,这在南方地区很常见,尤其街道两旁的房子,如果按照常规的设计,房子的后半部分光线暗。
这套房子在中间设计了一个三角形的天井,每个房间对着天井设计大面积的落地窗,就能保证室内拥有足够的通风和采光,而且每层都有一个卫生间,生活十分方便。

建筑正面图
房子外观没什么特别的,白墙黑瓦,跟当地的建筑十分融合,也不会显得特别突兀。
房子正面都设有大面积的窗户,保证室内的通风和采光,外面再加一层百叶窗,关起来就能保护隐私。

这套房子每一层都有绿色景观设计,二楼窗户外延出去的露台,用来种植矮型绿植和垂吊植物。三楼的露台设计成一个小庭院。

建筑俯拍图

从前院进来,看到客餐厨一体的空间,大门口是由单侧门和折叠玻璃门组成,天气好的时候,打开折叠门,让室内通风透气,阳光照进室内。关上折叠门,可以从侧边的门口进入家中,同时不影响室内采光。

一楼地面统一铺了木纹砖。在门口摆放了一张吊篮椅,坐在这个地方晒晒太阳、吹吹风,生活相当惬意。
【 绿植|瞧瞧别人家的自建房,这才是正确的打开方式,舒适度不比豪宅差】

从外面看,围墙跟一楼同高,关上大门,路人是看不见屋内场景的。


客厅没有摆放大型的连体沙发,选择了两张单人沙发,餐桌就在旁边,有5张餐椅。客厅、餐厅和厨房作为家人聚集的场所,放在一个空间里,互动性更强,更有利于家人之间相互沟通,增进感情。
推荐阅读
- 房屋|11×15米现代别墅,有车库还有旋转楼梯,这样设计果然受欢迎
- 米斯|欧神诺瓷砖:10多款教科书级别的书房设计方案
- |家门口别摆这几样物品,有的赶紧拿开,过不了多久就能走好运
- 到期|购买二手房,别着急签合同,这5件事没搞清楚,很容易产生纠纷
- 占地面积|农村两层别墅怎么建才好看?推荐这10套图纸,总有一套适合你
- 万家eps|鲁班说房:3套中式别墅图纸,带你进入中华田园
- 墙面|别信装修上的“鬼话”了,这几处没必要花大价钱,穷装反而更实用
- 验房|新中式三层别墅,适用于普遍家庭,新晋东方之美
- 别墅|老家没有宅基地,花钱也要买一块,有栋别墅的感觉实在是太好了
- 别墅|等将来有能力时,我要回老家盖栋别墅,让爸妈狠狠地风光一回
