是不是从事艺术类的工作者,都推崇自由,喜欢有个性的家,才能彰显出特立独行的品位。在下面这位美院教授的新家里,我就看到了与众不同。

与普通家居装修有哪些不一样呢?初看他家,真的是“家徒四壁”,好简单、好清净,但细品,装修风格真的很有味道,越看越喜欢这种古朴的日式侘寂风。这位教授把房子安在远离市区的郊外,三层独栋别墅的家就被绿树环绕,与大自然拥抱的环境,真的十分享受!


喜欢侘寂风的人,我想一定是一个有着丰厚底蕴又有着独立审美的人,它贴近自然的装修属性,更是现代都市人所追求的原始生活的表现,这样的风格所展现出来的淡然、安静与质朴,更像是一种心境的表露,下面就带大家一起去看看。
这位教授买的这套别墅并不是很大,185平方米共三层:

图/菲拉(杭州)设计
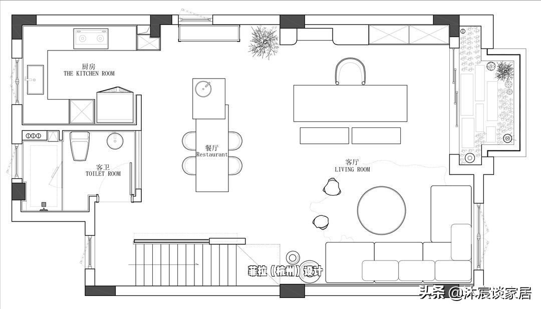
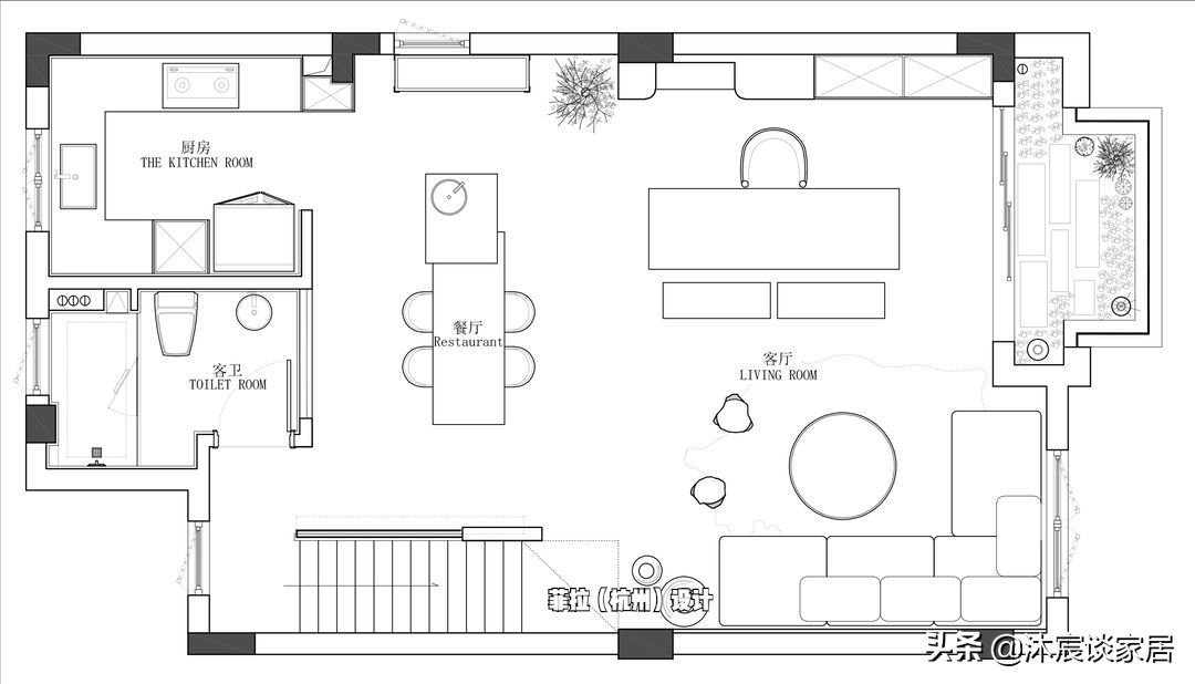
一层:是客餐厅和厨房,把动态空间设在一起,很方便;

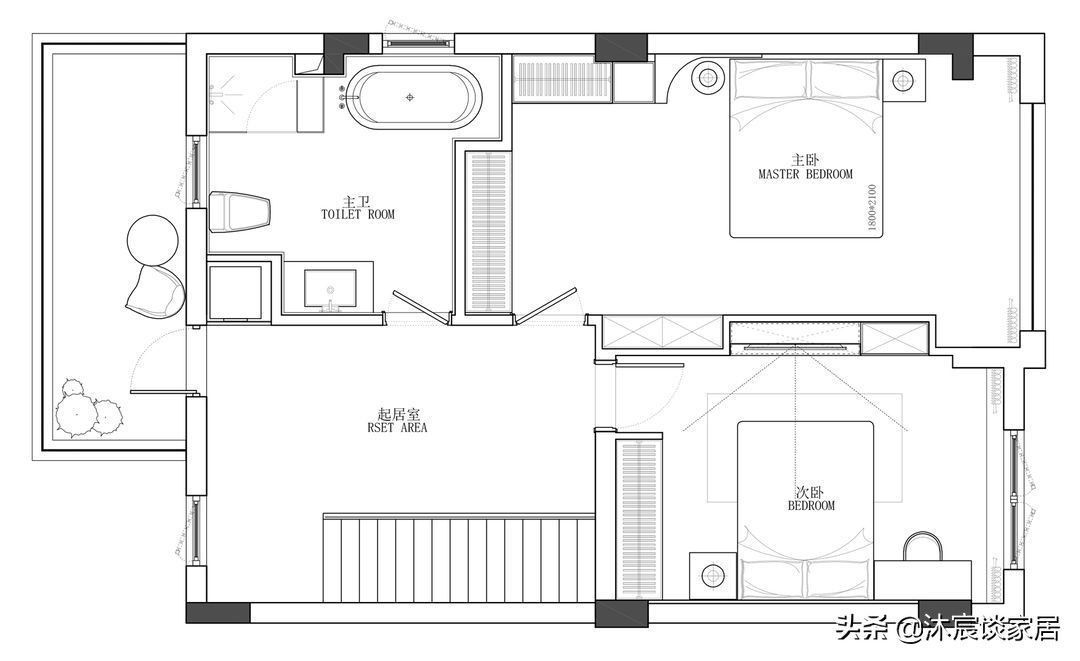
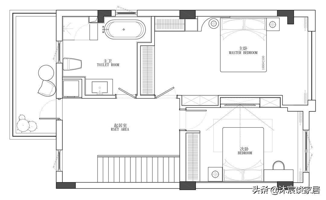
二层:是休息区,一个完全的静态区域,享受宁静;

三层:是一个小阁楼,同样被教授安排成了休息区,在顶上开窗,夜晚还能躺在床上看星星,好不惬意。
全屋实景(一层空间)

来到一层,从踏进家门的那一刻,相信大多数人跟我一样,脱口而出的问题是:怎么会是这样的风格?看上去就像“毛坯房”一样,不是没有装修吗?



确实,整个家用了大量的微水泥材质,非常特别,也非常惹人注目,在装修上,水泥可以说是最普通的材质,用来贴砖,用来砌墙,但想不到大面积用在室内,给人一种“宁静致远”的感觉。
没错,整个家就是教授想要的日式侘寂风,质朴、纯粹,相比其它装修,它更显得“家徒四壁”,不豪华,但有质感。



粗算了一下,这里的家具不超过10件,甚至还拒绝了智能家电,真正回归原始般的生活,换做是正在阅读的你,能在这里呆多少天?而这位教授却十分喜欢这样的环境,在客厅里放一张另类的沙发,在正对面摆放超长的手工长桌,在家除了阅读,就是做手工和绘画,生活很饱满丰富!你看墙上的收纳的工艺品以及所有装饰画,全是亲自做出来的。

推荐阅读
- 简美风|老婆硬在客厅装“假床柜”,入住才知实用!邻居羡慕极了,晒晒
- 绿植|60后退休夫妻的:336㎡水泥别墅,全屋“赤贫风”,这叫有钱又闲
- 拖布|越住越爱的装修风格,卫生无死角,打扫更轻松
- 主卧室|90后夫妻的中式风新家,全屋到处都是亮点,让人看后很喜欢,羡慕
- 地产|长沙资规局新年首张地产罚单:世茂璀璨风华被罚8.19万
- 华侨城|250平复古风别墅,质感优雅,时尚大气
- 深圳市|我为什么不回老家看风水
- 四居室|147㎡的原木风四居室,客餐厅一体好通透!
- 水垢|装修时,最明智的决定,就是不跟风这6种设计,现在越住越舒适
- 玻璃|男子晒出独居空间,复古风格,每1㎡都精致又舒适,一人住就是爽
