今天分享的是一套建筑面积125平米的现代简约风三居室案例,设计师以复古的绿色搭配大理石、黄铜元素,来营造出一种文艺、轻奢的格调感。很喜欢这套案例当中的主卧室的床头背景墙,迷雾森林加上壁灯,让人感觉非常好看。
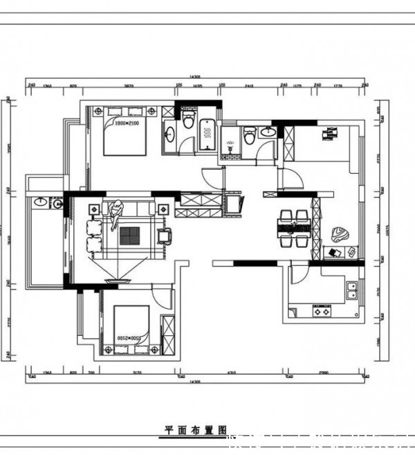
平面布置图
入户门对着墙面,设计师在这做了端景台加鞋柜的组合式设计,白色的柜子搭配黑色的搁架,再加上多彩的绿植图画,让人感觉很有格调。
位于入户门一侧的是客厅空间,客厅的电视背景墙做了满墙的定制柜设计,电视周边的空间选择了黑色调,让电视背景墙的层次更为分明。
而沙发背景墙是延续了整体的复古绿色,皮质的沙发搭配大理石加金属的茶几,一个多彩的脚凳作为点缀,整个客厅的元素丰富却又不杂乱。
餐厅和厨房空间位于入户门的另一侧,两者之间用玻璃推拉门作为隔断。餐桌椅也是大理石加金属的款式,软包的布艺坐垫让人感觉更舒适,墙面还做了镜子扩大空间视觉感。
厨房内部的空间还是比较宽敞的,U字形的橱柜布局方案带来更短的厨房动线,也拥有更多的储物空间,橱柜转角做了弧形搁架的设计,既安全又实用。SHAPE * MERGEFORMAT主卧室的床头背景墙是铺贴了迷雾森林图案的壁纸,两侧对称的壁灯也给卧室增色不少。卧室内的飘窗加上了抽屉柜,让储物空间更为充足。
主卧室内的卧室和卧室之间选择了用玻璃加半墙作为隔断,通透的设计让空间更显宽敞。灰色调的大理石和白色的浴室柜结合,带来简洁大方的感觉。
次卧也被作为一个工作区来使用,设计师在靠窗的位置做上了长书桌,榻榻米加上衣柜的组合式设计,让空间被有效的利用起来。
在次卧内还有一个迷你的阳台空间,屋主在这里摆放一个复古的休闲桌椅,搭配侧方的到顶储物柜,偶尔在这里晒晒太阳、看看书,想必也是非常惬意的事情。?
推荐阅读
- 美好生活|欧哲门窗副总经理周志军:「拓」不忘初心同心同德,成为美好生活空间首选品牌
- 银行|请注意!今日起各地房贷利率普遍下降5个基点 业内预期:部分地区房贷利率或仍有下调空间
- 背景墙|97㎡现代风,以时尚打造空间,以新颖突出特点
- 购房置业|上海女子拍下对楼住户家无敌露台,超大空间网友酸了:买房送操场
- 限购|哈市125家房企将列入重点监管范围,详细名单→
- 墙面|过道能''挤''出空间 5种方式帮你充分利用每一寸,档次蹭蹭上涨
- 全屋|次卧空间小,老婆灵机一动不装“床”,孩子一眼就喜欢上了晒晒
- 轻奢风|什么样的生活空间,才算得上是美好现代轻奢风,大道至简
- 购房置业|三四线城市的住房真的值得购买吗?不能一概而论,还是有升值空间
- 箭牌家居第二季全空间定制设计大赛获奖作品公布|定制快讯| 大赛","sex_score":"0","source":"wspuser_3beijing,nbbengnewid_e4563a267737194b97f7d45af8307142,nbbengdu
