占地面积:122㎡
建筑面积:385㎡
建筑高度:13.5m
建筑结构:框架结构
建筑情况:2大客厅 5卧室 6卫生间 1玄关 1厨房 1餐厅 1棋牌室

平面布局图:




户型六
占地尺寸:10×15.6m(不含庭院)
占地面积:145.2㎡(不含庭院)
建筑面积:520.4㎡
建筑高度:15.4m
建筑情况:6卧 7卫 1杂物间 1棋牌室 1车库 1娱乐室 1厨房 1餐厅

平面布局:




户型七
占地尺寸:15m×13.3m
占地面积:211㎡
建筑面积:740㎡
建筑高度:17m
建筑情况:设12室 1堂屋 3厅 1厨 3卫 2储物间 1休闲室 1娱乐室

平面布局图:




户型八
占地尺寸:11.8m*12.2m
占地面积:142㎡
建筑面积:436㎡
建筑高度:13.1m
建筑情况:共设6室 4厅 4卫 2厨 1阳光房 1玄关 1书房 1储物间

平面布局图:




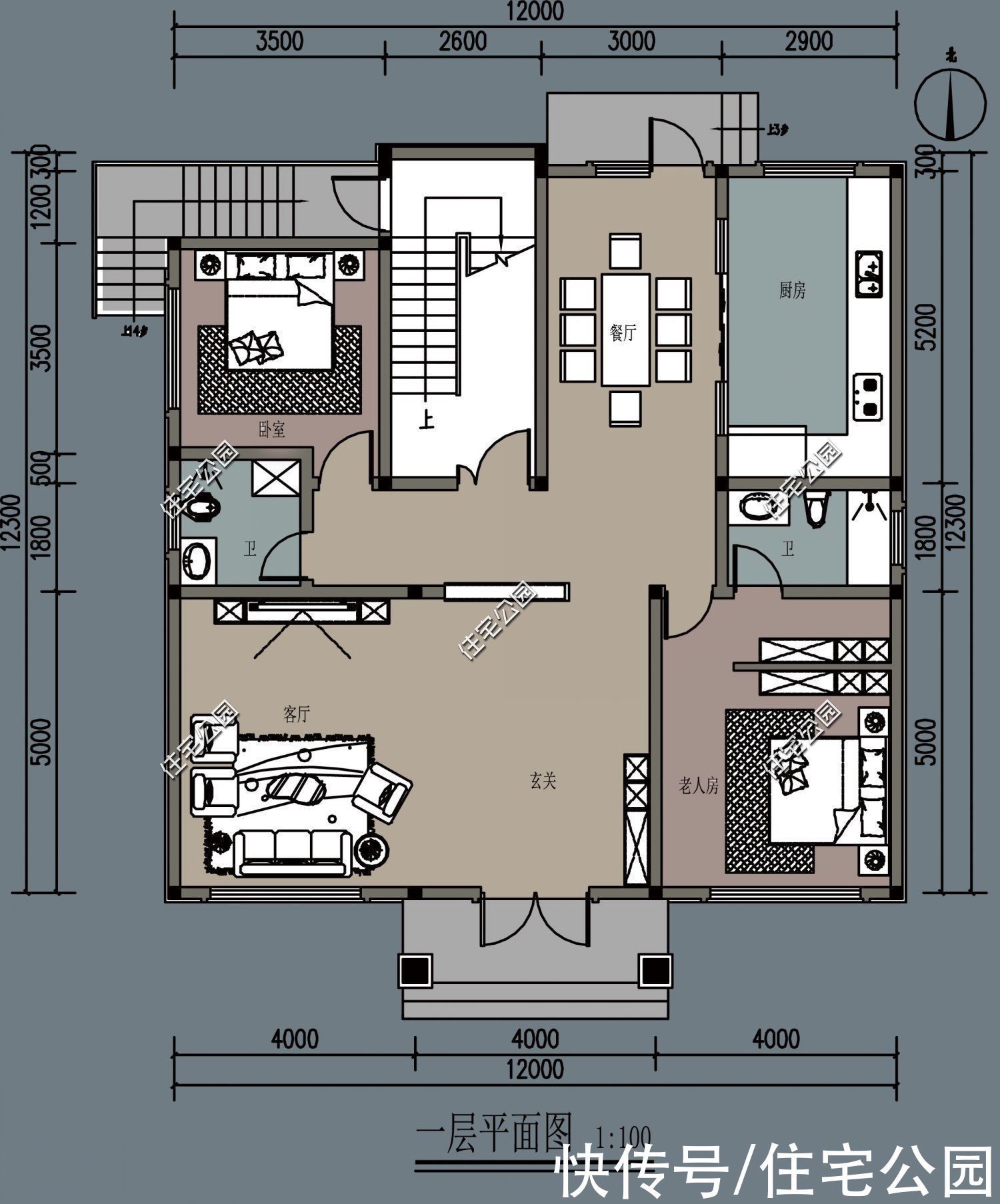
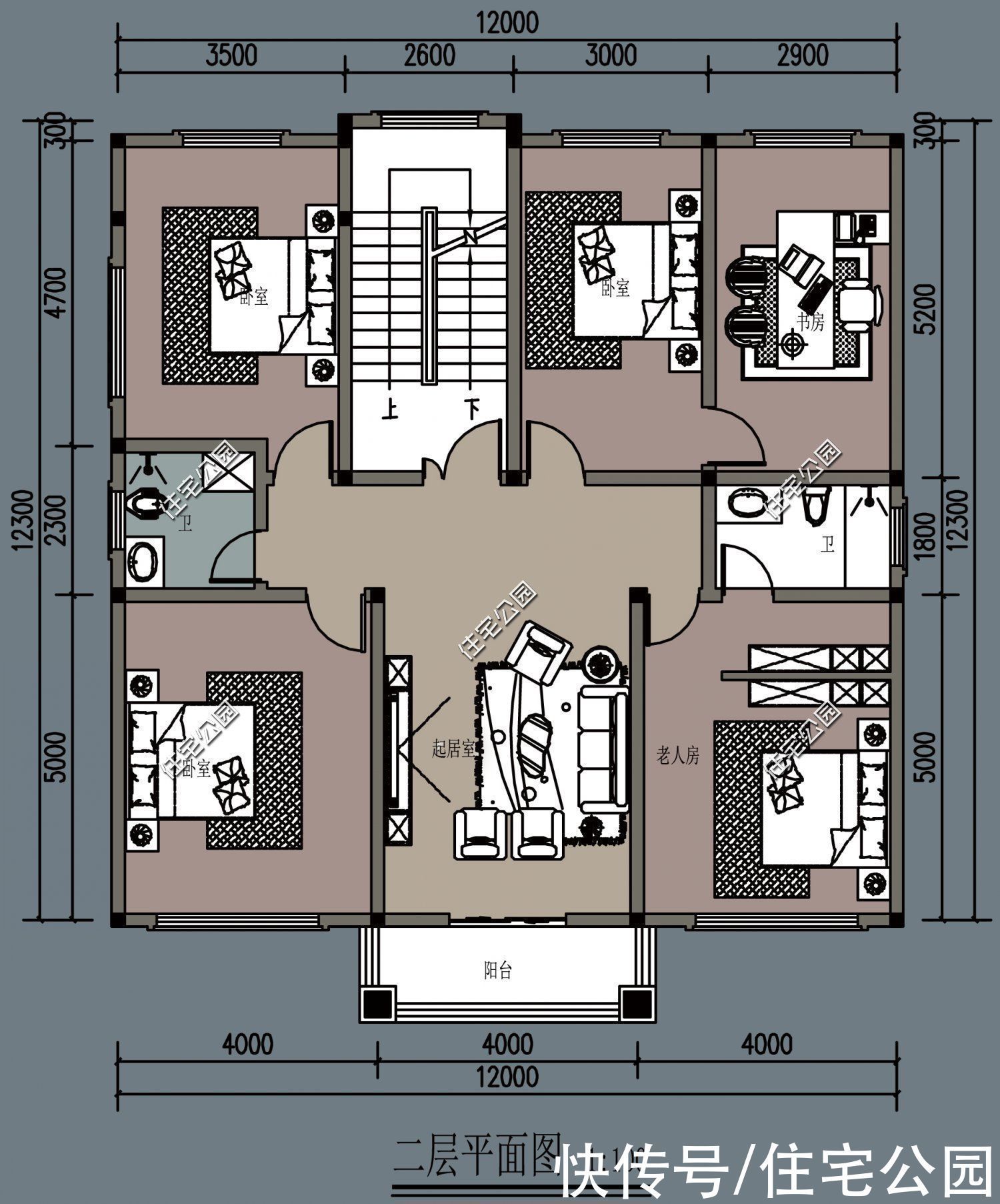
户型九
占地尺寸:12m*12.3m
占地面积:167㎡
建筑面积:572.5㎡
总 高 度:16.2m
建筑情况:共设11卧室 4厅 8卫 3厨 1玄关 3起居室 1书房 2阳台 1露台

平面布局图:


推荐阅读
- 建房子|面宽11米, 进深16.5米的农村三层别墅, 前后有花院还带车库, 完美!
- 别墅|参观亲戚上海的豪宅,别墅硬是住成农村房,真是糟蹋了好房子
- 购房置业|今年起,农村老家的老房子,统统按照“新规”处理,子女提前知晓
- 修建|精选10套三层户型图纸,占地面积均不足百平,尤其适合新农村修建
- 上海市|2022年农村人要“享福了”?实行按户补贴,跟村民们的房子有关
- 洗衣房|这三款农村四合院设计图让不少城里人羡慕,父母看了也欢喜
- 购房置业|农村建新房就选这套四层别墅,占地100多平,8间卧室人人都有地睡
- 别墅|土豪农村盖大别墅,人人羡慕,如今却成为全村人眼中的大笑料
- 李沧|农村建房不能超过几层?面积是怎么规定的?农村建房的流程及条件一览
- 露台|推荐5款三层别墅设计图纸,最适合农村建的房子
