今天给大家分享一套48平老破小学区房爆改三室装修案例,屋主买下这套房子理由很简单,学区房,至于房子本身啥毛病都有破旧、阴暗、狭小、漏水一个不漏,房子尽管面积很小,却拥有三间卧室,一米八大餐桌、阳光书房,这套房子用色也非常讲究,进门就眼前一亮,不仅美观,实用性也很高。小编看过之后,彻底改变对老破小学区房印象,小户型像她家装修,肯定错不了,我们一起看看吧。

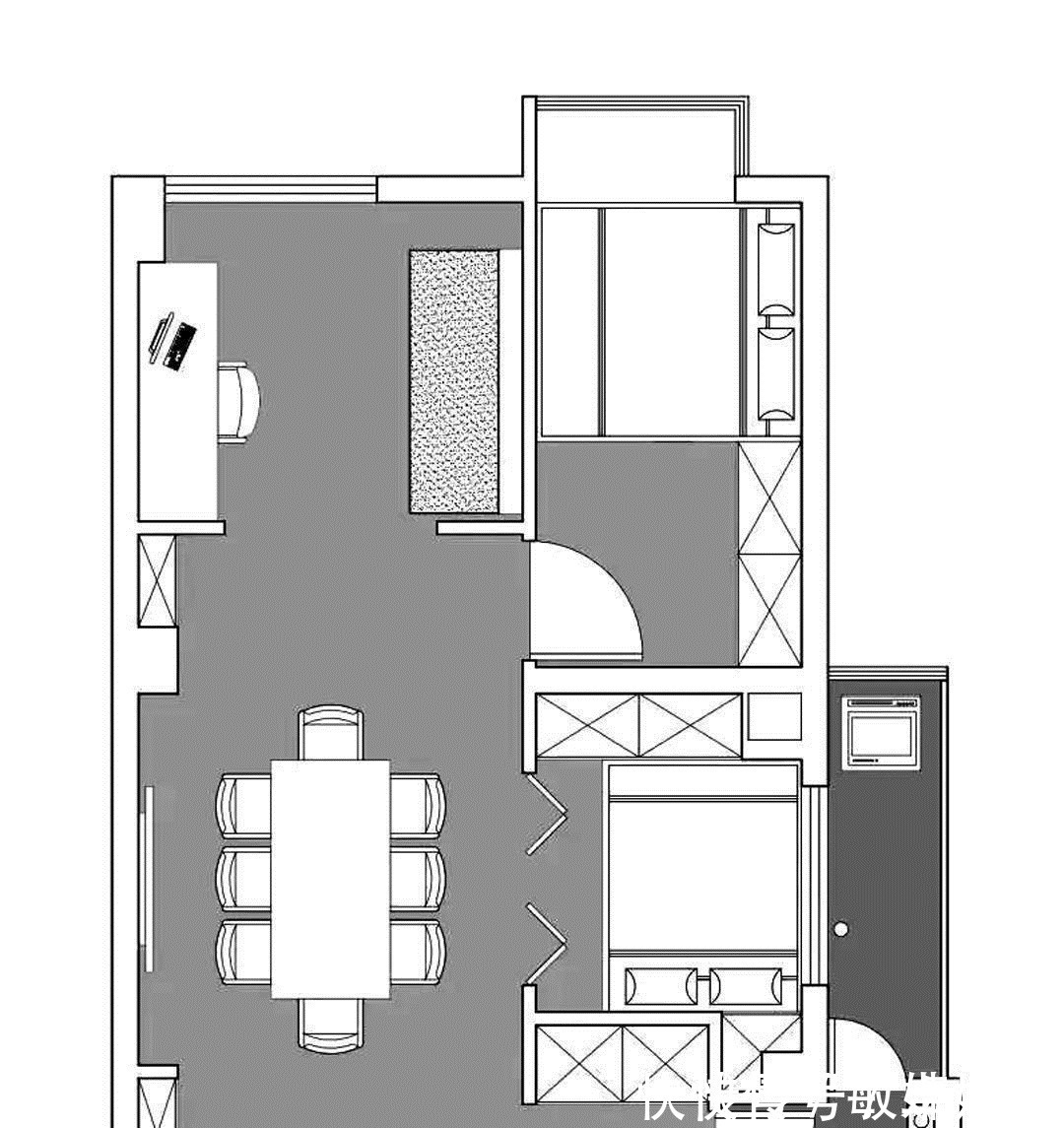
户型图
这是这套房子的平面设计图,屋主非常满意,进门开放式厨房彻底改变下厨等于“关小黑屋”局面,中间一米八长大餐桌,两间卧室和多功能空间,最常见是书房+客厅,家里来人,沙发变成床,隔断帘一拉就是一间卧室。

玄关
入户即是玄关,玄关是一个家的门面,尽管不大,但不可或缺,小户型收纳神器,一整排到顶的柜子,中间留空,安装开关,插座,放置一些包包、钥匙等小物件,不仅美观,收纳也很强,最多可以满足5口人收纳需求。厨房利用率最大化设计,嵌入式烤箱、蒸箱和冰箱,一应俱全,让女主人下厨变得轻松,整体性更强。

厨房
入户右边靠墙一整排橱柜,里边门通向卫生间,几何形图案的墙砖,让厨房看上去更加灵动明亮,老人房的百叶门可调节光线同时,扩大采光面积,让空间拥有更多的光照和空气流通。

餐厅
这个餐厅占地面积最大,最多可以满足6人吃饭需求,白色细腿餐桌摆放6把鲜艳餐椅,丰富的色彩,进一步提升美观度,让餐厅看上去精致又时尚。同时作为厨房的补充,成为女主人宽敞舒适的备餐区。

餐厅
【 玄关|她家48㎡,拥有三间卧室,超大餐厅,书房客厅合二为一,太聪明了】白色的大理石餐桌上色彩和餐椅一样丰富多彩,精致的一字型吊灯,给餐厅增色不少。

卫生间
卫生间尽管面积不大,但设备却用最好的,智能马桶,高级的淋浴喷头、托盘和毛巾架,让家人们使用上更加舒适,几何图案墙砖,让空间显得不再单调。穿过卫生间是生活阳台,洗衣烘干一体机,搭配自动晾衣架,更加便利。

主卧
主卧定制的榻榻米床,上面可以掀起来,侧边是抽屉式,储物能力非常强大,贴墙也做了一整面大衣柜,到顶式设计,衣服再多也装得下,整体用灰色门板,视觉上统一,整体性强,飘窗摆放一盆绿植,给卧室增添不少生命气息。

主卧
主卧是靠着飘窗而放,没有放置床头,节省空间,无主灯设计,采用两盏小灯满足照明需要,色彩上用黄色点缀,和灰色形成视觉对立效果,弱化卧室空间狭小带来的压迫感,成为视觉焦点。

推荐阅读
- 屋主|56㎡小户型老房改造,小而美的设计!
- 现代风|168㎡现代风,带着浓郁的归属感与愉悦感
- 深色|155㎡简约风,承载着三代人的生活,不花哨让家务少一半
- 混淆感|146㎡北欧经典白色三居室,诠释令人心醉的优雅
- 饱和度|173㎡轻奢新中式,古典和现代的碰撞,唯美浪漫!
- 背景墙|97㎡现代风,以时尚打造空间,以新颖突出特点
- 地板|160㎡四居室,玄关比我家卧室都大,这才是真正的低调奢华有内涵
- 棚户区改造|开盘预告|合肥又有6盘要加推,均价1.39-2.54万/㎡全都有
- 小房间|参观140㎡大婚房,朋友都夸餐边柜有档次,我却更喜欢主卧的飘窗
- 她家148平米,进门就被玄关迷住,不做吊顶跟背景墙,阳台超漂亮
