原木风单身小公寓,日式格栅门通透舒适,独立厨房卧室令人羡慕!
简约舒适、自然舒适得原木风也是很多家庭喜欢的家装风格,今天小编就为大家分享的一套小户型单身公寓设计案例,这是年轻的张先生与妻子的一套建筑面积只有53平一居室,采用原木风设计,虽然空间不大,但功能齐全,日式格栅门的使用,增添日式元素,尤其卧室飘窗休闲区设计,让室内功能更多元,也提升了生活的舒适体验,独立厨房设计也令很多小公寓家庭羡慕!下面就一起参观一下这个清新小公寓的环境吧!

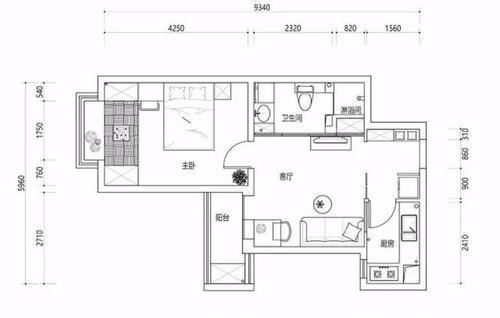
从上图中可以看出,这个小公寓规划的比较合理,进门左侧是独立厨房,客餐厅一体化设计,提供空间利用率。卫生间干湿分区设计,卧室飘窗休闲区打造,都让整体空间提高了舒适度。

进门处定制的玄关鞋柜+衣帽挂放区、换鞋凳,让进出家门时换鞋放鞋、挂放外套、帽子、围巾、包包等一站式完成。时尚的玄关鞋柜,中间镂空设计,不但可以摆放花艺、饰品等,也可以放随手的钥匙等,非常实用方便。

L型厨房采用黑白灰+原木色的整体配色,经典时尚舒适,L型橱柜+挂杆、挂钩组合,让厨房各类餐厨用具、小电器和清洁用品都能整洁有序的摆放到合理的位置,宽敞的操作空间也让下厨变得更加轻松。
【 卧室|原木风单身小公寓,日式格栅门通透舒适,独立厨房卧室令人羡慕!】

从厨房转过来即是客厅。厨房与客厅之间的墙面还改造出一个内窗,增加了厨房的采光,也让视觉更通透。蓝灰相间的布艺沙发搭配一个原木色的长方形小茶几,矮小轻盈而不占空间。这里即是客厅,同时茶几桌也充当餐桌的功能,两个人在这里用餐刚刚好。

原木色的地板,给人温润舒适的感觉。客厅与阳台之间的日式格栅门,通透而有格调,更符合原木风的感觉。

客厅的电视背景墙后方也是一排相同材质的推拉门,为后侧的暗卫提供采光。

卧室设计留白,没有多余的家居配置,让空间相对宽敞。床头用小书桌代替床头柜,平时还可以在这里看书学习。

卧室打造成飘窗地台,两侧分别定制了衣柜和储物柜,即可收纳衣物和生活用品,又可以利用开放格摆放各种精致的摆件,达到美化和装饰效果。多功能的飘窗,既可以在这里会客品茶、又可以休闲娱乐,还可以看书观景,真是功能多元的理想之所。

卫生间一侧的淋浴间通过玻璃隔断设计了干湿分区,另一侧将洗衣机嵌入洗漱台下,悬挂式马桶假墙台面与洗漱柜、镜柜组合,让卫浴空间收纳空间充足,整洁实用,这样的小家真令人羡慕!
推荐阅读
- 现代风|168㎡现代风,带着浓郁的归属感与愉悦感
- 深色|155㎡简约风,承载着三代人的生活,不花哨让家务少一半
- 助贷|助贷咨询:企业抵押贷款常见风险
- 背景墙|97㎡现代风,以时尚打造空间,以新颖突出特点
- 地板|160㎡四居室,玄关比我家卧室都大,这才是真正的低调奢华有内涵
- 床头柜|95后姑娘的“穷装”卧室火了,环保又精致,软装的力量真强大
- 三居室|118平现代风三居室,一个简单而纯粹还原生活色彩的家
- 简单感|现实的平衡取舍,才是生活之道!143平现代风格设计欣赏!
- 宋智雅|不只穿假货!宋智雅豪宅全是租的,公主风奢华住所都是TA在出钱供
- |龙吟师傅教你在卧室找到自己的桃花位
